Zeepkruidstraat 120

8245 LJ Lelystad
€ 525.000,- k.k.
4kamers
143 m2wonen
270 m2perceel

Algemene informatie

Aanvaarding
In overleg
Type woning
Twee onder één kapwoning
Energieklasse
A+

Omschrijving

Op een schitterende plek in de populaire en kindvriendelijke woonwijk “Warande”, gelegen instapklare 2-onder-1-kapwoning met 4 ruime slaapkamers, een luxe inbouwkeuken, een moderne badkamer en parkeergelegenheid voor meerdere auto's op eigen terrein. Deze woning is gebouwd in 2018, gesitueerd op een perceel van 270 m2 eigen grond en biedt met een woonoppervlakte van 143 m2 een heerlijk ruim (t)huis voor uw gezin of familie! Daarnaast is de woning uitstekend geïsoleerd (energielabel A+) en voorzien van een airco en 4 zonnepanelen, wat niet alleen bijdraagt aan een duurzame levensstijl, maar ook helpt bij het besparen op energiekosten. De woning straalt een heerlijke eigentijdse sfeer uit, waarbij hoogwaardige afwerkingen zorgen voor een luxe uitstraling. Het interieur is tot in de puntjes verzorgd, waardoor je je meteen thuis zult voelen.

De woning is gelegen in de nieuwbouwwijk “Warande”, in een kinderrijke en kindvriendelijke buurt met veel speelgelegenheid. Nabije ligging van een grote supermarkt, gezondheidscentrum, basisschool, uitvalswegen en de Oostvaardersplassen.

Kortom: deze schitterende instapklare 2-onder-1-kapwoning is tot in de puntjes afgewerkt en zo te betrekken. Mis deze kans niet en kom dit prachtige huis zelf ervaren!

"Nu bieden vanaf € 525.000,- k.k.. De gestelde vraagprijs betreft een "bieden vanaf prijs". Biedingen vanaf € 525.000,- k.k. zullen door verkoper in behandeling genomen worden".

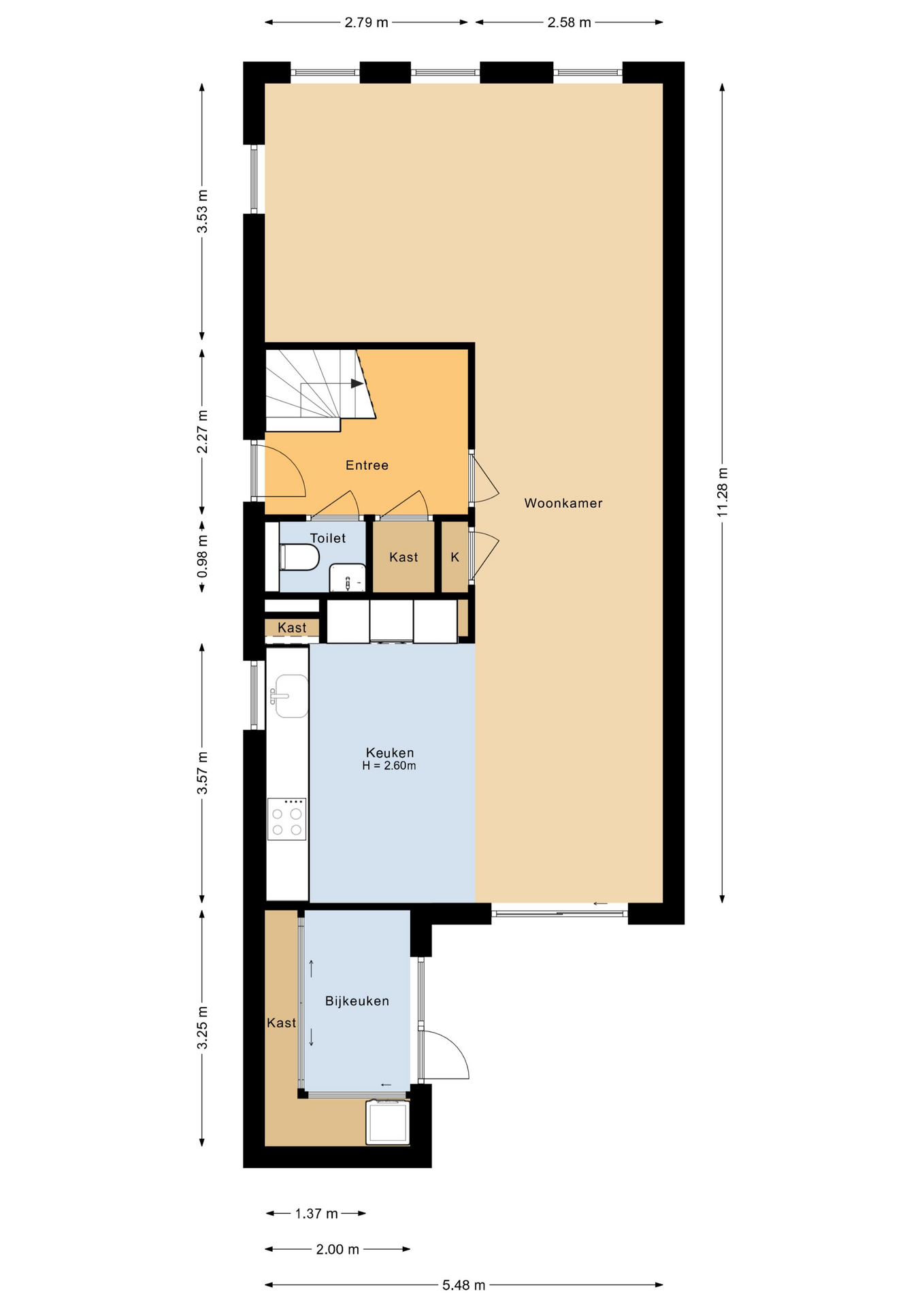
Indeling;
Begane grond:
Entree/hal met de toiletruimte, bergkast, garderobe, trapopgang naar de verdieping en toegang naar de woonkamer. Een lichte en sfeervolle straatgerichte woonkamer van 5.48 m. breed met grote raampartijen en veel lichtinval! Doorloop naar de tuingerichte woonkeuken met een praktische bergkast en middels dubbele openslaande deuren toegang naar de fraai aangelegde tuin. De woonkeuken is uitgevoerd met een luxe inbouwkeuken in hoekopstelling, welke voorzien is van de volgende apparatuur; koelkast, vriezer, vaatwasser, oven, Quooker, 4-pits inductiekookplaat en een afzuigkap. Ruime opstelmogelijkheden voor een grote eettafel waar u heerlijk met uw familie kunt dineren. Aangrenzend treft u de praktische bijkeuken met veel kastruimte, de opstelplaats van de wasmachine/droger en een deur naar de tuin. De begane grond is voorzien van een fraaie PVC-vloer in visgraatmotief met vloerverwarming en een airco (warmte/koelen).

1e Verdieping:
Overloop met een praktische berging/walk-in-closet en toegang tot 3 ruime slaapkamers. Moderne badkamer met een inloopdouche, ligbad, 2e toilet, wastafelmeubel met stenen waskom, een designradiator en een raam voor de natuurlijke ventilatie. De verdieping is voorzien van een fraaie laminaatvloer.

2e Verdieping:
Ruime zolderverdieping met een dakraam en veel praktische bergruimte achter de knieschotten, welke momenteel in gebruik is als 4e slaapkamer. Technische ruimte met de opstelplaats van de mechanische ventilatie box en veel praktische bergruimte. De verdieping is voorzien van een fraaie laminaatvloer.

Tuin:
De fraai aangelegde tuin is gelegen op het noordwesten (middag + avondzon) en voorzien van bestrating, een border met bomen en beplanting, kunstgras en een vrijstaande houten berging (ca. 14 m2) met overkapping. De tuin is heerlijk onderhoudsarm aangelegd, is tevens te bereiken via de zijkant van de woning en geeft veel privacy!

* Op een schitterende locatie in de populaire en kindvriendelijke woonwijk “Warande”, gelegen instapklare 2-onder-1-kapwoning
* De woning is voorzien van 4 ruime slaapkamers, een luxe inbouwkeuken en een moderne badkamer
* De begane grond is voorzien van een fraaie PVC-vloer in visgraatmotief met vloerverwarming en een airco (warmte/koelen)
* Fraai aangelegde tuin met een ligging op het noordwesten (middag + avondzon) en veel privacy!
* De woning is voorzien van 4 zonnepanelen (2018)
* Parkeergelegenheid voor meerdere voertuigen op eigen terrein
* Gelegen in nieuwbouwwijk "Warande"
* De woning is gelegen nabij een grote supermarkt, basisschool, uitvalswegen en de Oostvaardersplassen
* Er is veel natuur in de omgeving en het strandje 't Oppertje ligt op fietsafstand
* Aangesloten op het stadsverwarmingsnet – toekomstbestendig en gasloos!
* Woonoppervlak: 143 m2
* Kaveloppervlak: 270 m2 eigen grond
* Bouwjaar: 2018
* Energielabel: A+

Aanvaarding in overleg.

Lees de volledige omschrijving

Contact en info

Heb je vragen over deze woning of wil je een bezichtiging inplannen? Neem dan gerust contact met ons op, we helpen je graag verder!

Plan een bezichtiging

Kenmerken

Overdracht
Status
Verkocht
Koopprijs
€ 525.000,-
Aanvaarding
In overleg
Woonoppervlakte
143 m2
Inhoud
524 m3
Bouwvorm
Soort object
Woonhuis
Type woning
Twee onder één kapwoning
Soort
Eengezinswoning
Bouwjaar
2018
Bouwvorm
Bestaande bouw
Ligging
Aan rustige weg, In woonwijk
Overdracht
Woonoppervlakte
143 m2
Perceel oppervlakte
270 m2
Inhoud
524 m3
Aantal kamers
5
Aantal slaapkamers
4
Energie
Energieklasse
A+
Isolatievormen
Dakisolatie, Muurisolatie, Vloerisolatie, Dubbelglas, Volledig geïsoleerd, HR glas
Verwarming
Stadsverwarming, Vloerverwarming gedeeltelijk
Buitenruimte
Tuin
Achtertuin, Voortuin, Zijtuin
Hoofdtuin
Achtertuin
Hoofdtuin oppervlakte
117 m2
Positie
Noordwest
Achterom
Ja
Kwaliteit
Fraai aangelegd
Bergruimte
Soort
Vrijstaand hout
Voorzieningen
Voorzien van elektra
Parkeergelegenheid
Garage
Geen garage
Voorzieningen
Voorzien van elektra
Parkeer faciliteiten
Openbaar parkeren, Op eigen terrein
Dak
Soort dak
Zadeldak
Kwaliteit dak
Pannen
Voorzieningen
Voorzieningen
Mechanische ventilatie, TV kabel, Airconditioning, Dakraam, Glasvezel kabel
Overig
Permanente bewoning
Ja
Onderhoud binnen
Goed
Onderhoud buiten
Goed
Huidig gebruik
Woonruimte
Huidige bestemming
Woonruimte
Bekijk alle specificaties

Interesse of meer weten?

Leuk dat je geïnteresseerd bent in deze woning! Als erkende makelaar staan wij voor je klaar om al je vragen te beantwoorden en om een bezichtiging in te plannen.

bureauhanze

    Met het versturen van dit formulier ga je akkoord met onze gebruiksvoorwaarden en privacybeleid.