Woldplantsoen 18
Algemene informatie
Omschrijving
Schitterende onder architectuur gebouwde hoekwoning met 3 ruime slaapkamers (mogelijkheden voor 4), een nette inbouwkeuken, een moderne badkamer, een tuin met ligging op het zuiden en parkeergelegenheid voor uw auto op eigen terrein. Deze woning is gebouwd in 2006, gemoderniseerd vanaf 2017 - heden, gesitueerd op een hoekperceel van 210 m2 eigen grond en biedt met een woonoppervlakte van 130 m2 een heerlijk ruim (t)huis voor uw gezin of familie! Daarnaast is de woning uitstekend geïsoleerd (energielabel A), en voorzien van 8 zonnepanelen, wat niet alleen bijdraagt aan een duurzame levensstijl, maar ook helpt bij het besparen op energiekosten. De woning is gelegen nabij scholen, een buurtwinkelcentrum, het "Woldpark", openbaar vervoer, het stadscentrum en het NS-station.
Bent u op zoek naar ruimte en woont u graag in een groene en kindvriendelijke omgeving? Maak dan snel een afspraak voor deze gewilde woning!
"Nu bieden vanaf € 415.000,-. De gestelde vraagprijs betreft een "bieden vanaf prijs". Biedingen vanaf € 415.000,- zullen door verkoper in behandeling genomen worden".
Indeling:
Begane grond:
Entree/hal met de meterkast, toiletruimte (2022), garderobe en toegang naar de woonkamer. Een heerlijke ruime woonkamer van 5.48 m. breed met grote raampartijen (veel lichtinval), een fraaie tegelvloer met vloerverwarming en een deur naar de tuin. Aan de voorzijde bevindt zich de nette inbouwkeuken (2017), welke voorzien is van de volgende apparatuur; koelkast, vriezer, vaatwasser, combimagnetron, Quooker, 4-pits inductiekookplaat en een afzuigkap. Ruime opstelmogelijkheden voor een grote eettafel waar u heerlijk met uw familie kunt dineren. Trapopgang naar de verdieping en voldoende bergruimte in de trapkast, welke fraai is weggewerkt middels 2 sfeervolle loftdeuren.
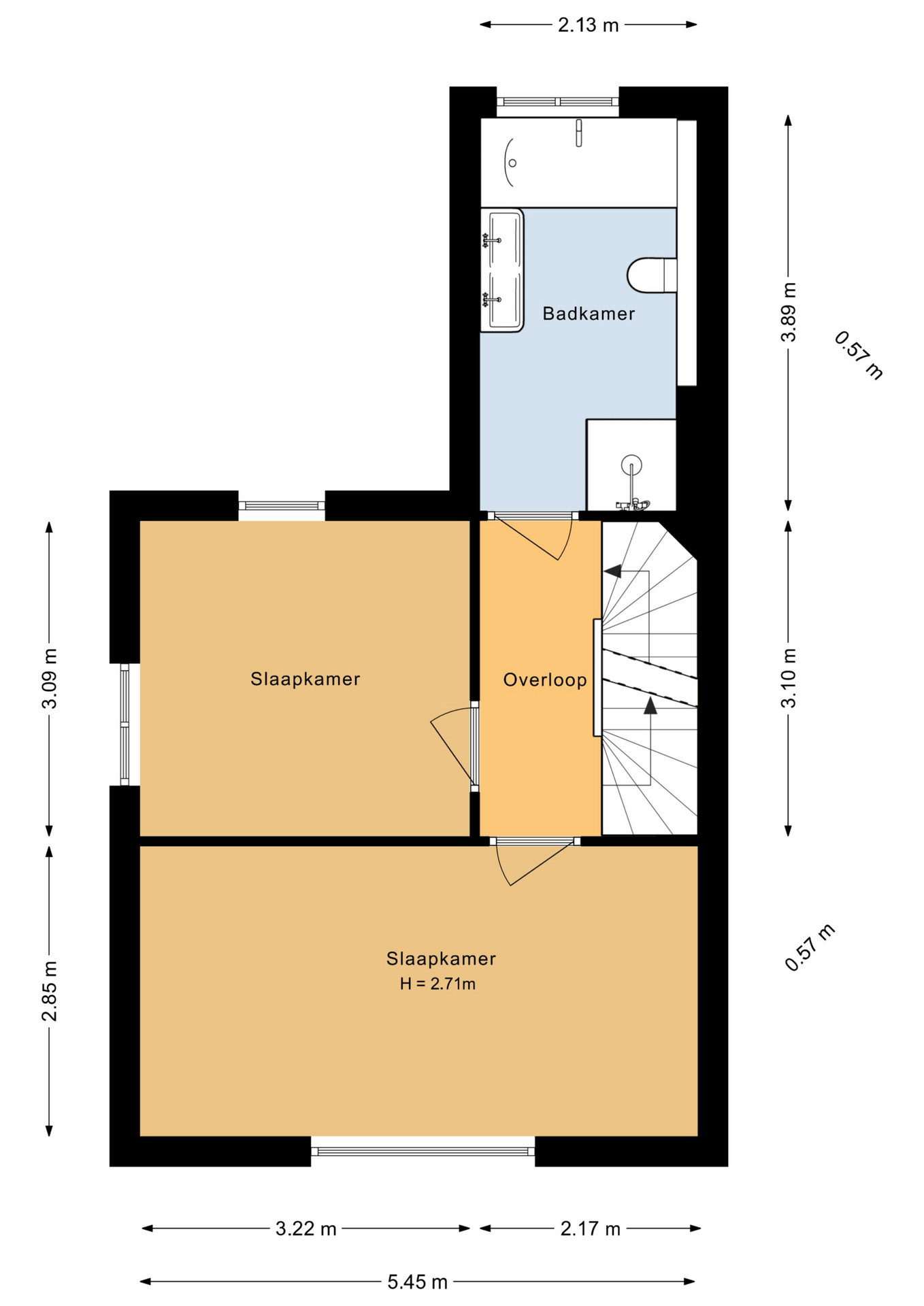
1e Verdieping:
Overloop met toegang tot 2 ruime slaapkamers (ca. 16 en 10 m2), waarbij de ouderslaapkamer over de volle breedte van de woning. De badkamer (2022) is een echte eyecatcher en is uitgevoerd met een ligbad/whirlpool (met tv scherm), een inloopdouche, 2e toilet, wastafelmeubel met een dubbele wastafel, vloerverwarming en een raam voor de natuurlijke ventilatie. De verdieping is voorzien van een laminaatvloer.
2e Verdieping:
Overloop met toegang de technische ruimte met de opstelplaats van de cv-ketel (2019), de mechanische ventilatie box, de wasmachine/droger en veel praktische bergruimte. Bijzonder ruime 3e slaapkamer (ca. 20 m2), welke eenvoudig aangepast kan worden naar 2 ruime slaapkamers. De verdieping is voorzien van een laminaatvloer.
Tuin:
De verzorgd aangelegde tuin is gelegen op het zuiden en voorzien van een groot gazon, siergrind, een overkapping, een vrijstaande houten berging en een praktische achterom. De tuin is onderhoudsarm aangelegd, biedt veel privacy en wordt omheind middels hout/beton schuttingen en groenen hagen.
* Schitterende onder architectuur gebouwde hoekwoning met 3 ruime slaapkamers (mogelijkheden voor 4)
* De woning is voorzien van een nette inbouwkeuken (2017) en een moderne badkamer (2022)
* De begane grond is voorzien van een fraaie tegelvloer met vloerverwarming
* Voorzien van 8 zonnepanelen
* Verzorgd aangelegde tuin met een ligging op het zuiden en veel privacy!
* Parkeergelegenheid op eigen terrein en voldoende parkeergelegenheid in de directe omgeving
* Gelegen nabij scholen, een buurtwinkelcentrum, het "Woldpark", openbaar vervoer, het stadscentrum en het NS-station
* Woonoppervlak: 130 m2
* Kaveloppervlak: 210 m2 eigen grond
* Bouwjaar: 2006
* Energielabel: A
Aanvaarding in overleg.
Contact en info
Heb je vragen over deze woning of wil je een bezichtiging inplannen? Neem dan gerust contact met ons op, we helpen je graag verder!
Plan een bezichtigingKenmerken
Interesse of meer weten?
Leuk dat je geïnteresseerd bent in deze woning! Als erkende makelaar staan wij voor je klaar om al je vragen te beantwoorden en om een bezichtiging in te plannen.