Wold 25 38

8225 BK Lelystad
€ 335.000,- k.k.
3kamers
117 m2wonen
142 m2perceel

Algemene informatie

Aanvaarding
In overleg
Type woning
Tussenwoning
Energieklasse
B

Omschrijving

Op een heerlijke plek in de kindvriendelijke woonwijk het “Wold”, gelegen eengezinswoning met 3 ruime slaapkamers, vloerverwarming op de begane grond, een moderne keuken en badkamer, een aangebouwde berging/bijkeuken, een balkon en voldoende parkeergelegenheid in de straat. Deze woning is gebouwd in 1981, gesitueerd op een perceel van 142 m2 eigen grond, heeft een tuin met ligging op het noordwesten met gezellige overkapping en biedt met een woonoppervlakte van 117 m2 een heerlijk ruim (t)huis voor uw gezin of familie. De woning is uitgevoerd met kunststof kozijnen met HR++ beglazing, beschikt over een zonneboiler en heeft een energielabel B!

Ook de ligging is ideaal, op korte afstand van het stadshart van Lelystad met alle voorzieningen zoals een vrij compleet winkelaanbod, het station, het theater en het ziekenhuis. Daarnaast bevinden zich circa vijf basisscholen op loopafstand en is het wijkwinkelcentrum eveneens op loopafstand bereikbaar voor de dagelijkse boodschappen.

Kortom: alle gemakken van de stad binnen handbereik, maar gelegen in een groene, kindvriendelijke woonwijk met een ruime keuze aan basisscholen om de hoek.

"Nu bieden vanaf € 335.000,- k.k.. De gestelde vraagprijs betreft een "bieden vanaf prijs". Biedingen vanaf € 335.000,- k.k. zullen door verkoper in behandeling genomen worden".

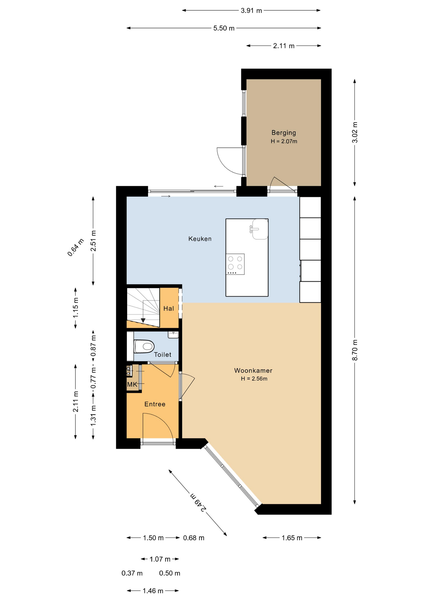
Indeling;
Begane grond:
Entree/hal met de meterkast en ruimte voor de jassen en schoenen, moderne toiletruimte met fonteintje en toegang tot de woonkamer. Een ruime straatgerichte woonkamer met grote raampartijen, een kunststof schuifpui naar de achtertuin en een nis met opstelmogelijkheid voor een eettafel waar u heerlijk met vrienden en familie kunt dineren. Aan de achterzijde bevindt zich de luxe inbouwkeuken (2012) met kook- /spoeleiland, welke is voorzien van de volgende inbouwapparatuur; vaatwasser, oven, magnetron, inductiekookplaat, afzuigkap en koel-vriescombinatie. Aangrenzend de praktische en deels na geïsoleerde berging/bijkeuken met verwarming en een loopdeur naar de achtertuin.
De begane grond is voorzien van vloerverwarming en een keurige PVC-vloer.

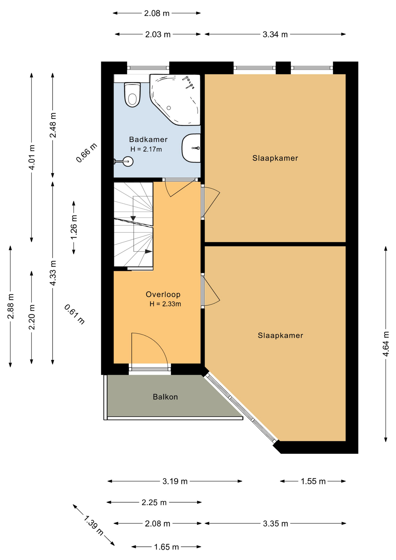
Eerste verdieping:
Zeer ruime overloop welkte toegang geeft tot het balkon op het zuidoosten en ruimte biedt voor een werkplek of kledingkast. Twee ruime slaapkamers (ca. 14 m² / 13 m²). Keurige, volledig betegelde badkamer (2012) met een ruime inloopdouche, ligbad, tweede toilet, toiletkast, designradiator, wastafelmeubel, mechanische ventilatie en een raam voor de natuurlijke ventilatie. De verdieping is voorzien van een nette laminaatvloer.

Tweede verdieping:
Ruime overloop met opstelplaats voor de wasmachine/droger, cv-ketel (2012), zonneboiler (2016), de mechanische ventilatie box en voldoende ruimte om de was te drogen. Ruime derde slaapkamer (ca. 15 m²) met een dakraam.

Achtertuin:
De achtertuin is onderhoudsvriendelijk aangelegd, gelegen op het noordwesten (middag-/avondzon!), omheind doormiddel van hout/beton schuttingen en voorzien een praktische achterom. Vanuit de achtertuin loopt u zo een speelveldje in. Ideaal voor gezinnen met kinderen!

Bijzonderheden:
* In de kindvriendelijke woonwijk "Wold" gelegen eengezinswoning met 3 ruime slaapkamers;
* De woning is voorzien van kunststof kozijnen (2016);
* Voorzien van een complete keuken (2012) en badkamer (2012);
* De woonkamer is voorzien van een kunststof schuifpui en comfortabele vloerverwarming;
* Cv-ketel (2012, eigendom) en een zonneboiler (2016);
* De achtertuin is gelegen op het noordwesten (middag-/avondzon) en is gelegen aan een speelveldje;
* Voldoende gratis parkeergelegenheid in de directe omgeving;
* De woning gelegen nabij het centrum, een buurtwinkelcentrum, maar liefst 6 basisscholen om de hoek, het NS-station en het Woldpark;
* Woonoppervlak: 117 m²;
* Kaveloppervlak: 142 m² eigen grond;
* Bouwjaar: 1981;
* Energielabel: B.

Aanvaarding in overleg.

Lees de volledige omschrijving

Contact en info

Heb je vragen over deze woning of wil je een bezichtiging inplannen? Neem dan gerust contact met ons op, we helpen je graag verder!

Plan een bezichtiging

Kenmerken

Overdracht
Status
Verkocht
Koopprijs
€ 335.000,-
Aanvaarding
In overleg
Woonoppervlakte
117 m2
Inhoud
379 m3
Bouwvorm
Soort object
Woonhuis
Type woning
Tussenwoning
Soort
Eengezinswoning
Bouwjaar
1981
Bouwvorm
Bestaande bouw
Ligging
Aan rustige weg, In woonwijk
Overdracht
Woonoppervlakte
117 m2
Perceel oppervlakte
142 m2
Inhoud
379 m3
Aantal kamers
4
Aantal slaapkamers
3
Energie
Energieklasse
B
Isolatievormen
Vloerisolatie
Verwarming
CV ketel, Vloerverwarming gedeeltelijk
Bouwjaar
2012
Buitenruimte
Tuin
Achtertuin, Voortuin
Hoofdtuin
Achtertuin
Hoofdtuin oppervlakte
65 m2
Positie
Noordwest
Achterom
Ja
Kwaliteit
Verzorgd
Bergruimte
Soort
Aangebouwd steen
Voorzieningen
Voorzien van elektra
Isolatievormen
Dakisolatie
Parkeergelegenheid
Garage
Geen garage
Voorzieningen
Voorzien van elektra
Parkeer faciliteiten
Openbaar parkeren
Dak
Soort dak
Samengesteld dak
Voorzieningen
Voorzieningen
Mechanische ventilatie, TV kabel, Schuifpui, Dakraam, Glasvezel kabel
Overig
Permanente bewoning
Ja
Onderhoud binnen
Goed
Onderhoud buiten
Goed tot uitstekend
Huidig gebruik
Woonruimte
Huidige bestemming
Woonruimte
Bekijk alle specificaties

Interesse of meer weten?

Leuk dat je geïnteresseerd bent in deze woning! Als erkende makelaar staan wij voor je klaar om al je vragen te beantwoorden en om een bezichtiging in te plannen.

bureauhanze

    Met het versturen van dit formulier ga je akkoord met onze gebruiksvoorwaarden en privacybeleid.