Wogmeer 15
Algemene informatie
Omschrijving
Op een heerlijke plek aan de buitenrand van Lelystad Haven ligt deze eengezinswoning met 4 ruime slaapkamers, een moderne inbouwkeuken, een nette badkamer, kunststof kozijnen en parkeergelegenheid op eigen terrein. Deze woning is gebouwd in 1982, gesitueerd op een perceel van 170 m2 eigen grond en biedt met een woonoppervlakte van 100 m2 een heerlijk ruim (t)huis voor uw gezin of familie! Daarnaast is de woning goed geïsoleerd (energielabel A), en voorzien van 15 zonnepanelen, wat niet alleen bijdraagt aan een duurzame levensstijl, maar ook helpt bij het besparen op energiekosten. De woning heeft een vrije ligging aan de achterzijde en wordt omringd door “het Bovenwater”, “de Oostvaardersplassen” en het Markermeer.
Zoekt u groen, water, rust en privacy dan is deze instapklare eengezinswoning een uitgelezen kans!
"Nu bieden vanaf € 325.000,-. De gestelde vraagprijs betreft een "bieden vanaf prijs". Biedingen vanaf € 325.000,- zullen door verkoper in behandeling genomen worden".
Indeling;
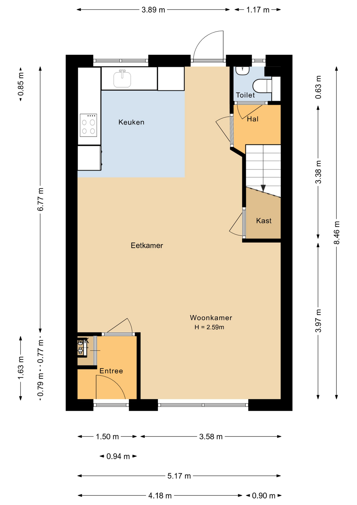
Begane grond:
Entree/hal met de garderobe, meterkast (2019) en toegang naar de woonkamer. Een heerlijke straatgerichte woonkamer met grote raampartijen (veel lichtinval) en een praktische trapkast. Aan de achterzijde bevindt zich de moderne inbouwkeuken (2020) in L-opstelling, welke voorzien is van de volgende apparatuur; koelkast, vriezer, vaatwasser, oven, magnetron, 4-pits inductiekookplaat en een afzuigkap. Ruime opstelmogelijkheden voor een grote eettafel waar u heerlijk met uw vrienden en familie kunt dineren. Tussenhal met de toiletruimte (2020) en de trapopgang naar de verdieping. De begane grond is voorzien van een laminaatvloer.
1e Verdieping:
Overloop met toegang tot 3 ruime slaapkamers (ca. 10 / 9 / 6 m2), waarbij de ouderslaapkamer is voorzien van ingebouwde kastruimte. Nette badkamer (2020) met een douche, 2e toilet, wastafelmeubel, designradiator en een raam voor de natuurlijke ventilatie. De verdieping is voorzien van een laminaatvloer.
2e Verdieping:
Overloop met de opstelplaats van de cv-ketel (2013), de wasmachine/droger aansluiting en veel praktische bergruimte. Toegang tot de ruime 4e slaapkamer (ca. 12 m2) met een dakraam. De verdieping is voorzien van een laminaatvloer.
Tuin:
De verzorgd aangelegde tuin is voorzien van een groot terras met bestrating, een gevelkraan, zonwering, een vrijstaande stenen berging, een vrijstaande houten berging en een praktische achterom. De tuin is onderhoudsarm aangelegd, heeft een vrije ligging aan de achterzijde en grenst aan een park met speeltoestellen. Ideaal voor gezinnen met kinderen!
* Op een heerlijke plek aan de buitenrand van Lelystad Haven, ligt deze eengezinswoning met 4 ruime slaapkamers
* De woning is voorzien van een moderne inbouwkeuken (2020) en een nette badkamer (2018)
* De woning is voorzien van kunststof kozijnen met HR+ beglazing
* Het platte dak van de berging is vervangen in 2021
* Voorzien van 15 zonnepanelen (2019), type: Long Solar (huurprijs € 63,- per maand)
* Verzorgd aangelegde tuin met een vrijstaande stenen berging en een vrijstaande houten berging
* Parkeergelegenheid op eigen terrein en voldoende parkeergelegenheid in de directe omgeving
* Gelegen nabij natuurgebied “De Oostvaardersplassen” en recreatieplas “Het Bovenwater”
* Woonoppervlak: 100 m2
* Kaveloppervlak: 170 m2
* Bouwjaar: 1982
* Energielabel: A
Aanvaarding in overleg.
Contact en info
Heb je vragen over deze woning of wil je een bezichtiging inplannen? Neem dan gerust contact met ons op, we helpen je graag verder!
Plan een bezichtigingKenmerken
Interesse of meer weten?
Leuk dat je geïnteresseerd bent in deze woning! Als erkende makelaar staan wij voor je klaar om al je vragen te beantwoorden en om een bezichtiging in te plannen.