Weerribben 3
Algemene informatie
Omschrijving
Ruime geschakelde twee-onder-een-kapwoning aan het water met slaapkamer op de begane grond!
Aan de rand van de gewilde wijk ligt deze ruime en lichte twee-onder-een-kapwoning met een prachtig vrij uitzicht over “Het Bovenwater”. De woning, gebouwd in 1998, heeft een woonoppervlakte van circa 137 m² en staat op een fraai perceel van 255 m², direct aan het water gelegen. Dankzij de combinatie van ruimte, comfort en de unieke ligging is dit een heerlijke plek om te wonen.
Bij binnenkomst valt direct de royale en sfeervolle woonkamer op. De lichte leefruimte van circa 34 m² is voorzien van een fraaie gashaard en grote raampartijen die zorgen voor een prettige lichtinval. Via de schuifpui is er direct toegang tot de tuin, waardoor binnen en buiten op een natuurlijke manier in elkaar overlopen. De gehele begane grond is voorzien van vloerverwarming, wat zorgt voor extra comfort in elk seizoen.
Aan de voorzijde van de woning bevindt zich de open keuken met een prachtig vrij uitzicht over het water van “Het Bovenwater”. Hier is het elke dag genieten tijdens het koken of het ontbijt, met een weids panorama voor de deur. Op de begane grond bevindt zich bovendien een ruime slaapkamer – ideaal voor wie levensloopbestendig wil wonen of behoefte heeft aan een werk- of hobbykamer op de begane grond.
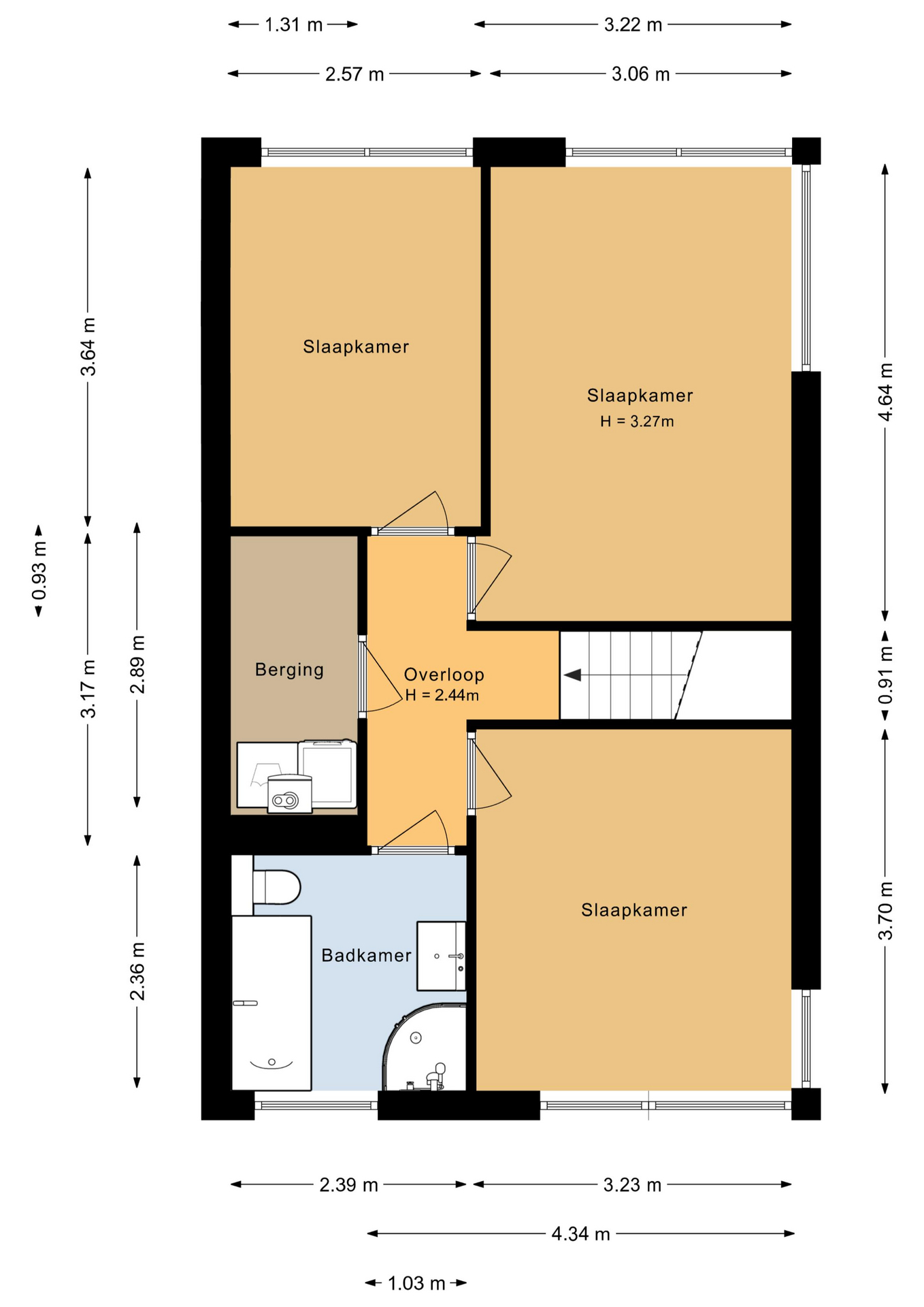
De eerste verdieping biedt drie goed bemeten slaapkamers, elk met voldoende lichtinval en praktische indeling. De badkamer is compleet uitgerust met een wastafelmeubel, toilet, ligbad en aparte douche.
De achtertuin is verzorgd aangelegd en meet circa 10 bij 9 meter. De ligging aan het water en op het noordoosten zorgt voor een heerlijk rustgevende sfeer met volop privacy. Hier kun je ontspannen genieten van de zon, een kop koffie aan het water of een gezellige barbecue met familie en vrienden. Een houten berging biedt extra opbergruimte voor fietsen en tuingereedschap.
De locatie is bijzonder aantrekkelijk: rustig en groen, maar toch nabij alle voorzieningen zoals scholen, winkels, openbaar vervoer en recreatiegebied “Het Bovenwater”. Ook de uitvalswegen richting de A6 zijn binnen enkele minuten bereikbaar, waardoor zowel Almere als Amsterdam goed bereikbaar zijn.
Kortom:
Een royale en goed onderhouden woning met veel leefruimte, een schitterende ligging aan het water en een praktische indeling met slaapkamer op de begane grond. Een ideale gezinswoning, maar ook uitermate geschikt voor wie comfortabel en gelijkvloers wil wonen in een rustige, waterrijke omgeving.
"Nu bieden vanaf € 475.000,- k.k.. De gestelde vraagprijs betreft een "bieden vanaf prijs". Biedingen vanaf € 475.000,- k.k. zullen door verkoper in behandeling genomen worden".
Indeling;
Begane grond:
Entree, hal, toilet met fonteintje, open L-vormige keuken, zeer ruime en lichte woonkamer (ca. 34 m²) voorzien van sfeervolle gashaard, deur en schuifpui naar de achtertuin, slaapkamer 1 (ca. 18 m²).
De begane grond is voorzien van een plavuizenvloer en vloerverwarming.
Eerste verdieping:
Overloop, slaapkamer 2 (ca. 14 m²), slaapkamer 3 (ca. 12 m²), slaapkamer 4 (ca. 9 m²), badkamer voorzien van wastafel met meubel, toilet, douche, ligbad en natuurlijke ventilatie, aparte ruimte met opstelling wassen/drogen en opstelling CV-ketel.
De eerste verdieping is voorzien van een laminaatvloer.
Tuin:
De voortuin is gelegen op het zuidwesten, parkeren doet u eenvoudig op eigen terrein.
De achtertuin (10x9 meter) is gelegen aan het water, op het noordoosten. Hier kunt u heerlijk genieten in alle rust
Bijzonderheden:
* Energielabel B:
* Volledig geïsoleerd;
* Geheel voorzien van kunststof kozijnen;
* Vrij uitzicht over "Het Bovenwater";
* Achtertuin grenzend aan water;
* Liefhebber van recreatief varen? Dat is hier toegestaan!
* Natuur- en vogelliefhebber? De Oostvaardersplassen liggen op korte afstand;
* Het dak is vernieuwd in 2012;
* Vloerverwarming over de gehele begane grond;
* Slaapkamer op de begane grond is mogelijk, evenals een praktijkruimte of kantoor aan huis;
* Buitenzonwering aanwezig op de begane grond bij de keuken.
Contact en info
Heb je vragen over deze woning of wil je een bezichtiging inplannen? Neem dan gerust contact met ons op, we helpen je graag verder!
Plan een bezichtigingKenmerken
Interesse of meer weten?
Leuk dat je geïnteresseerd bent in deze woning! Als erkende makelaar staan wij voor je klaar om al je vragen te beantwoorden en om een bezichtiging in te plannen.