Vijfherenlanden 72
Algemene informatie
Omschrijving
Op een schitterende locatie met weids uitzicht over groen en gelegen in de populaire en kindvriendelijke woonwijk de “Landstrekenwijk”, eengezinswoning van het type drive-in met 3 ruime slaapkamers (mogelijkheden voor 4), een fraaie inbouwkeuken, luxe badkamer, een diepe tuin met ligging op het noordwesten (middag-avondzon!), parkeergelegenheid op eigen terrein en een riant souterrain (49 m²) geschikt voor meerdere doeleinden!
Deze woning is gebouwd in 1998, compleet gemoderniseerd en biedt met een woonoppervlakte van 118 m² + een royaal souterrain van 49 m² een heerlijk ruim (t)huis voor het gezin! Daarnaast is de woning uitstekend geïsoleerd (energielabel A) en voorzien van HR++ beglazing, wat niet alleen bijdraagt aan een duurzame levensstijl, maar ook helpt bij het besparen op energiekosten. De woning straalt een eigentijdse sfeer uit, waarbij hoogwaardige afwerkingen zorgen voor een luxe uitstraling. Het interieur is tot in de puntjes verzorgd, waardoor je je meteen thuis zult voelen!
Ondertussen is alledaags gemak goed bereikbaar, want alle denkbare voorzieningen zijn op loop-/fietsafstand. Denk hierbij aan scholen, een buurtwinkelcentrum, uitvalswegen en natuurgebied "de Oostvaardersplassen". Werk je buiten Lelystad? Via de A6 rijd je in 3 kwartier naar Utrecht of Amsterdam. Ga je liever met het openbaar vervoer? Het NS station van Lelystad is slechts 8 minuten fietsen.
Kortom: deze luxe drive-in woning is tot in de puntjes afgewerkt en zo te betrekken. Mis deze kans niet en kom dit prachtige huis zelf ervaren!
"Nu bieden vanaf € 450.000,- k.k.. De gestelde vraagprijs betreft een "bieden vanaf prijs". Biedingen vanaf € 450.000,- k.k. zullen door verkoper in behandeling genomen worden".
Indeling
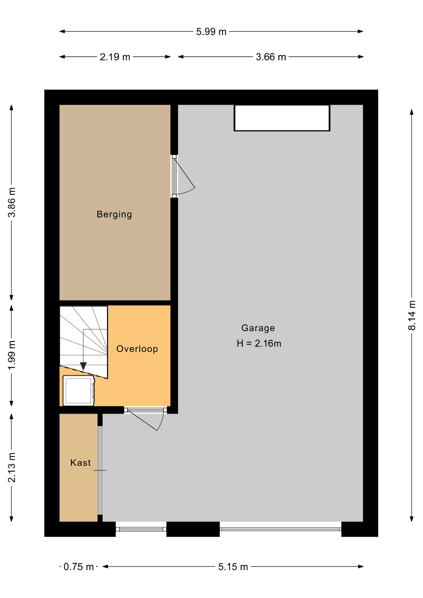
Souterrain: Bereikbaar vanaf zowel de hal op de eerste verdieping als ook via de eigen entree op straatniveau kom je terecht in de royale geïsoleerde, recent gerenoveerde garage van circa 32 m², welke is voorzien van een elektrische sectionaaldeur (2024), moderne plavuizenvloer en een separate berging. De overloop is opstelplaats voor de wasmachine/droger en trapopgang naar de woonverdieping.
Begane grond:
Via een zogenaamde bordestrap bereik je de entree; hal, meterkast, toiletruimte (2022), trap naar het souterrain en de eerste verdieping; een heerlijke lichte woonkamer met grote raampartijen, een fraai afgewerkt plafond met inbouwspots en een schuifpui naar de achtertuin. Aan de voorzijde bevindt zich de fraaie inbouwkeuken (2018), welke voorzien is van de volgende apparatuur; koelkast, vriezer, vaatwasser, combi-oven, inductiekookplaat en een afzuigkap. Terwijl je staat te koken geniet je van een fantastisch vrij uitzicht over groen, met daarnaast volop ruimte voor een grote eettafel waar je heerlijk met familie kunt dineren. Bovendien geniet je dankzij de verhoogde ligging ten opzichte van het straatniveau altijd van optimale privacy! De begane grond is voorzien van een fraaie laminaatvloer.
Eerste verdieping:
Overloop; twee (voormalig drie) slaapkamers waarbij de grootste slaapkamer maar liefst 26 m² groot is! Tevens is de slaapkamer voorzien van een royale schuifdeurenkast en een moderne cinewall. Luxe, fraai uitgevoerde badkamer (2022) welke is voorzien van een separate douchehoek, vrijhangend toilet en een moderne betonlook wastafel met zwevend design. Deze verdieping is voorzien van een fraaie laminaatvloer.
Tweede verdieping:
De open verdieping van ruim 19 m² is momenteel in gebruik als derde slaapkamer. Hier bestaat de mogelijkheid om een doorgang te creëren naar het platte dak en zo een prachtig dakterras te realiseren. De verdieping is bovendien afgewerkt met een fraaie laminaatvloer.
Tuin: Georiënteerd op het noordwesten (middag-avondzon!), ca. 6,3 x 11 meter welke is voorzien van een terras met elektrisch zonnescherm, een waterpunt, volledig bestraat, verdiept gelegen deel met separate berging en een achterom.
* Fraai gelegen eengezinswoning in de populaire en kindvriendelijke woonwijk de “Landstrekenwijk”
* Zeer royaal souterrain van maar liefst 49 m², in te richten als hobbyruimte, kantoor aan huis of extra slaapkamer;
* De woning is voorzien van 3 ruime slaapkamers (mogelijkheden voor 4 of zelfs 5);
* De woning is voorzien van een fraaie inbouwkeuken (2018) en een luxe badkamer (2022)
* Het buitenschilderwerk is uitgevoerd in oktober 2024
* Aangesloten op het stadsverwarmingsnet – toekomstbestendig en gasloos!
* Parkeergelegenheid op eigen terrein
* De woning is gelegen nabij scholen, een buurtwinkelcentrum, het stadscentrum en het NS-station
* Woonoppervlak: 118 m2 + 49 m² overig inpandige ruimte
* Kaveloppervlak: 164 m2 eigen grond
* Bouwjaar: 1998
* Energielabel: A
Oplevering in overleg
Contact en info
Heb je vragen over deze woning of wil je een bezichtiging inplannen? Neem dan gerust contact met ons op, we helpen je graag verder!
Plan een bezichtigingKenmerken
Interesse of meer weten?
Leuk dat je geïnteresseerd bent in deze woning! Als erkende makelaar staan wij voor je klaar om al je vragen te beantwoorden en om een bezichtiging in te plannen.