Tautenburg 22
Algemene informatie
Omschrijving
Deze karakteristieke vrijstaande woning met aangebouwde berging is gelegen in de populaire woonwijk 'Landerijen-Oost'. Een woonwijk aan de rand van Lelystad, nabij natuur, uitvalswegen en alle denkbare voorzieningen.
Op deze rustige plek kunt u met veel plezier en privacy wonen. De ideale woonwijk voor zowel jong als oud. De buurt is zeer geschikt voor opgroeiende kinderen.
Tevens is de woning met de voorzijde gelegen aan een mooie groenvoorziening met een speeltuin.
De woning beschikt over een mooie, privacy biedende tuin rondom met aan de voorzijde parkeergelegenheid op de oprit.
Aan de achterzijde treft u diverse terrasjes om op elk moment van de dag heerlijk van de zon of schaduw te kunnen genieten. Ook zijn er een vijver en een houten blokhut aanwezig. Onder de royale gezellige overkapping van ca. 23 m² met lichtkoepel is het heerlijk vertoeven, ook in de lente en herfst.
De woning staat op een perceel van 531 m² en heeft een woonoppervlak van ca. 168 m².
Energie Besparende Voorzieningen (Label A):
- 14 zonnepanelen
- HR ++ glas
- vloerisolatie
- muurisolatie
- dakisolatie
- HR combiketel uit 2021
"Nu bieden vanaf € 699.000,- k.k. De gestelde vraagprijs betreft een "bieden vanaf prijs". Biedingen vanaf € 699.000,- k.k. zullen door verkoper in behandeling genomen worden".
Begane grond:
Het entree biedt toegang het toilet, de bijkeuken en de woonkamer. De royale L-vormige woonkamer van ca. 42 m² met vaste kastenwand, heeft openslaande deuren naar tuin en overkapping.
In de half open keuken vindt u een hoekopstelling met aan de overzijde nog een kastenwand.
Aanwezige inbouwapparatuur: keramische kookplaat met afzuigschouw, een koel / vries combinatie, een koffiemachine, vaatwasmachine en combioven.
De bijkeuken is voorzien van een aansluiting voor de wasmachine en droger. De aangebouwde berging is binnendoor te bereiken middels een deur in de bijkeuken.
Op de gehele parterre is vloerverwarming toegepast.
Verdieping:
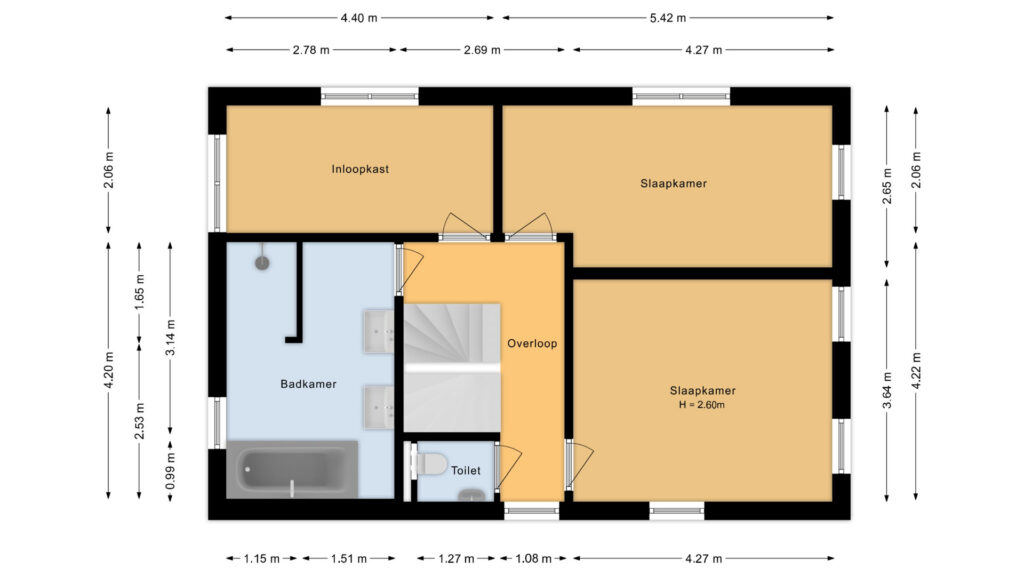
Via de overloop zijn een separate sanitaire ruimte met een vrij hangend toilet en de drie slaapkamers te bereiken.
De ruime badkamer van ca. 18,5 m² beschikt over een whirlpool ligbad, een ruime inloopdouche met glazen deur, wastafelmeubel met dubbele wastafel (met thermostaatkranen) en designradiator.
Zolder:
Via een vaste trap bereikt u de open bergzolder met dakraam en bergruimte in de knieschotten. Op deze verdieping is eenvoudig een slaapkamer te realiseren.
Contact en info
Heb je vragen over deze woning of wil je een bezichtiging inplannen? Neem dan gerust contact met ons op, we helpen je graag verder!
Plan een bezichtigingKenmerken
Interesse of meer weten?
Leuk dat je geïnteresseerd bent in deze woning! Als erkende makelaar staan wij voor je klaar om al je vragen te beantwoorden en om een bezichtiging in te plannen.