Smeden 29

8301 XG Emmeloord
€ 315.000,- k.k.
4kamers
126 m2wonen
155 m2perceel

Algemene informatie

Aanvaarding
In overleg
Type woning
Tussenwoning
Energieklasse
A

Omschrijving

Compleet gerenoveerde en instapklare eengezinswoning aan de Smeden 29 te Emmeloord!

U leest het goed, deze woning is het afgelopen jaar (2025) volledig onder handen genomen en is voorzien van 4 ruime slaapkamers, een luxe inbouwkeuken, een moderne badkamer en heeft een tuin met ligging op het zuiden! Daarnaast is de woning uitstekend geïsoleerd (energielabel A) en voorzien van nieuwe HR++ beglazing, deels kunststof gevelbekleding en 12 zonnepanelen, wat niet alleen bijdraagt aan een duurzame levensstijl, maar ook helpt bij het besparen op energiekosten. De woning straalt een heerlijke eigentijdse sfeer uit, waarbij hoogwaardige afwerkingen zorgen voor een luxe uitstraling. Verder is de woning gelegen op loopafstand van het gezellige centrum met diverse restaurants en winkels. Het geheel is gelegen op 155 m2 eigen grond.

Kortom: deze luxe eengezinswoning is tot in de puntjes afgewerkt en zo te betrekken. Mis deze kans niet en kom dit prachtige huis zelf ervaren!

"Nu bieden vanaf € 315.000,- k.k.. De gestelde vraagprijs betreft een "bieden vanaf prijs". Biedingen vanaf € 315.000,- k.k. zullen door verkoper in behandeling genomen worden".

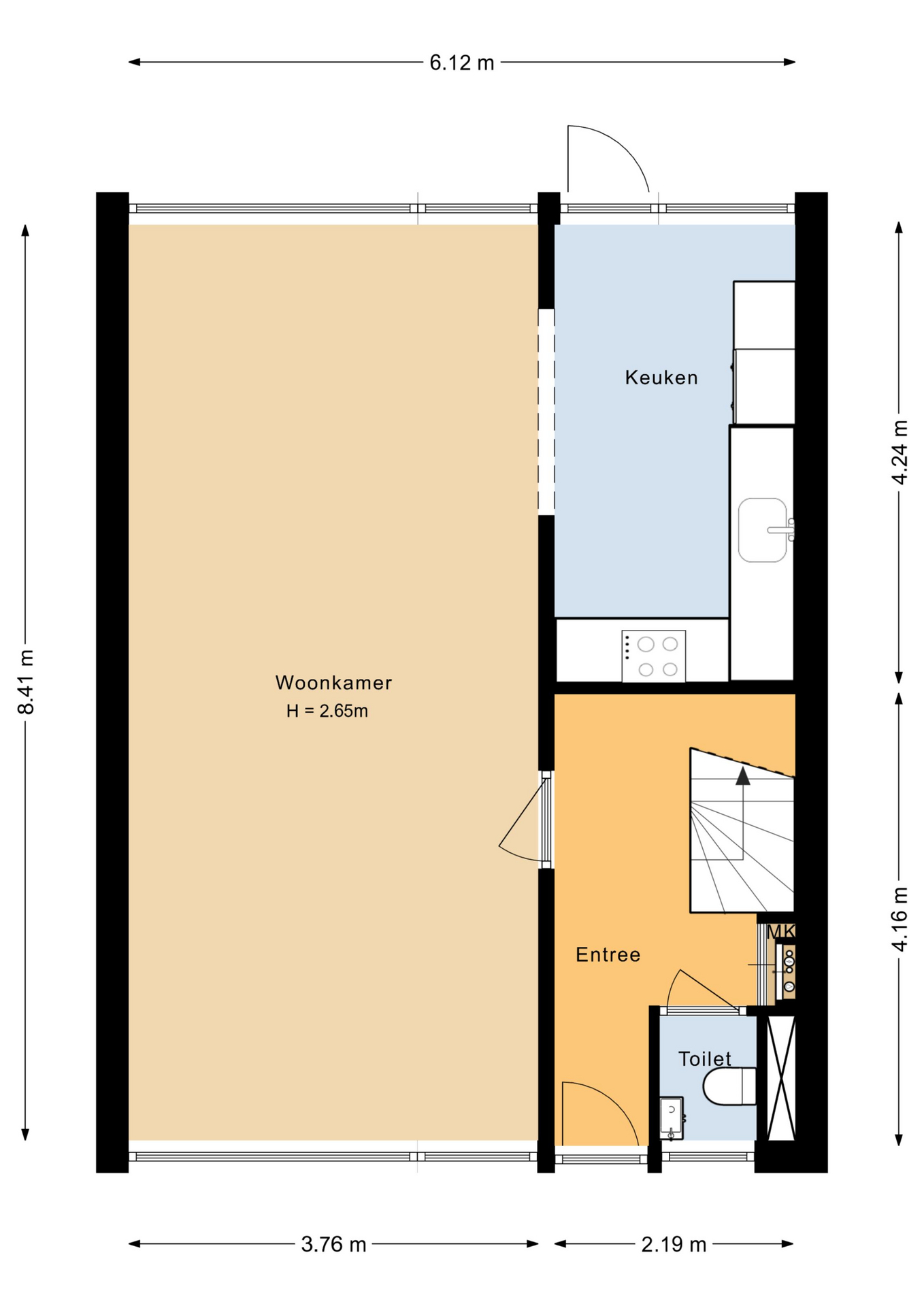
Indeling;
Begane grond:
Entree/hal met de toiletruimte, meterkast, trapopgang naar de verdieping en toegang tot de woonkamer. Een heerlijke ruime doorzon woonkamer van ca. 32 m2 met grote raampartijen (veel lichtinval) en een doorloop naar de keukenruimte. Deze is voorzien van een luxe inbouwkeuken met de volgende apparatuur; koelkast, vriezer, vaatwasser, combi-oven en een 4-pits inductiekookplaat met een geïntegreerde afzuigkap. De begane grond is voorzien van glad gestuukte wanden en plafonds en een fraaie laminaatvloer.

1e verdieping:
Overloop met toegang tot 3 ruime slaapkamers (ca. 16 / 15 / 9 m2). Moderne badkamer met een inloopdouche, 2e toilet, wastafelmeubel en een raam voor de natuurlijke ventilatie. De verdieping is voorzien van glad gestuukte wanden en plafonds en een fraaie laminaatvloer.

2e verdieping:
Overloop met de opstelplaats van de cv-installatie (2020), de omvormer voor de 12 zonnepanelen, de wasmachine aansluiting en veel praktische bergruimte. Toegang tot de ruime 4e slaapkamer (ca. 11 m2) met 2 dakramen. De verdieping is voorzien van glad gestuukte wanden en plafonds en een fraaie laminaatvloer.

Tuin:
De verzorgd aangelegde tuin is gelegen op het zonnige zuiden en voorzien van bestrating, deels vernieuwde schuttingen, een vrijstaande stenen berging met overkapping en een praktische achterom.

* Compleet gerenoveerde en instapklare eengezinswoning aan de Smeden 29 te Emmeloord!
* Voorzien van 4 ruime slaapkamers, een luxe inbouwkeuken en een moderne badkamer
* Binnen en buitenschilderwerk is uitgevoerd in 2025
* Voorzien van kunststof gevelbekleding aan de voorzijde en 12 zonnepanelen aan de achterzijde
* Verzorgd aangelegde tuin met deels vernieuwde schuttingen en een ligging op het zuiden!
* Parkeergelegenheid vlak voor de deur en voldoende parkeergelegenheid in de directe omgeving
* Op loopafstand van het gezellige centrum met diverse restaurants en winkels
* Woonoppervlak: 126 m2
* Kaveloppervlak: 155 m2 eigen grond
* Bouwjaar: 1972
* Energielabel: A

Aanvaarding in overleg.

Lees de volledige omschrijving

Contact en info

Heb je vragen over deze woning of wil je een bezichtiging inplannen? Neem dan gerust contact met ons op, we helpen je graag verder!

Plan een bezichtiging

Kenmerken

Overdracht
Status
Verkocht
Koopprijs
€ 315.000,-
Aanvaarding
In overleg
Woonoppervlakte
126 m2
Inhoud
442 m3
Bouwvorm
Soort object
Woonhuis
Type woning
Tussenwoning
Soort
Eengezinswoning
Bouwjaar
1972
Bouwvorm
Bestaande bouw
Ligging
Aan rustige weg, In woonwijk
Overdracht
Woonoppervlakte
126 m2
Perceel oppervlakte
155 m2
Inhoud
442 m3
Aantal kamers
5
Aantal slaapkamers
4
Energie
Energieklasse
A
Isolatievormen
Muurisolatie, Dubbelglas, HR glas
Verwarming
CV ketel
Bouwjaar
2020
Buitenruimte
Tuin
Achtertuin, Voortuin
Hoofdtuin
Achtertuin
Hoofdtuin oppervlakte
75 m2
Positie
Zuid
Achterom
Ja
Kwaliteit
Verzorgd
Bergruimte
Soort
Vrijstaand steen
Voorzieningen
Voorzien van elektra
Parkeergelegenheid
Garage
Geen garage
Voorzieningen
Voorzien van elektra
Parkeer faciliteiten
Openbaar parkeren
Dak
Soort dak
Zadeldak
Kwaliteit dak
Pannen
Voorzieningen
Voorzieningen
TV kabel, Dakraam, Glasvezel kabel, Zonnepanelen
Overig
Permanente bewoning
Ja
Onderhoud binnen
Goed
Onderhoud buiten
Goed
Huidig gebruik
Woonruimte
Huidige bestemming
Woonruimte
Bekijk alle specificaties

Interesse of meer weten?

Leuk dat je geïnteresseerd bent in deze woning! Als erkende makelaar staan wij voor je klaar om al je vragen te beantwoorden en om een bezichtiging in te plannen.

bureauhanze

    Met het versturen van dit formulier ga je akkoord met onze gebruiksvoorwaarden en privacybeleid.