Schermer 22

8244 AN Lelystad
€ 389.500,- k.k.
4kamers
115 m2wonen
168 m2perceel

Algemene informatie

Aanvaarding
In overleg
Type woning
Tussenwoning
Energieklasse
B

Omschrijving

Compleet gerenoveerde en instapklare eengezinswoning aan de Schermer 22 te Lelystad!

U leest het goed, deze woning is het afgelopen jaar (2025) volledig onder handen genomen en is voorzien van 4 ruime slaapkamers, een luxe inbouwkeuken, een moderne badkamer en heeft een tuin met ligging op het westen! Daarnaast is de woning uitstekend geïsoleerd (energielabel B) en voorzien van nieuwe HR++ beglazing en nieuwe dakramen, wat niet alleen bijdraagt aan een duurzame levensstijl, maar ook helpt bij het besparen op energiekosten. De woning straalt een heerlijke eigentijdse sfeer uit, waarbij hoogwaardige afwerkingen zorgen voor een luxe uitstraling. De woning is gelegen in de populaire en kindvriendelijke woonwijk "Lelystad-Haven", nabij speelvoorzieningen, scholen, openbaar vervoer en wordt omringd door “het Bovenwater”, “de Oostvaardersplassen” en het Markermeer. Het geheel is gelegen op 168 m2 eigen grond.

Kortom: deze luxe eengezinswoning is tot in de puntjes afgewerkt en zo te betrekken. Mis deze kans niet en kom dit prachtige huis zelf ervaren!

"Nu bieden vanaf € 389.500,- k.k.. De gestelde vraagprijs betreft een "bieden vanaf prijs". Biedingen vanaf € 389.500,- k.k. zullen door verkoper in behandeling genomen worden".

Indeling;
Begane grond:
Entree/hal met de garderobe, toiletruimte, meterkast, trapopgang naar de verdieping en toegang naar de woonkamer. Een heerlijke tuingerichte woonkamer van 5.47 m. breed met grote raampartijen (veel lichtinval), een praktische trapkast en een deur naar de tuin. Aan de voorzijde bevindt zich de luxe inbouwkeuken, welke is voorzien van de volgende apparatuur; koelkast, vriezer, vaatwasser, combi-oven (2x) en een 4-pits inductiekookplaat met een geïntegreerde afzuigkap. Ruime opstelmogelijkheden voor een grote eettafel, waar u heerlijk met vrienden en familie kunt dineren. De begane grond is voorzien van glad gestuukte wanden en plafonds en een fraaie laminaatvloer.

1e verdieping:
Overloop met toegang tot 3 ruime slaapkamers (ca. 15 / 10 / 10 m2). Moderne badkamer met een inloopdouche, 2e toilet, wastafelmeubel met dubbele kraan, vloerverwarming en een raam voor de natuurlijke ventilatie. De verdieping is voorzien van glad gestuukte wanden en plafonds en een fraaie laminaatvloer.

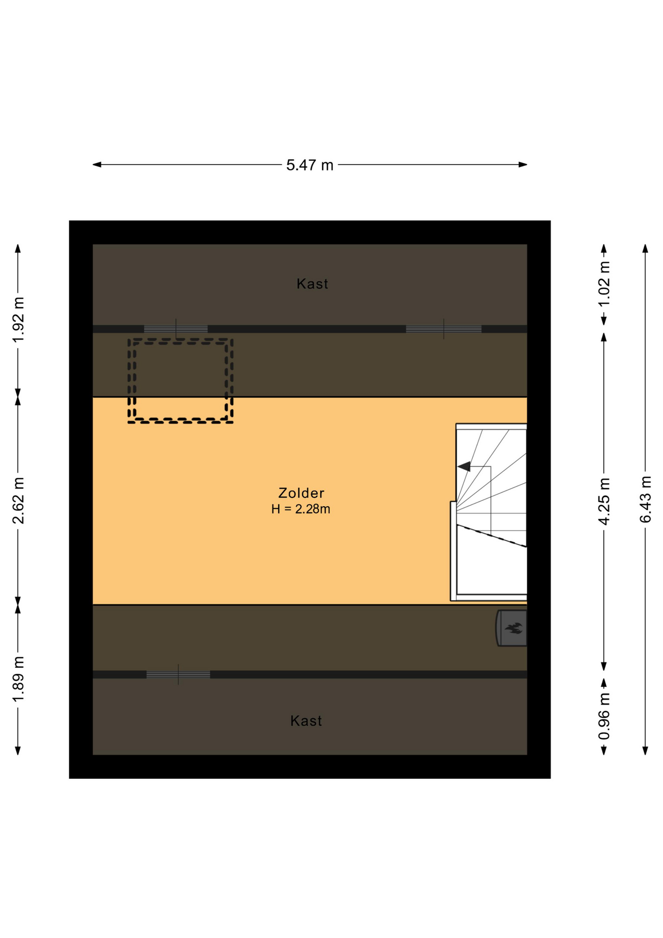
2e verdieping:
Via vaste trap te bereiken verdieping van ca. 23 m2 met de opstelplaats van de cv-installatie (2024), de mechanische ventilatie box, de wasmachine aansluiting en veel praktische bergruimte. Mogelijkheden voor het realiseren van een ruime 4e slaapkamer met dakraam. De verdieping is voorzien van glad gestuukte wanden en plafonds en een fraaie laminaatvloer.

Tuin:
De verzorgd aangelegde tuin is gelegen op het westen en voorzien van bestrating, deels vernieuwde schuttingen en een praktische achterom.

* Compleet gerenoveerde en instapklare eengezinswoning aan de Schermer 22 te Lelystad!
* Voorzien van 4 ruime slaapkamers, een luxe inbouwkeuken en een moderne badkamer
* Binnen en buitenschilderwerk is uitgevoerd in 2025
* Aangebouwde stenen berging aan de voorzijde van de woning (ca. 6 m2)
* Parkeergelegenheid op eigen terrein en voldoende parkeergelegenheid in de directe omgeving
* Gelegen nabij natuurgebied “De Oostvaardersplassen” en recreatieplas “Het Bovenwater”
* Woonoppervlak: 115 m2
* Kaveloppervlak: 168 m2 eigen grond
* Bouwjaar: 1982
* Energielabel: B

Aanvaarding in overleg.

Lees de volledige omschrijving

Contact en info

Heb je vragen over deze woning of wil je een bezichtiging inplannen? Neem dan gerust contact met ons op, we helpen je graag verder!

Plan een bezichtiging

Kenmerken

Overdracht
Status
Verkocht
Koopprijs
€ 389.500,-
Aanvaarding
In overleg
Woonoppervlakte
115 m2
Inhoud
437 m3
Bouwvorm
Soort object
Woonhuis
Type woning
Tussenwoning
Soort
Eengezinswoning
Bouwjaar
1982
Bouwvorm
Bestaande bouw
Ligging
Aan rustige weg, In woonwijk
Overdracht
Woonoppervlakte
115 m2
Perceel oppervlakte
168 m2
Inhoud
437 m3
Aantal kamers
5
Aantal slaapkamers
4
Energie
Energieklasse
B
Isolatievormen
Dubbelglas, HR glas
Verwarming
CV ketel, Vloerverwarming gedeeltelijk
Bouwjaar
2024
Buitenruimte
Tuin
Achtertuin, Voortuin
Hoofdtuin
Achtertuin
Hoofdtuin oppervlakte
69 m2
Positie
West
Achterom
Ja
Kwaliteit
Verzorgd
Bergruimte
Soort
Aangebouwd steen
Voorzieningen
Voorzien van elektra
Parkeergelegenheid
Garage
Geen garage
Voorzieningen
Voorzien van elektra
Parkeer faciliteiten
Openbaar parkeren, Op eigen terrein
Dak
Soort dak
Zadeldak
Kwaliteit dak
Pannen
Voorzieningen
Voorzieningen
Mechanische ventilatie, TV kabel, Dakraam, Glasvezel kabel
Overig
Permanente bewoning
Ja
Onderhoud binnen
Goed
Onderhoud buiten
Goed
Huidig gebruik
Woonruimte
Huidige bestemming
Woonruimte
Bekijk alle specificaties

Interesse of meer weten?

Leuk dat je geïnteresseerd bent in deze woning! Als erkende makelaar staan wij voor je klaar om al je vragen te beantwoorden en om een bezichtiging in te plannen.

bureauhanze

    Met het versturen van dit formulier ga je akkoord met onze gebruiksvoorwaarden en privacybeleid.