Rijnland 443

8245 EH Lelystad
€ 425.000,- k.k.
3kamers
133 m2wonen
247 m2perceel

Algemene informatie

Aanvaarding
In overleg
Type woning
Hoekwoning
Energieklasse
A

Omschrijving

Welkom in Rijnland 443 – een zeldzaam ruime en instapklare hoekwoning in de populaire Landstrekenwijk van Lelystad. Deze sfeervolle woning combineert comfort, duurzaamheid en een zee aan ruimte – ideaal voor gezinnen of mensen die gewoon nét dat beetje meer willen.

Met een woonoppervlakte van 131 m², een dakterras van 25 m² en een royaal perceel van 247 m² biedt dit huis een perfecte balans tussen binnen- en buitenleven. De woning is gebouwd in 2001 en heeft energielabel A, wat zorgt voor een aangenaam binnenklimaat én lagere energiekosten. De eigen oprit biedt het gemak van parkeren op eigen terrein.

Ben jij dus op zoek naar een ruim, comfortabel en energiezuinig (t)huis op een fijne locatie? Plan dan een bezichtiging en ervaar zelf de sfeer van Rijnland 443 - een droom van een huis!

"Nu bieden vanaf € 425.000,- k.k.. De gestelde vraagprijs betreft een 'bieden vanaf prijs'. Biedingen vanaf € 425.000,-k.k. zullen door de verkoper in behandeling genomen worden".

Een leefruimte om verliefd op te worden – licht, open en multifunctioneel:
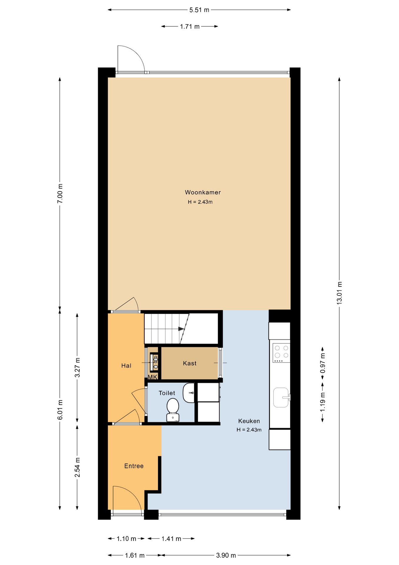
De woonkamer is ruim en licht dankzij de grote raampartijen en biedt een sfeervolle plek om samen te komen. De royale ruimte van 39 m² geeft voldoende ruimte voor een grote zithoek, een speelhoek en bijvoorbeeld een leeshoek.

De open keuken, centraal in de woning gelegen, is praktisch ingedeeld en voorzien van moderne apparatuur, waaronder een elektrische kookplaat, afzuigkap, oven, vaatwasser en een koel/vriescombinatie. Een ruime bergkast zorgt voor extra opslag. Aan de voorzijde van de woning bevindt zich de separate eetkamer met een raampartij over de volledige breedte én hoogte. Dit creëert een prachtige lichtinval.

Slim ingedeelde eerste verdieping:
Op de eerste verdieping bevinden zich twee slaapkamers, waaronder een royale master bedroom over de volledige breedte van de woning met een inloopkast met 4 meter aan kastruimte. De badkamer, vernieuwd in 2021, is modern en stijlvol en voorzien van een inloopdouche, een badkamermeubel met dubbele waskommen en inbouwkranen, een zwevend toilet en een raam voor natuurlijke ventilatie en daglicht. Een separate wasruimte biedt plek voor de wasmachine, droger en de mechanische ventilatie-unit.

Tweede verdieping met dakterras:
De tweede verdieping biedt een open zolderruimte met mogelijkheden voor een extra slaapkamer. Het ruime dakterras van circa 25 m² is een unieke toevoeging en biedt een prachtig vrij uitzicht over het groen en de wijk Warande. Indien gewenst, is het bouwkundig mogelijk om hier een extra slaapkamer te realiseren.

Fraai aangelegde tuin op het oosten:
De fraai aangelegde achtertuin ligt op het oosten en beschikt over twee terrassen, waardoor je op elk moment van de dag van de zon kunt genieten. Een vrijstaande houten berging en een achterom maken de tuin compleet.

Ligging:
Rijnland 443 ligt in de kindvriendelijke en gewilde Landstrekenwijk, een groene en ruim opgezette buurt met een fijne mix van jonge gezinnen en ervaren bewoners. De wijk biedt volop voorzieningen zoals scholen, winkels en sportfaciliteiten. Het stadshart van Lelystad is goed bereikbaar met auto, fiets en openbaar vervoer, net als het treinstation en de uitvalswegen naar de rest van Nederland.

Bijzonderheden:
* Ruime en lichte hoekwoning met een woonoppervlakte van 131 m²
* Royale woonkamer van 39 m² met veel lichtinval
* Moderne keuken met inbouwapparatuur en extra berging
* Luxe badkamer (2021) met inloopdouche en dubbele wastafel
* Twee ruime slaapkamers, met mogelijkheid voor een derde en vierde op zolder
* Groot dakterras van circa 25 m² met vrij uitzicht over het groen, de Warande en Larserdreef
* Fraai aangelegde tuin met twee terrassen en een berging
* Energielabel A en voorzien van 9 zonnepanelen (2024: 3.310 kWh)
* Gelegen in een rustige, kindvriendelijke wijk nabij voorzieningen
* Aangesloten op stadsverwarming, dus geen gas nodig
* Bouwjaar: 2001

Aanvaarding in overleg.

Lees de volledige omschrijving

Contact en info

Heb je vragen over deze woning of wil je een bezichtiging inplannen? Neem dan gerust contact met ons op, we helpen je graag verder!

Plan een bezichtiging

Kenmerken

Overdracht
Status
Verkocht
Koopprijs
€ 425.000,-
Aanvaarding
In overleg
Woonoppervlakte
133 m2
Inhoud
487 m3
Bouwvorm
Soort object
Woonhuis
Type woning
Hoekwoning
Soort
Eengezinswoning
Bouwjaar
2001
Bouwvorm
Bestaande bouw
Ligging
In woonwijk, Vrij uitzicht
Overdracht
Woonoppervlakte
133 m2
Perceel oppervlakte
247 m2
Inhoud
487 m3
Aantal kamers
4
Aantal slaapkamers
3
Energie
Energieklasse
A
Isolatievormen
Dakisolatie, Muurisolatie, Vloerisolatie, Dubbelglas, HR glas
Verwarming
Stadsverwarming
Buitenruimte
Tuin
Achtertuin, Voortuin, Zijtuin
Hoofdtuin
Achtertuin
Hoofdtuin oppervlakte
90 m2
Positie
Oost
Achterom
Ja
Kwaliteit
Verzorgd
Bergruimte
Soort
Vrijstaand hout
Voorzieningen
Voorzien van elektra
Parkeergelegenheid
Garage
Geen garage
Voorzieningen
Voorzien van elektra
Parkeer faciliteiten
Openbaar parkeren, Op eigen terrein
Voorzieningen
Voorzieningen
Mechanische ventilatie, TV kabel, Glasvezel kabel, Zonnepanelen
Overig
Permanente bewoning
Ja
Onderhoud binnen
Goed
Onderhoud buiten
Goed
Huidig gebruik
Woonruimte
Huidige bestemming
Woonruimte
Bekijk alle specificaties

Interesse of meer weten?

Leuk dat je geïnteresseerd bent in deze woning! Als erkende makelaar staan wij voor je klaar om al je vragen te beantwoorden en om een bezichtiging in te plannen.

bureauhanze

    Met het versturen van dit formulier ga je akkoord met onze gebruiksvoorwaarden en privacybeleid.