Reygersbeek 325
Algemene informatie
Omschrijving
Nieuwbouw herenhuis aan de kust van Lelystad – direct beschikbaar zonder lange wachttijd!
Wil je graag nieuwbouw kopen, maar niet jaren wachten? Dit is je kans! Deze prachtige woning wordt momenteel gebouwd en wordt medio juni 2026 casco opgeleverd (zonder badkamer en keuken). Zo kun je de afwerking volledig naar eigen smaak en stijl realiseren.
Op een schitterende locatie aan de kust van Lelystad, gelegen herenhuis met 3 ruime slaapkamers (mogelijkheden voor 4), met parkeergelegenheid voor 3 auto's, waarvan 1 parkeerplaats in de nabij gelegen parkeergarage.
Deze woning biedt met een woonoppervlakte van 170 m2 een heerlijk ruim (t)huis voor uw gezin of familie! Daarnaast is de woning uitstekend geïsoleerd (energielabel A+++) en voorzien van een warmtepomp met warmwaterboiler, vloerverwarming en zonnepanelen!
De woning is gelegen op loopafstand van de bruisende boulevard met diverse horecagelegenheden zoals De Rede van Batavia, By Lemonakis en Restaurant De Cantine. Met wonen in Bataviahaven ervaar je thuis het ultieme vakantiegevoel! Niet alleen kun je van alles beleven op de boulevard, ook is er dicht bij de haven veel te ontdekken. Wandel maar eens door het Gondelpark of geniet van de natuur in de Oostvaardersplassen, Natuurpark Lelystad of het Belevenissenbos. Koopjesjagen doe je natuurlijk in Batavia Stad Fashion Outlet met meer dan 150 winkels van internationale modemerken! Langs de kilometerslange kustlijn van Lelystad beoefen je watersport, maar ook zijn de tennisbaan, golfbaan en voetbalvelden dichtbij.
Ondertussen is alledaags gemak goed bereikbaar, scholen en supermarkten liggen op fietsafstand. Werk je buiten Lelystad? Via de A6 rijd je in 3 kwartier naar Utrecht of Amsterdam. Ga je liever met het openbaar vervoer? Het NS station van Lelystad is slechts 12 minuten fietsen.
Kortom: een schitterend en uitstekend geïsoleerde herenhuis aan de kust van Lelystad, met alle denkbare voorzieningen vlak om de hoek!
"Nu bieden vanaf € 515.000,- k.k.. De gestelde vraagprijs betreft een "bieden vanaf prijs". Biedingen vanaf € 515.000,- k.k. zullen door verkoper in behandeling genomen worden".
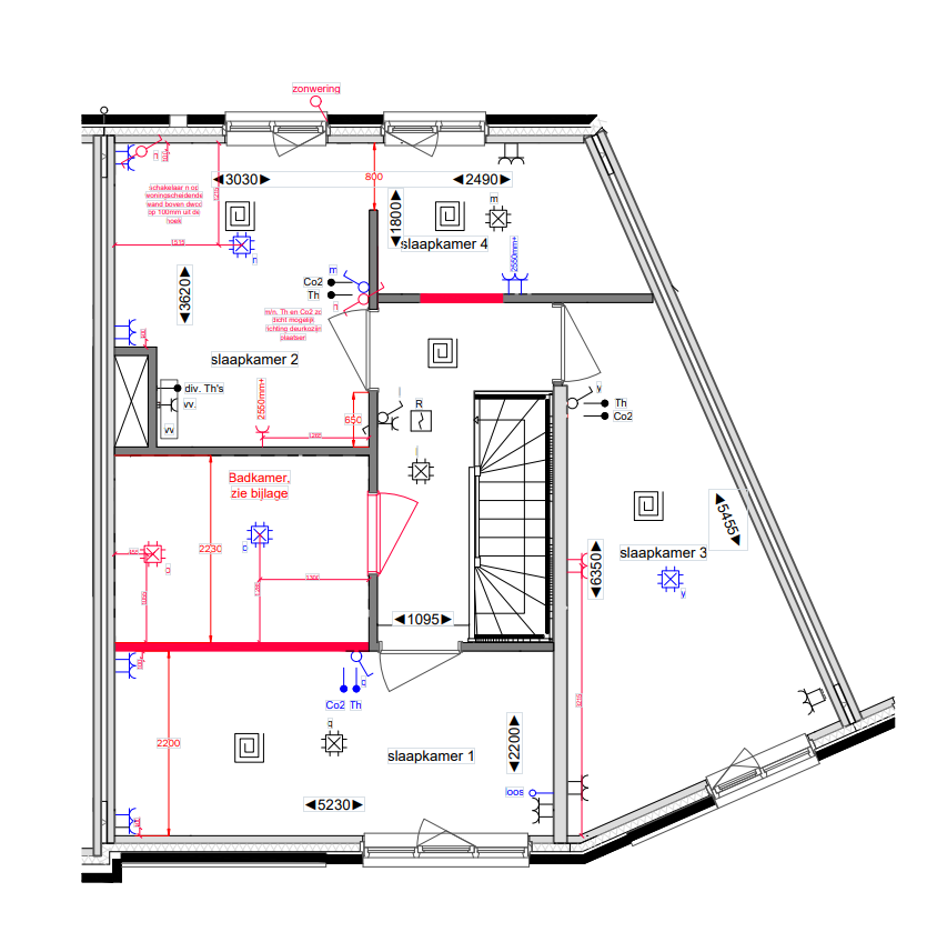
Indeling;
Begane grond;
Entree/ hal met de meterkast, garderobe, toiletruimte, berging/technische ruimte, woonkamer (22 m²) aan straatzijde met trap naar de eerste verdieping.
1e verdieping:
Hier bevindt zich de ruime woonkeuken met aansluitingen voor een kookeiland. De woonkamer is voorzien van openslaande deuren naar het zonnige terras van circa 15 m². Via een vaste trap bereik je de tweede verdieping.
2e verdieping:
3 slaapkamers en een badkamer met aansluitingen voor een bad, toilet, douche en dubbele wastafel.
Bijzonderheden:
* Op een schitterende locatie aan de kust van Lelystad, gelegen herenhuis;
* De woning is voorzien van 3 ruime slaapkamers (mogelijkheden voor 4);
* De woning wordt momenteel gebouwd, medio Juni 2026 is de oplevering;
* Gasloos, goed geïsoleerd en onderhoudsarm dankzij de kunststof kozijnen;
* Warmtepomp met warmwaterboiler (300 liter);
* De woning is voorzien van kozijnen zonder bovenlicht;
* 3 eigen parkeerplaatsen, waarvan 1 in de nabij gelegen parkeergarage;
* Gelegen in Bataviahaven, met alle denkbare voorzieningen vlak om de hoek!
* Woonoppervlak: 170 m²;
* Terras op verdiepingshoogte van 15 m²;
* Bouwjaar: 2026;
* Energielabel: A+++;
* Projectnotaris FKJ te Lelystad.
Contact en info
Heb je vragen over deze woning of wil je een bezichtiging inplannen? Neem dan gerust contact met ons op, we helpen je graag verder!
Plan een bezichtigingKenmerken
Interesse of meer weten?
Leuk dat je geïnteresseerd bent in deze woning! Als erkende makelaar staan wij voor je klaar om al je vragen te beantwoorden en om een bezichtiging in te plannen.