Plantage 26

8212 VB Lelystad
€ 325.000,- k.k.
4kamers
130 m2wonen
175 m2perceel

Algemene informatie

Aanvaarding
In overleg
Type woning
Tussenwoning
Energieklasse
C

Omschrijving

Op een heerlijke plek in de "Plantage" gelegen eengezinswoning met 4 ruime slaapkamers, een keurige inbouwkeuken, nette badkamer, gedeeltelijk kunststof kozijnen en een tuinligging op het oosten. De woning heeft een vrije ligging aan de voor en achterzijde en is gelegen nabij een buurtsupermarkt, scholen, openbaar vervoer en het geheel is gelegen op 175 m2 eigen grond.

Bent u op zoek naar ruimte en woont u graag in een groene en kindvriendelijke omgeving? Maak dan snel een afspraak voor deze gewilde woning!

"Nu bieden vanaf € 325.000,- k.k.. De gestelde vraagprijs betreft een "bieden vanaf prijs". Biedingen vanaf € 325.000,- k.k. zullen door verkoper in behandeling genomen worden".

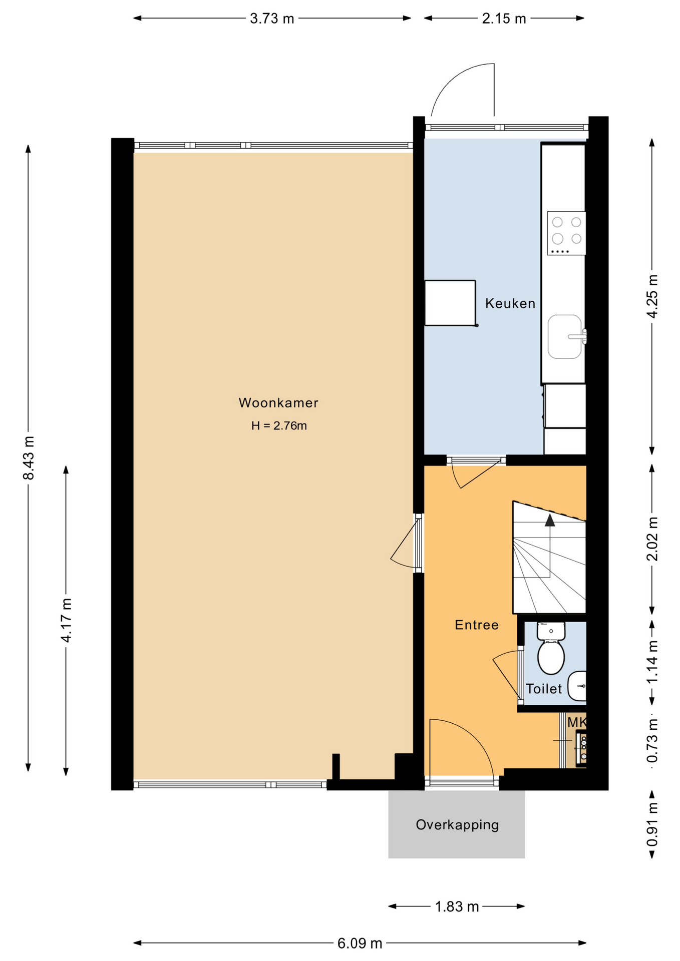
Indeling;
Begane grond:
Entree/hal met de meterkast (2007), toiletruimte, trapopgang naar de verdieping en toegang tot de keuken en woonkamer. Een heerlijke ruime woonkamer van ca. 31 m2 met kunststof kozijnen, een fraaie laminaatvloer (2022) en vrij uitzicht aan zowel de voorzijde als achterzijde van de woning. Ruime opstelmogelijkheden voor een grote eettafel waar u heerlijk met vrienden en familie kunt dineren. Aan de achterzijde bevindt zich de keurige inbouwkeuken in rechte opstelling, welke voorzien is van de volgende apparatuur; koelkast, oven, vaatwasser, 4-pits kookplaat en een afzuigkap.

1e Verdieping:
Overloop met een bergkast en toegang tot 3 ruime slaapkamers, waarvan 1 slaapkamer voorzien is van een vaste kast. Geheel betegelde badkamer met een douche, 2e toilet, wastafel, vloerverwarming en een raam voor de natuurlijke ventilatie. De verdieping is voorzien van een laminaatvloer (2022).

2e Verdieping:
Via vaste trap te bereiken verdieping. Overloop met de opstelplaats van de cv-ketel (2011), de wasmachine aansluiting en veel praktische bergruimte. Ruime 4e slaapkamer met een kunststof dakkapel (2002) en een dakraam.

Tuin:
De tuin is gelegen op het oosten en voorzien van een vlonderterras, bestrating, borders met beplanting, zonwering, houten schuttingen en een praktische achterom.

* Op een heerlijke plek in de "Plantage" gelegen eengezinswoning met 4 ruime slaapkamers
* De woning is voorzien van een keurige inbouwkeuken en een nette badkamer
* Gedeeltelijk voorzien van kunststof kozijnen op de begane grond (2020) en kunststof gevelbekleding (2005)
* Kunststof dakkapel aanwezig op de 2e verdieping (2002)
* Gehele binnen schilderwerk uitgevoerd in 2022 en het buiten schilderwerk is uitgevoerd in 2024
* De dakgoot aan de voorzijde van de woning is opnieuw betimmerd met houtwerk
* Vrij gelegen achtertuin met een ligging op het oosten
* De woning is aan de voorzijde voorzien van een vrijstaande houten berging
* Voldoende parkeergelegenheid in de directe omgeving
* Gelegen nabij een buurtsupermarkt, scholen en openbaar vervoer
* Woonoppervlak: 130 m2
* Kaveloppervlak: 175 m2 eigen grond
* Bouwjaar: 1974
* Energielabel: C

Aanvaarding in overleg

Lees de volledige omschrijving

Contact en info

Heb je vragen over deze woning of wil je een bezichtiging inplannen? Neem dan gerust contact met ons op, we helpen je graag verder!

Plan een bezichtiging

Kenmerken

Overdracht
Status
Verkocht
Koopprijs
€ 325.000,-
Aanvaarding
In overleg
Woonoppervlakte
130 m2
Inhoud
454 m3
Bouwvorm
Soort object
Woonhuis
Type woning
Tussenwoning
Soort
Eengezinswoning
Bouwjaar
1974
Bouwvorm
Bestaande bouw
Ligging
Aan rustige weg, In woonwijk, Vrij uitzicht
Overdracht
Woonoppervlakte
130 m2
Perceel oppervlakte
175 m2
Inhoud
454 m3
Aantal kamers
5
Aantal slaapkamers
4
Energie
Energieklasse
C
Isolatievormen
Dubbelglas
Verwarming
CV ketel
Bouwjaar
2011
Buitenruimte
Tuin
Achtertuin, Voortuin
Hoofdtuin
Achtertuin
Hoofdtuin oppervlakte
69 m2
Positie
Oost
Achterom
Ja
Kwaliteit
Normaal
Bergruimte
Soort
Vrijstaand hout
Voorzieningen
Voorzien van elektra
Parkeergelegenheid
Garage
Geen garage
Voorzieningen
Voorzien van elektra
Parkeer faciliteiten
Openbaar parkeren
Dak
Soort dak
Zadeldak
Kwaliteit dak
Pannen
Voorzieningen
Voorzieningen
TV kabel, Buitenzonwering, Dakraam, Glasvezel kabel
Overig
Permanente bewoning
Ja
Onderhoud binnen
Goed
Onderhoud buiten
Goed
Huidig gebruik
Woonruimte
Huidige bestemming
Woonruimte
Bekijk alle specificaties

Interesse of meer weten?

Leuk dat je geïnteresseerd bent in deze woning! Als erkende makelaar staan wij voor je klaar om al je vragen te beantwoorden en om een bezichtiging in te plannen.

bureauhanze

    Met het versturen van dit formulier ga je akkoord met onze gebruiksvoorwaarden en privacybeleid.