Penningkruidstraat 47

8245 JG Lelystad
€ 489.500,- k.k.
3kamers
134 m2wonen
161 m2perceel

Algemene informatie

Aanvaarding
In overleg
Type woning
Tussenwoning
Energieklasse
A

Omschrijving

Op een schitterende plek in de populaire en kindvriendelijke woonwijk “Warande”, gelegen instapklare eengezinswoning met 3 ruime slaapkamers (mogelijkheden voor 4/5), een luxe inbouwkeuken, een 2.40 meter uitgebouwde woonkamer, een moderne badkamer en parkeergelegenheid op eigen terrein. Deze woning is gebouwd in 2016, gerenoveerd en gemoderniseerd vanaf 2022 - heden, gesitueerd op een perceel van 161 m2 en biedt met een woonoppervlakte van 134 m2 een heerlijk ruim (t)huis voor uw gezin of familie! Daarnaast is de woning uitstekend geïsoleerd (energielabel A) en voorzien van houten kozijnen met HR++ beglazing en vloerverwarming op de begane grond. De woning straalt een heerlijke eigentijdse sfeer uit, waarbij hoogwaardige afwerkingen zorgen voor een luxe uitstraling. Het interieur is tot in de puntjes verzorgd, waardoor je je meteen thuis zult voelen.

De woning is gelegen in de nieuwbouwwijk “Warande”, in een kinderrijke en kindvriendelijke buurt met veel speelgelegenheid. Nabije ligging van een grote supermarkt, gezondheidscentrum, basisschool, uitvalswegen en de Oostvaardersplassen.

Kortom: deze schitterende instapklare eengezinswoning is klaar om te betrekken. Mis deze kans niet en kom dit prachtige huis zelf ervaren!

"Nu bieden vanaf € 489.500,- k.k.. De gestelde vraagprijs betreft een "bieden vanaf prijs". Biedingen vanaf € 489.500,- k.k. zullen door verkoper in behandeling genomen worden".

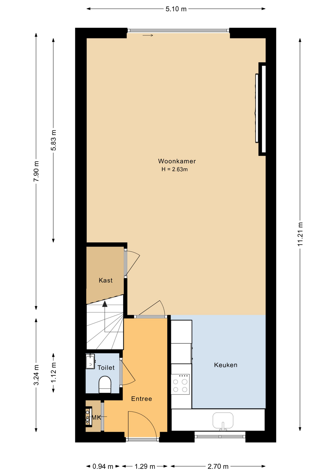
Indeling;
Begane grond:
Entree/hal met de meterkast, garderobe, toiletruimte, trapopgang naar de verdieping en toegang naar de woonkamer. Een heerlijke tuingerichte en 2.40 meter uitgebouwde woonkamer met grote raampartijen, een praktische trapkast, een fraaie cinema wall met sfeerhaard en middels een schuifpui toegang naar de tuin. Aan de voorzijde bevindt zich de luxe inbouwkeuken (2023) in hoekopstelling, welke voorzien is van de volgende apparatuur; koelkast, vaatwasser, oven, 4-pits inductiekookplaat en een afzuigkap. Ruime opstelmogelijkheden voor een grote eettafel, waar u heerlijk met vrienden en familie kunt dineren. De begane grond is voorzien van strakke wandafwerking en een fraaie PVC-vloer (2023) in visgraatmotief met vloerverwarming.

1e verdieping:
Overloop met toegang tot 3 ruime slaapkamers (ca. 15 / 10 / 7 m2). Moderne badkamer met een (inloop)douche, 2e toilet, wastafelmeubel en een raam voor de natuurlijke ventilatie. De verdieping is voorzien van strakke wandafwerking en een fraaie laminaatvloer (2023).

2e Verdieping:
Middels een vaste trap bereikt u de ruime zolder (ca. 32 m2) met een dakraam, de wasmachine/droger aansluiting en de opstelplaats van de mechanische ventilatie box. Ideale mogelijkheid voor het realiseren van 1 of 2 extra (slaap)kamers. De verdieping is voorzien van een laminaatvloer.

Voortuin:
De voortuin is volledig bestraat en biedt parkeergelegenheid voor uw auto op eigen terrein.

Achtertuin:
De verzorgd aangelegde achtertuin is gelegen op het noordoosten en voorzien van een groot terras met bestrating, kunstgras en een vrijstaande houten berging. De tuin is onderhoudsarm aangelegd, wordt omheind middels hout/beton schuttingen en is tevens te bereiken middels een praktische achterom.

* Op een schitterende plek in de populaire en kindvriendelijke woonwijk “Warande”, gelegen instapklare eengezinswoning
* De woning is voorzien van een 2.40 meter uitgebouwde woonkamer, een luxe inbouwkeuken (2023) en een moderne badkamer
* Momenteel zijn er 3 ruime slaapkamers aanwezig, echter zijn er mogelijkheden voor het realiseren van 4/5 (slaap)kamers
* De woning is op de begane grond is voorzien van vloerverwarming
* Verzorgd aangelegde tuin met een ligging op het noordoosten en voorzien van bestrating, kunstgras en een vrijstaande houten berging
* Parkeergelegenheid op eigen terrein en voldoende parkeergelegenheid in de directe omgeving
* Gelegen in nieuwbouwwijk "Warande"
* De woning is gelegen nabij een grote supermarkt, basisschool, uitvalswegen en de Oostvaardersplassen
* Er is veel natuur in de omgeving en het strandje 't Oppertje ligt op fietsafstand
* Aangesloten op het stadsverwarmingsnet – toekomstbestendig en gasloos!
* Woonoppervlak: 134 m2
* Kaveloppervlak: 161 m2
* Bouwjaar: 2016
* Energielabel: A

Aanvaarding in overleg.

Lees de volledige omschrijving

Contact en info

Heb je vragen over deze woning of wil je een bezichtiging inplannen? Neem dan gerust contact met ons op, we helpen je graag verder!

Plan een bezichtiging

Kenmerken

Overdracht
Koopprijs
€ 489.500,-
Aanvaarding
In overleg
Woonoppervlakte
134 m2
Inhoud
492 m3
Bouwvorm
Soort object
Woonhuis
Type woning
Tussenwoning
Soort
Eengezinswoning
Bouwjaar
2016
Bouwvorm
Bestaande bouw
Ligging
Aan park, Aan rustige weg, In woonwijk
Overdracht
Woonoppervlakte
134 m2
Perceel oppervlakte
161 m2
Inhoud
492 m3
Aantal kamers
5
Aantal slaapkamers
3
Energie
Energieklasse
A
Isolatievormen
Dakisolatie, Muurisolatie, Vloerisolatie, Dubbelglas, HR glas
Verwarming
Stadsverwarming, Vloerverwarming gedeeltelijk
Buitenruimte
Tuin
Achtertuin, Voortuin
Hoofdtuin
Achtertuin
Hoofdtuin oppervlakte
51 m2
Positie
Noordoost
Achterom
Ja
Kwaliteit
Verzorgd
Bergruimte
Soort
Vrijstaand hout
Voorzieningen
Voorzien van elektra
Parkeergelegenheid
Garage
Geen garage
Voorzieningen
Voorzien van elektra
Parkeer faciliteiten
Openbaar parkeren, Op eigen terrein
Dak
Soort dak
Zadeldak
Kwaliteit dak
Pannen
Voorzieningen
Voorzieningen
Mechanische ventilatie, TV kabel, Schuifpui, Dakraam, Glasvezel kabel
Overig
Permanente bewoning
Ja
Onderhoud binnen
Goed
Onderhoud buiten
Goed
Huidig gebruik
Woonruimte
Huidige bestemming
Woonruimte
Bekijk alle specificaties

Interesse of meer weten?

Leuk dat je geïnteresseerd bent in deze woning! Als erkende makelaar staan wij voor je klaar om al je vragen te beantwoorden en om een bezichtiging in te plannen.

bureauhanze

    Met het versturen van dit formulier ga je akkoord met onze gebruiksvoorwaarden en privacybeleid.