Penningkruidstraat 13B

8245 JG Lelystad
€ 525.000,- k.k.
5kamers
136 m2wonen
255 m2perceel

Algemene informatie

Aanvaarding
In overleg
Type woning
Hoekwoning
Energieklasse
A

Omschrijving

Op een schitterende plek in de populaire en kindvriendelijke woonwijk “Warande”, gelegen instapklare hoekwoning met 5 ruime slaapkamers, 2 moderne badkamers, een fraaie inbouwkeuken, aangebouwde serre en parkeergelegenheid voor meerdere auto's op eigen terrein. Deze woning is gebouwd in 2015, gesitueerd op een perceel van 255 m2 eigen grond en biedt met een woonoppervlakte van 136 m2 een heerlijk ruim (t)huis voor uw gezin of familie! Daarnaast is de woning uitstekend geïsoleerd (energielabel A) en voorzien van 3 airco's en 4 zonnepanelen, wat niet alleen bijdraagt aan een duurzame levensstijl, maar ook helpt bij het besparen op energiekosten. De woning straalt een heerlijke eigentijdse sfeer uit, waarbij hoogwaardige afwerkingen zorgen voor een luxe uitstraling. Het interieur is tot in de puntjes verzorgd, waardoor je je meteen thuis zult voelen.

De woning is gelegen in de nieuwbouwwijk “Warande”, in een kinderrijke en kindvriendelijke buurt met veel speelgelegenheid. Nabije ligging van een grote supermarkt, gezondheidscentrum, basisschool, uitvalswegen en de Oostvaardersplassen.

Kortom: deze schitterende instapklare hoekwoning is tot in de puntjes afgewerkt en zo te betrekken. Mis deze kans niet en kom dit prachtige huis zelf ervaren!

"Nu bieden vanaf € 525.000,- k.k.. De gestelde vraagprijs betreft een "bieden vanaf prijs". Biedingen vanaf € 525.000,- k.k. zullen door verkoper in behandeling genomen worden".

Indeling;
Begane grond:
Entree/hal met de toiletruimte, meterkast, garderobe/bergkast, trapopgang naar de verdieping en toegang naar de woonkamer. Een heerlijke tuingerichte woonkamer met grote raampartijen, een airco (2020 | warmte/koelen), praktische bergkast, een op maat gemaakte tv-meubel met veel opbergruimte en middels openslaande deuren toegang naar de aluminium serre met ingebouwde spots en glazen schuifwandensysteem. Hier kunt u heerlijk vertoeven elk gewenst moment van de dag! Aan de voorzijde bevindt zich de fraaie inbouwkeuken in dubbele opstelling, welke voorzien is van de volgende apparatuur; koelkast (2x), vriezer, vaatwasser, combi-oven, Quooker, 4-pits inductiekookplaat en een afzuigkap. Ruime opstelmogelijkheden voor een grote eettafel waar u heerlijk met uw familie kunt dineren. Middels openslaande deuren is de voortuin te bereiken. In 2018 is de woning aan de zijkant uitgebouwd en is hier een ruime slaapkamer (ca 12 m2) en een badkamer met een douche, wastafel en 2e toilet gerealiseerd. De slaapkamer is voorzien van een eigen entree en is hierdoor ook uitermate geschikt als kantoor/praktijk aan huis. De begane grond is voorzien van een laminaatvloer met vloerverwarming.

1e Verdieping:
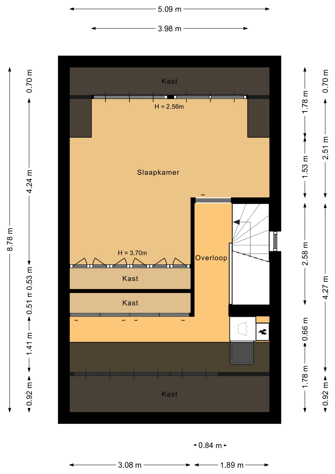
Overloop met een airco (2020 | warmte/koelen) en toegang tot 3 ruime slaapkamers (ca. 13 / 12 / 7 m2), waarbij de slaapkamer aan de voorzijde is voorzien van een Frans balkon. Moderne badkamer met een douche, wastafel met dubbelle kraan, 3e toilet en een raam voor de natuurlijke ventilatie. De verdieping is voorzien van een laminaatvloer met vloerverwarming.

2e Verdieping:
Overloop met de opstelplaats van wasmachine/droger, de mechanische ventilatie box en een op maat gemaakte kastenwand met veel praktische bergruimte. Middels een loftdeur toegang tot de ruime 5e slaapkamer (ca. 19 m2) met een riante kunststof dakkapel (2020), een airco (2020 | warmte/koelen) en eveneens een op maat gemaakte kastenwand met veel praktische bergruimte. De verdieping is voorzien van een laminaatvloer.

Tuin:
De fraai aangelegde tuin is gelegen op het noordoosten en voorzien van een groot terras met bestrating, kunstgras, een vrijstaande houten berging en 2x een praktische achterom. De tuin is onderhoudsarm aangelegd, geeft veel privacy en wordt omheind middels groene hagen, sierhekwerk en hout/beton schuttingen.

* Op een schitterende plek in de populaire en kindvriendelijke woonwijk “Warande”, gelegen instapklare hoekwoning
* De woning is voorzien van 5 ruime slaapkamers, 2 moderne badkamers en een fraaie inbouwkeuken
* In 2018 is de zijkant van de woning uitgebouwd, ideaal voor gelijkvloers wonen of een praktijk aan huis
* De begane grond en eerste verdieping zijn voorzien van een laminaatvloer met vloerverwarming
* Fraai aangelegde tuin met een ligging op het noordoosten, een luxe aangebouwde serre en veel privacy
* De woning is voorzien van 3 airco's (2020) en 4 zonnepanelen (2015)
* Parkeergelegenheid voor meerdere voertuigen op eigen terrein en voldoende parkeergelegenheid in de directe omgeving
* Gelegen in nieuwbouwwijk "Warande"
* De woning is gelegen nabij een grote supermarkt, basisschool, uitvalswegen en de Oostvaardersplassen
* Er is veel natuur in de omgeving en het strandje 't Oppertje ligt op fietsafstand
* Aangesloten op het stadsverwarmingsnet – toekomstbestendig en gasloos!
* Woonoppervlak: 136 m2
* Kaveloppervlak: 255 m2 eigen grond
* Bouwjaar: 2015
* Energielabel: A

Aanvaarding in overleg.

Lees de volledige omschrijving

Contact en info

Heb je vragen over deze woning of wil je een bezichtiging inplannen? Neem dan gerust contact met ons op, we helpen je graag verder!

Plan een bezichtiging

Kenmerken

Overdracht
Status
Verkocht
Koopprijs
€ 525.000,-
Aanvaarding
In overleg
Woonoppervlakte
136 m2
Inhoud
559 m3
Bouwvorm
Soort object
Woonhuis
Type woning
Hoekwoning
Soort
Eengezinswoning
Bouwjaar
2015
Bouwvorm
Bestaande bouw
Ligging
Aan rustige weg, In woonwijk
Overdracht
Woonoppervlakte
136 m2
Perceel oppervlakte
255 m2
Inhoud
559 m3
Aantal kamers
6
Aantal slaapkamers
5
Energie
Energieklasse
A
Isolatievormen
Dakisolatie, Muurisolatie, Vloerisolatie, Dubbelglas, HR glas
Verwarming
Stadsverwarming, Vloerverwarming gedeeltelijk
Buitenruimte
Tuin
Achtertuin, Voortuin, Zijtuin
Hoofdtuin
Achtertuin
Hoofdtuin oppervlakte
96 m2
Positie
Noordoost
Achterom
Ja
Kwaliteit
Fraai aangelegd
Bergruimte
Soort
Vrijstaand hout
Voorzieningen
Voorzien van elektra
Parkeergelegenheid
Garage
Geen garage
Voorzieningen
Voorzien van elektra
Parkeer faciliteiten
Openbaar parkeren, Op eigen terrein
Dak
Soort dak
Zadeldak
Kwaliteit dak
Pannen
Voorzieningen
Voorzieningen
TV kabel, Glasvezel kabel, Zonnepanelen
Overig
Permanente bewoning
Ja
Onderhoud binnen
Goed
Onderhoud buiten
Goed
Huidig gebruik
Woonruimte
Huidige bestemming
Woonruimte
Bekijk alle specificaties

Interesse of meer weten?

Leuk dat je geïnteresseerd bent in deze woning! Als erkende makelaar staan wij voor je klaar om al je vragen te beantwoorden en om een bezichtiging in te plannen.

bureauhanze

    Met het versturen van dit formulier ga je akkoord met onze gebruiksvoorwaarden en privacybeleid.