Oostzeestraat 211

8226 BX Lelystad
€ 365.000,- k.k.
4kamers
106 m2wonen
167 m2perceel

Algemene informatie

Aanvaarding
In overleg
Type woning
Hoekwoning
Energieklasse
A

Omschrijving

Welkom bij de Oostzeestraat 211, waar comfort, ruimte en privacy op een fraaie manier samenkomen. Deze charmante hoekwoning biedt een sfeervolle woonomgeving met een verrassend gevoel van vrijheid en rust. De ligging, direct grenzend aan een uitgestrekt grasveld, zorgt voor een open uitzicht en volledige privacy aan één zijde van de woning – een zeldzaam voordeel in een woonwijk.

Zodra u de woning betreedt, valt direct de ruime en lichte woonkamer op. De raampartijen laten het daglicht rijkelijk binnenstromen en creëren een prettige, open sfeer die perfect is voor zowel ontspannen momenten als het ontvangen van gasten. De moderne keuken is een fijne plek voor iedere kookliefhebber. Deze is ingericht met stijlvolle en hoogwaardige inbouwapparatuur, zodat koken hier niet alleen praktisch maar ook inspirerend aanvoelt.

Op de eerste verdieping bevinden zich drie comfortabele slaapkamers, stuk voor stuk goed bemeten en praktisch ingedeeld. De tweede verdieping biedt nog een extra slaapkamer, ideaal als werkruimte, logeerkamer of bijvoorbeeld een rustige tienerkamer. De badkamer is eigentijds afgewerkt. Met een inloopdouche, dubbele wastafel met modern meubel, vloerverwarming én een tweede toilet is aan alles gedacht voor optimaal comfort.

Een bijzonder element aan deze woning is de aangebouwde serre. Dankzij de fijne lichtinval en het comfortabele binnenklimaat kunt u hier het hele jaar door genieten, of u nu wilt ontspannen met een boek, samen wilt eten of simpelweg even wilt ontsnappen aan de drukte van de dag.

De achtertuin, gelegen op het noorden, biedt een rustige buitenruimte met volop mogelijkheden voor ontspanning, tuinieren of een gezellige barbecue. Aan de voorzijde van de woning beschikt over parkeergelegenheid op eigen terrein, met ruimte voor twee auto's – een groot praktisch voordeel in het dagelijks leven.

De woning is grotendeels voorzien van onderhoudsvriendelijke kunststof kozijnen en beschikt over negen zonnepanelen, wat bijdraagt aan lagere energiekosten en een duurzame woonstijl. Niet voor niets draagt de woning energielabel A.

Tot slot bevindt de woning zich op een bijzonder gunstige locatie. In de directe omgeving vind u diverse voorzieningen zoals supermarkten, basisscholen, sportfaciliteiten en het stadscentrum van Lelystad. Binnen een paar minuten zit u op de uitvalsweg A6. Alles binnen handbereik, terwijl u toch kunt genieten van de rust en ruimte van deze fijne hoeklocatie.

Kortom, een huis dat niet alleen voldoet aan de wensen van vandaag, maar ook klaar is voor de toekomst – met ruimte, comfort en privacy als belangrijkste troeven.

"Nu bieden vanaf € 365.000,- k.k.. De gestelde vraagprijs betreft een "bieden vanaf prijs". Biedingen vanaf € 365.000,- k.k. zullen door verkoper in behandeling genomen worden".

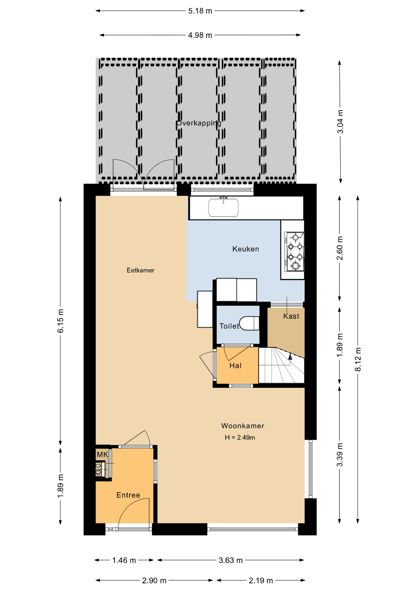
Indeling;

Begane grond:

Entree, hal, ruime en lichte woonkamer (ca. 25 m²), half open moderne keuken voorzien van diverse inbouwapparatuur met openslaande deuren naar de serre (ca. 16 m²), tweede hal, modern toilet.
De begane grond is voorzien van een laminaatvloer.

Eerste verdieping:

Overloop, slaapkamer 1 (ca. 11 m²), slaapkamer 2 (ca. 12 m²), slaapkamer 3 (ca. 8 m²), moderne badkamer voorzien van vloerverwarming, toilet, inloopdouche en dubbele wastafel met meubel.
De eerste verdieping is voorzien van een laminaatvloer.

Tweede verdieping:

Ruime overloop voorzien van dakramen en opbergruimte, opstelling CV, opstelling wassen en drogen, slaapkamer 4 (ca. 12 m²) voorzien van dakraam en opbergruimte.
De tweede verdieping is voorzien van een laminaatvloer.

Tuin:

De voortuin is gelegen op het zuiden. Parkeren doet u eenvoudig op eigen terrein met meerdere auto's.
De achtertuin (9x7 meter) is gelegen op het noorden en is voorzien van een serre (ca. 16 m²), u kunt hier heerlijk genieten van de aangename ochtendzon.
Achterop het perceel staat een vrijstaande stenen berging (ca. 6 m²).

Bijzonderheden:

* Energielabel A, de woning is voorzien van gevel- en vloerisolatie en bovendien HR++ glas;
* De kunststof kozijnen (begane grond en eerste verdieping) zijn geplaatst in 2022;
* De CV-ketel (eigendom) is van 2019, de 9 zonnepanelen (eigendom) zijn in 2021 geïnstalleerd;
* De keuken is geplaatst in 2020, de badkamer en het toilet zijn van 2022;
* De meterkast is in 2024 vernieuwd, voorbereiding om te koken op inductie is aanwezig;
* Bouwjaar woning 1983;
* Woonoppervlakte circa 106 m²
* Perceeloppervlakte 167 m².

Lees de volledige omschrijving

Contact en info

Heb je vragen over deze woning of wil je een bezichtiging inplannen? Neem dan gerust contact met ons op, we helpen je graag verder!

Plan een bezichtiging

Kenmerken

Overdracht
Status
Verkocht
Koopprijs
€ 365.000,-
Aanvaarding
In overleg
Woonoppervlakte
106 m2
Inhoud
376 m3
Bouwvorm
Soort object
Woonhuis
Type woning
Hoekwoning
Soort
Eengezinswoning
Bouwjaar
1983
Bouwvorm
Bestaande bouw
Ligging
In woonwijk
Overdracht
Woonoppervlakte
106 m2
Perceel oppervlakte
167 m2
Inhoud
376 m3
Aantal kamers
5
Aantal slaapkamers
4
Energie
Energieklasse
A
Isolatievormen
Muurisolatie, Vloerisolatie, Dubbelglas, HR glas
Verwarming
CV ketel, Vloerverwarming gedeeltelijk
Bouwjaar
2019
Buitenruimte
Tuin
Achtertuin, Voortuin
Hoofdtuin
Achtertuin
Hoofdtuin oppervlakte
63 m2
Positie
Noord
Achterom
Nee
Kwaliteit
Fraai aangelegd
Bergruimte
Soort
Vrijstaand steen
Parkeergelegenheid
Garage
Geen garage
Parkeer faciliteiten
Openbaar parkeren, Op eigen terrein
Dak
Soort dak
Zadeldak
Kwaliteit dak
Pannen
Voorzieningen
Voorzieningen
Mechanische ventilatie, TV kabel, Dakraam, Glasvezel kabel, Zonnepanelen
Overig
Permanente bewoning
Ja
Onderhoud binnen
Goed
Onderhoud buiten
Goed
Huidig gebruik
Woonruimte
Huidige bestemming
Woonruimte
Bekijk alle specificaties

Interesse of meer weten?

Leuk dat je geïnteresseerd bent in deze woning! Als erkende makelaar staan wij voor je klaar om al je vragen te beantwoorden en om een bezichtiging in te plannen.

bureauhanze

    Met het versturen van dit formulier ga je akkoord met onze gebruiksvoorwaarden en privacybeleid.