Oostzeestraat 200

8226 BJ Lelystad
€ 375.000,- k.k.
3kamers
125 m2wonen
208 m2perceel

Algemene informatie

Aanvaarding
In overleg
Type woning
Hoekwoning
Energieklasse
C

Omschrijving

Op een fijne plek aan de Oostzeestraat gelegen uitgebouwde hoekwoning met 3 ruime slaapkamers (mogelijkheden voor 4), een nette inbouwkeuken, een moderne badkamer, tuinligging op het zuiden en mogelijkheden voor parkeergelegenheid op eigen terrein. Deze woning is gebouwd in 1983, gerenoveerd vanaf 2020 - heden, gesitueerd op een perceel van 208 m2 eigen grond en biedt met een woonoppervlakte van 125 m2 een heerlijk (t)huis voor uw gezin of familie! De woning is gelegen nabij scholen, een buurtwinkelcentrum, park, openbaar vervoer, het stadscentrum en het NS-station.

"Nu bieden vanaf € 375.000,-. De gestelde vraagprijs betreft een "bieden vanaf prijs". Biedingen vanaf € 375.000,- zullen door verkoper in behandeling genomen worden".

Indeling;
Begane grond:
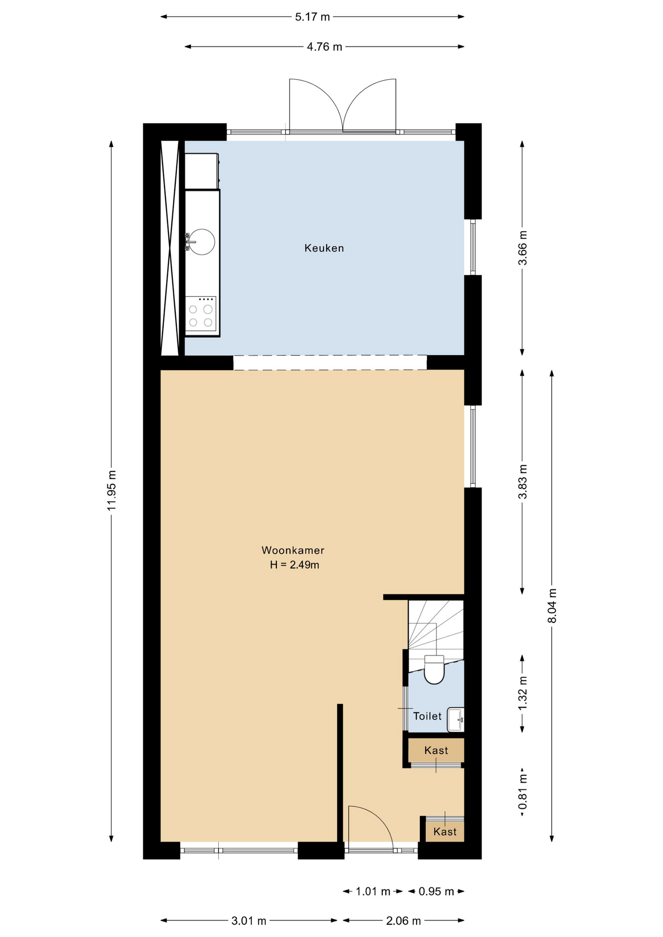
Entree/hal met de meterkast (2025), toiletruimte (2020), trapopgang naar de verdieping en toegang naar de woonkamer. Een heerlijke open woonkamer met een sfeervolle zithoek en ruime opstelmogelijkheden voor een grote eettafel, waar u heerlijk met vrienden en familie kunt dineren. In 2020 is de woning aan de achterzijde met 3,66 meter uitgebouwd, waardoor er een riante woonkeuken is gerealiseerd met een extra zijraam en openslaande deuren naar de tuin. De keuken (2020) is voorzien van de volgende apparatuur; koelkast, combi-oven, 4-pits inductiekookplaat en een afzuigkap. De begane grond is voorzien van een marmeren vloer.

1e Verdieping:
Overloop met toegang tot 2 (voorheen 3) ruime slaapkamers (ca. 19 en 14 m2), waarbij 1 slaapkamer over de volle breedte van de woning. Moderne badkamer (2020) met een douche, 2e toilet, wastafelmeubel, designradiator en een raam voor de natuurlijke ventilatie. De verdieping is grotendeels voorzien van vloerbedekking en de slaapkamer aan de voorzijde is voorzien van een laminaatvloer.

2e Verdieping:
Via vaste trap te bereiken verdieping. Open zolder met 2 dakramen en de opstelplaats van de cv-installatie (huur / 2020), de mechanische ventilatie box (2025), de wasmachine/droger aansluiting en veel praktische bergruimte. Mogelijkheden voor het realiseren van een ruime slaapkamer. De verdieping is voorzien van een laminaatvloer.

Tuin:
De verzorgd aangelegde tuin is gelegen op het zuiden en is voorzien van bestrating, een overkapping (2020), hout/beton schuttingen, een vrijstaande stenen berging en een praktische achterom. De tuin is onderhoudsarm aangelegd en geeft veel privacy!

* Op een fijne plek aan de Oostzeestraat gelegen uitgebouwde hoekwoning met 3 ruime slaapkamers
* Mogelijkheden voor het realiseren van 4 ruime slaapkamers
* De woning is voorzien van een nette inbouwkeuken (2020) en een moderne badkamer (2020)
* De woning is aan de achterzijde met 3,66 meter uitgebouwd en deze uitbouw is voorzien van kunststof kozijnen
* De woning is gerenoveerd van 2020 - heden
* Verzorgd aangelegde tuin met een ligging op het zuiden, een vrijstaande stenen berging en veel privacy!
* De voortuin is omheind middels hout/beton schuttingen (2023)
* Mogelijkheden voor parkeergelegenheid op eigen terrein en voldoende parkeergelegenheid in de directe omgeving
* Gelegen nabij scholen, een buurtwinkelcentrum, park, openbaar vervoer, het stadscentrum en het NS-station.
* Woonoppervlak: 125 m2
* Kaveloppervlak: 208 m2
* Bouwjaar: 1983
* Energielabel: C

Aanvaarding in overleg.

Lees de volledige omschrijving

Contact en info

Heb je vragen over deze woning of wil je een bezichtiging inplannen? Neem dan gerust contact met ons op, we helpen je graag verder!

Plan een bezichtiging

Kenmerken

Overdracht
Status
Verkocht
Koopprijs
€ 375.000,-
Aanvaarding
In overleg
Woonoppervlakte
125 m2
Inhoud
449 m3
Bouwvorm
Soort object
Woonhuis
Type woning
Hoekwoning
Soort
Eengezinswoning
Bouwjaar
1983
Bouwvorm
Bestaande bouw
Ligging
Aan rustige weg, In woonwijk
Overdracht
Woonoppervlakte
125 m2
Perceel oppervlakte
208 m2
Inhoud
449 m3
Aantal kamers
4
Aantal slaapkamers
3
Energie
Energieklasse
C
Isolatievormen
Dakisolatie, Vloerisolatie, Dubbelglas
Verwarming
CV ketel
Bouwjaar
2020
Buitenruimte
Tuin
Achtertuin, Voortuin, Zijtuin
Hoofdtuin
Achtertuin
Hoofdtuin oppervlakte
52 m2
Positie
Zuid
Achterom
Ja
Kwaliteit
Verzorgd
Bergruimte
Soort
Vrijstaand steen
Voorzieningen
Voorzien van elektra
Parkeergelegenheid
Garage
Geen garage
Voorzieningen
Voorzien van elektra
Parkeer faciliteiten
Openbaar parkeren, Op eigen terrein
Dak
Soort dak
Zadeldak
Kwaliteit dak
Pannen
Voorzieningen
Voorzieningen
Mechanische ventilatie, TV kabel, Dakraam, Glasvezel kabel
Overig
Permanente bewoning
Ja
Onderhoud binnen
Goed
Onderhoud buiten
Goed
Huidig gebruik
Woonruimte
Huidige bestemming
Woonruimte
Bekijk alle specificaties

Interesse of meer weten?

Leuk dat je geïnteresseerd bent in deze woning! Als erkende makelaar staan wij voor je klaar om al je vragen te beantwoorden en om een bezichtiging in te plannen.

bureauhanze

    Met het versturen van dit formulier ga je akkoord met onze gebruiksvoorwaarden en privacybeleid.