Nijenrode 11

8226 TH Lelystad
€ 835.000,- k.k.
4kamers
190 m2wonen
729 m2perceel

Algemene informatie

Aanvaarding
In overleg
Type woning
Vrijstaande woning
Energieklasse
A+++

Omschrijving

Welkom bij deze prachtige en indrukwekkende vrijstaande woning (type: semi-bungalow) aan de Nijenrode 11 in Lelystad! Dit moderne en duurzame huis straalt luxe en comfort uit, waarbij er door de huidige eigenaren duidelijk kosten noch moeite zijn gespaard om het tot een werkelijk droomhuis te maken.

Bij binnenkomst wordt direct duidelijk dat deze woning tot in de puntjes verzorgd is. De ruime indeling en het hoge afwerkingsniveau vallen meteen op. De woning is uitstekend geïsoleerd, met het prestigieuze energielabel A+++, en is volledig toekomstbestendig. De woning is voorzien van een warmtepomp boiler, hardhouten kozijnen met HR++ zonwerende beglazing, een veelzijdig domoticasysteem en 5 airco's met wifi en verwarmingsfuncties. En alsof dat nog niet genoeg is, beschikt de woning over maar liefst 54 zonnepanelen met thuisaccu, waardoor de woning volledig zelfvoorzienend is en 0 op de meter behaalt! Dat betekent maximaal wooncomfort met minimale energiekosten.

De woning is gebouwd in 2003, compleet gerenoveerd en gemoderniseerd vanaf 2015 - heden en voorzien van een slaapkamer en badkamer op de begane grond en 3 slaapkamers en een 2e badkamer op de verdieping. De woning is hiermee dermate geschikt voor een groot gezin, of voor mensen die gelijkvloers willen wonen en ruimte en comfort kunnen waarderen. Gesitueerd op een riant perceel van 729 m2 eigen grond en een woonoppervlakte van 190 m2 biedt deze woning een heerlijk ruim (t)huis voor uw gezin of familie!

De fraai aangelegde tuin is een waar paradijs voor zonliefhebbers met meerdere zitplekjes, een riante berging met overkapping en een zwembad, waar u heerlijk in kunt ontspannen en de gehele dag kunt genieten van alle luxe die deze tuin te bieden heeft. Daarnaast beschikt de woning over een dubbele oprit met 2 dubbele elektrische poorten, waar u eenvoudig meerdere auto's kunt parkeren.

De woning is gelegen in de populaire en kindvriendelijke woonwijk de “Landerijen”, waarbij alledaags gemak goed bereikbaar is, want alle denkbare voorzieningen zijn op loop-/fietsafstand. Denk hierbij aan scholen, winkels, uitvalswegen, het natuurpark en recreatiegebied "Het Gelderse Hout", met mountainbikeroute en uitgestrekt wandel-/hardloopgebied. Werk je buiten Lelystad? Via de A6 rijd je in 3 kwartier naar Utrecht of Amsterdam. Ga je liever met het openbaar vervoer? Het NS station van Lelystad is slechts 14 minuten fietsen.

Kortom: Nijenrode 11 is een woning die op alle vlakken uitblinkt. Met zijn luxe afwerking, moderne voorzieningen en duurzame karakter is dit een woning waar u direct verliefd op wordt!

"Nu bieden vanaf € 835.000,- k.k.. De gestelde vraagprijs betreft een "bieden vanaf prijs". Biedingen vanaf € 835.000,- k.k. zullen door verkoper in behandeling genomen worden".

Indeling;
Begane grond:
Entree/hal met de meterkast, toiletruimte (2022) en toegang tot diverse vertrekken. Een heerlijke straatgerichte woonkamer met grote raampartijen (met elektrische zonwering), een sfeervolle houtkachel (Hase Bari), praktische bergkast en een airco (warmte/koelen | 2024). Aansluitend vindt u de luxe en moderne woonkeuken (2016), welke voorzien is van de volgende apparatuur van het A-merk AEG en Faber; koelkast, vriezer, vaatwasser (2023), 2 combi-ovens, stoomoven (2021) en een 4-pits inductiekookplaat met een elektrisch omhoogkomende afzuigkap. Vanuit de hal treft u de ruime slaapkamer (ca. 16 m2) met een ingebouwde kastenwand, houten wandpanelen en een airco (warmte/koelen | 2021). Doorloop naar de moderne badkamer (2022) uitgevoerd met een (stoom)douche, 2e toilet, wastafelmeubel, 2 hoge kasten en vloerverwarming. Bijkeuken met een 2e keukenblok, de aansluiting voor de wasmachine/droger en een losse vaatwasser en koel-vriescombinatie (ter overname). Toegang tot de praktische berging (ca. 13 m2) en de aangebouwde aluminium serre (2023) met glazen schuifwanden, elektrisch rolluik (2024), inbouwspots en een sfeervolle pelletkachel (2024). Hier kunt u heerlijk vertoeven op elk gewenst moment van de dag! De begane grond is grotendeels voorzien van een fraaie PVC-vloer (in visgraatmotief), nieuw stucwerk en het plafond is gespoten is 2024.

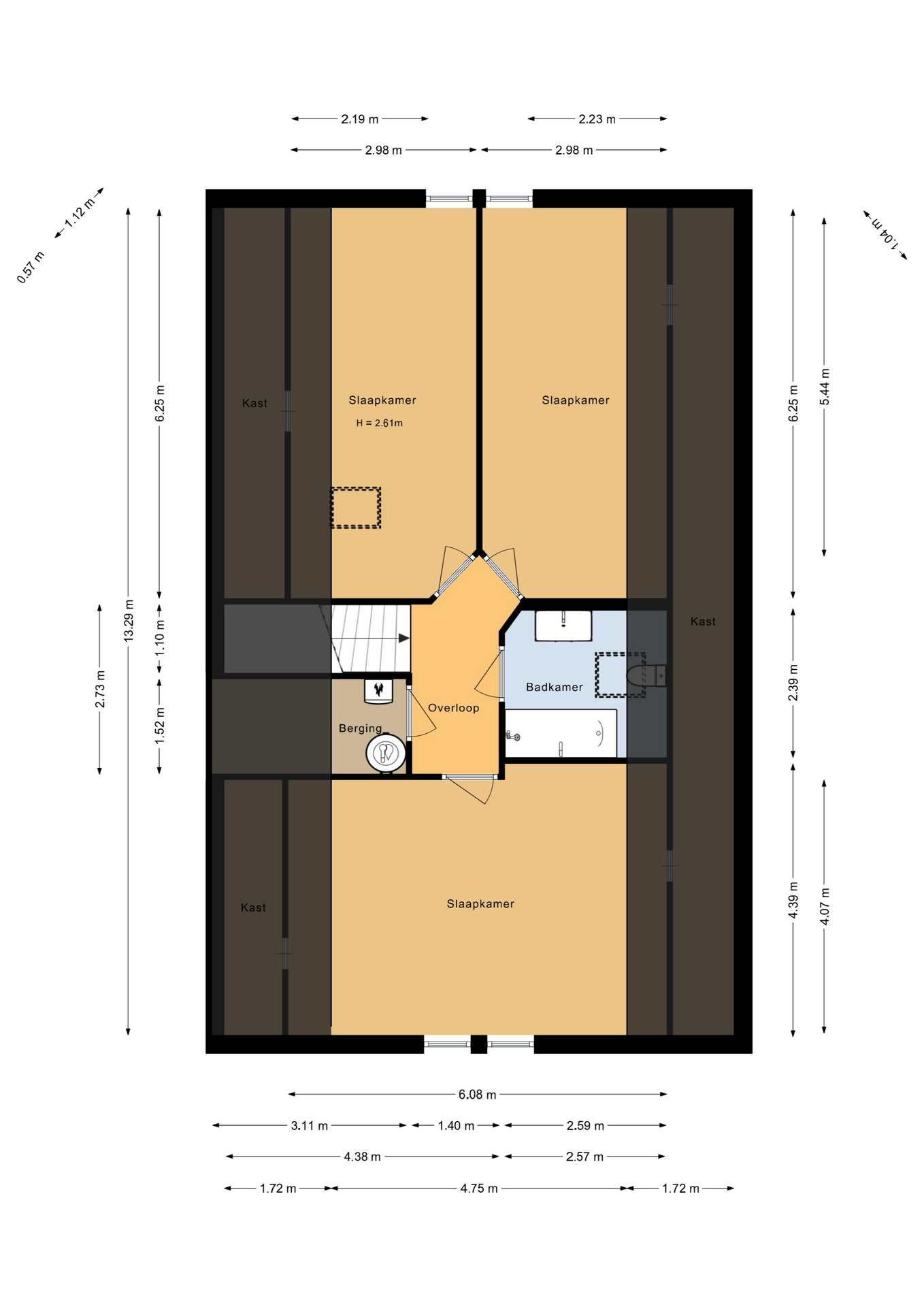
1e Verdieping:
Overloop met toegang tot 3 ruime slaapkamers (ca. 25 / 18 / 18 m2), welke allen zijn uitgevoerd met een airco (warmte/koelen | 2024). Keurige badkamer met een ligbad, 3e toilet, wastafelmeubel en een raam voor de natuurlijke ventilatie. Technische ruimte met de opstelplaats van de warmtepomp boiler (2024), de mechanische ventilatie box (2023), de omvormer (2023) en thuisaccu (2025) voor de 54 zonnepanelen (2015/2024) en veel praktische bergruimte. De verdieping is voorzien van een laminaatvloer.

Vliering:
Praktische bergvliering.

Voortuin:
Middels 2 dubbele elektronische poorten (2021) bereikt u de voortuin, welke is voorzien van een sfeervolle border met bomen en beplanting, een privacy biedende Taxus, een laadpaal en parkeergelegenheid voor meerdere voertuigen op eigen terrein.

Achtertuin:
De fraai aangelegde tuin is grotendeels voorzien van bestrating, borders met bomen en beplanting, een riante met kunststof omklede berging (2020/2024) met overkapping en een riant zwembad. De tuin is onderhoudsarm aangelegd, wordt omheind middels hout/beton schuttingen (2021/2023) en coniferenhagen en geeft veel privacy!

* Prachtige en indrukwekkende vrijstaande woning (type: semi-bungalow) aan de Nijenrode 11 in Lelystad
* De woning is compleet gerenoveerd en gemoderniseerd vanaf 2015 - heden
* De woning is voorzien van een luxe woonkeuken (2016), 4 slaapkamers en 2 badkamers (2003/2022)
* Een heerlijke straatgerichte woonkamer met grote raampartijen (met elektrische zonwering) en een sfeervolle houtkachel (Hase Bari)
* Luxe aangebouwde aluminium serre (2023) met glazen schuifwanden, elektrisch rolluik en een sfeervolle pelletkachel (2024)
* De begane grond is geheel voorzien van nieuwe binnendeuren, nieuw stucwerk en het plafond is gespoten is 2024
* Voorzien van maar liefst 54 zonnepanelen (2015/2024) met thuisaccu (2025), waardoor de woning 0 op de meter behaalt!
* Voorzien van een warmtepomp boiler en hardhouten kozijnen met HR++ zonwerende beglazing
* Voorzien van 5 airco's met wifi en verwarmingsfuncties (2021/2024)
* Elektrische verwarming in de bijkeuken, berging en badkamer op de verdieping (met thermostaat en wifi)
* Er is een veelzijdig domotica systeem aanwezig in de woning (2022)
* Uitgevoerd met 4 camera's (2024) een alarmsysteem (2024) en een slimme deurbel met opname monitor (2024)
* Fraai aangelegde tuin met een riante kunststof berging (2020/2024) met overkapping, een zwembad en veel privacy!
* Middels 2 dubbele elektronische poorten (2021) bereikt u de voortuin met laadpaal en ruime parkeergelegenheid
* Gelegen in de populaire en kindvriendelijke woonwijk de “Landerijen” met alle denkbare op loop-/fietsafstand
* Buitenschilderwerk is professioneel uitgevoerd in 2022
* Woonoppervlak: 190 m2
* Kaveloppervlak: 729 m2 eigen grond
* Bouwjaar: 2003
* Energielabel: A+++

Aanvaarding in overleg.

Lees de volledige omschrijving

Contact en info

Heb je vragen over deze woning of wil je een bezichtiging inplannen? Neem dan gerust contact met ons op, we helpen je graag verder!

Plan een bezichtiging

Kenmerken

Overdracht
Status
Verkocht
Koopprijs
€ 835.000,-
Aanvaarding
In overleg
Woonoppervlakte
190 m2
Inhoud
723 m3
Bouwvorm
Soort object
Woonhuis
Type woning
Vrijstaande woning
Soort
Villa
Bouwjaar
2003
Bouwvorm
Bestaande bouw
Ligging
Aan water, Aan rustige weg, In woonwijk
Overdracht
Woonoppervlakte
190 m2
Perceel oppervlakte
729 m2
Inhoud
723 m3
Aantal kamers
6
Aantal slaapkamers
4
Energie
Energieklasse
A+++
Isolatievormen
Dakisolatie, Muurisolatie, Vloerisolatie, Dubbelglas, HR glas
Verwarming
Vloerverwarming gedeeltelijk, Electrische verwarming, Warmtepomp, Houtkachel, Pelletkachel
Buitenruimte
Tuin
Tuin rondom
Hoofdtuin
Tuin rondom
Achterom
Ja
Kwaliteit
Fraai aangelegd
Bergruimte
Soort
Vrijstaand kunststof
Voorzieningen
Voorzien van elektra
Parkeergelegenheid
Garage
Geen garage
Voorzieningen
Voorzien van elektra
Parkeer faciliteiten
Openbaar parkeren, Op eigen terrein
Dak
Soort dak
Zadeldak
Kwaliteit dak
Pannen
Voorzieningen
Voorzieningen
Mechanische ventilatie, alarminstallatie, Rolluiken, TV kabel, Buitenzonwering, Airconditioning, Rookkanaal, Dakraam, Glasvezel kabel, Zonnepanelen
Overig
Permanente bewoning
Ja
Onderhoud binnen
Uitstekend
Onderhoud buiten
Uitstekend
Huidig gebruik
Woonruimte
Huidige bestemming
Woonruimte
Bekijk alle specificaties

Interesse of meer weten?

Leuk dat je geïnteresseerd bent in deze woning! Als erkende makelaar staan wij voor je klaar om al je vragen te beantwoorden en om een bezichtiging in te plannen.

bureauhanze

    Met het versturen van dit formulier ga je akkoord met onze gebruiksvoorwaarden en privacybeleid.