Neringpassage 316
Algemene informatie
Omschrijving
Schitterend 2-kamer appartement van 50 m2 in het centrum van Lelystad! Dit instapklare appartement is gelegen op de 3e/bovenste verdieping en is voorzien van een ruime slaapkamer, een nette inbouwkeuken, een keurige badkamer en een riant balkon (ca. 6 m2) met ligging op het westen! De huidige eigenaar heeft het appartement compleet gasloos gemaakt, waardoor deze momenteel elektrisch wordt verwarmd en derhalve niet meer is aangesloten op de blokverwarming. Dit scheelt aanzienlijk in de maandlasten! De ligging in het stadscentrum van het appartement is schitterend, nabij alle denkbare voorzieningen zoals winkels, supermarkt, restaurants, het theater en het Centraal Station.
"Nu bieden vanaf € 235.000,- k.k.. De gestelde vraagprijs betreft een "bieden vanaf prijs". Biedingen vanaf € 235.000,- k.k. zullen door verkoper in behandeling genomen worden".
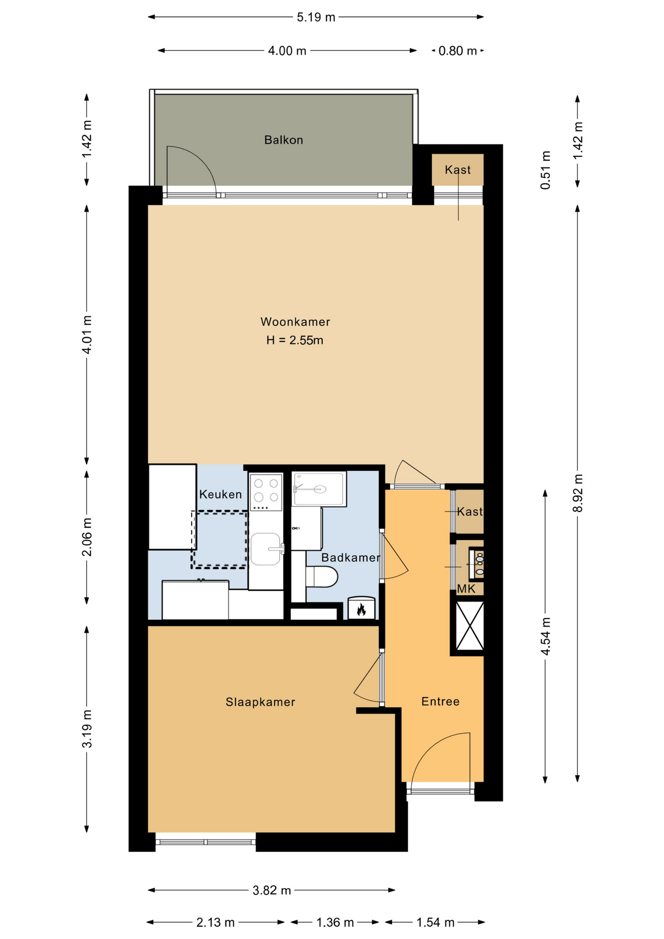
Indeling;
Begane grond:
Centrale, afgesloten entree met bellentableau, postvakken, centrale hal met liftinstallatie en trappenhuis.
1e Verdieping:
(Fietsen) berging.
3e (Woon)verdieping:
Entree/hal met de vernieuwde meterkast, bergkast en toegang tot alle vertrekken. Een heerlijke woonkamer van 5.19 m. breed met grote raampartijen (veel lichtvinval), een praktische bergkast en een deur met toegang tot het ruime balkon (ca. 6 m2) met een zonnescherm en een ligging op het westen (middag + avondzon)! Open keukenruimte (met lichtkoepel) met de nette inbouwkeuken (2017) in dubbele opstelling, welke voorzien is van de volgende apparatuur; combi-oven, 4-pits kookplaat, een afzuigkap, vaatwasser (ter overname) en een Amerikaanse koel/vriescombinatie (ter overname). Ruime opstelmogelijkheden voor een eettafel waar u heerlijk met vrienden en familie kunt dineren. Aan de voorzijde treft u de ruime slaapkamer (ca. 12 m2) met een ingebouwde kastenwand. Keurige badkamer (2014) met een (inloop)douche, wastafelmeubel en een toilet. Het appartement is voorzien van een fraaie laminaatvloer.
* Schitterend 2-kamer appartement van 50 m2 in het centrum van Lelystad!
* Dit instapklare appartement is gelegen op de 3e/bovenste verdieping
* Het appartement is voorzien van een nette inbouwkeuken (2017) en een keurige badkamer (2014)
* Het appartement is compleet gasloos gemaakt en wordt momenteel elektrische verwarmd middels infraroodpanelen
* Het appartement is uitgevoerd met een vernieuwde (Itho Daalderop) mechanische ventilatie box met ingebouwde vochtsensor (2020)
* Riant balkon (ca. 6 m2) met een ligging op het westen (middag + avondzon)!
* Buitenschilderwerk appartementencomplex is uitgevoerd in mei 2025
* Het complex beschikt over een moderne centrale lift (nieuwe lift geplaatst in 2024)
* Mogelijkheid tot het huren van een "eigen" parkeerplaats (op parkeerdek voor ca. € 31,- p/m)
* Eenmalige toetredingskosten voor de VvE bedragen ca. € 175,-
* Gelegen nabij alle denkbare voorzieningen, zoals winkels, supermarkt, restaurants, het theater en het Centraal Station
* Bijdrage VvE: € 167,- per maand
* Woonoppervlak: 50 m2
* Bouwjaar: 1981
* Energielabel: E
Aanvaarding in overleg.
Contact en info
Heb je vragen over deze woning of wil je een bezichtiging inplannen? Neem dan gerust contact met ons op, we helpen je graag verder!
Plan een bezichtigingKenmerken
Interesse of meer weten?
Leuk dat je geïnteresseerd bent in deze woning! Als erkende makelaar staan wij voor je klaar om al je vragen te beantwoorden en om een bezichtiging in te plannen.