Karveel 38 17

8231 BZ Lelystad
€ 335.000,- k.k.
3kamers
113 m2wonen
140 m2perceel

Algemene informatie

Aanvaarding
In overleg
Type woning
Tussenwoning
Energieklasse
C

Omschrijving

In de geliefde en groene wijk Karveel staat deze charmante tussenwoning aan Karveel 38 17 te Lelystad klaar om nieuwe bewoners te verwelkomen. Een plek waar ruimte, comfort en een fijne leefomgeving samenkomen. De buurt staat bekend om haar rustige straten, kindvriendelijke sfeer en de nabijheid van allerlei dagelijkse voorzieningen. Supermarkt, scholen en het prachtige Zuigerplasbos liggen op korte afstand, waardoor zowel gemak als natuur binnen handbereik zijn.

Bij binnenkomst valt direct de lichte en uitnodigende woonkamer op. De ruime opzet en de grote raampartijen zorgen voor een prettige doorzonwoning, waarin de sfeervolle houtkachel een warm middelpunt vormt tijdens de koudere maanden. Vanuit de woonkamer loopt u zo de zonnige achtertuin in, waar u de hele middag en avond kunt genieten van de westerzon. Met een diepte van circa dertien meter biedt deze tuin alle mogelijkheden voor ontspanning, spelen of gezellig samen buiten eten.

Aan de voorzijde bevindt zich de open keuken, die dankzij de praktische indeling perfect aansluit op het woongedeelte. De keuken is uitgerust met diverse inbouwapparaten, waardoor koken hier dagelijks een plezier wordt.

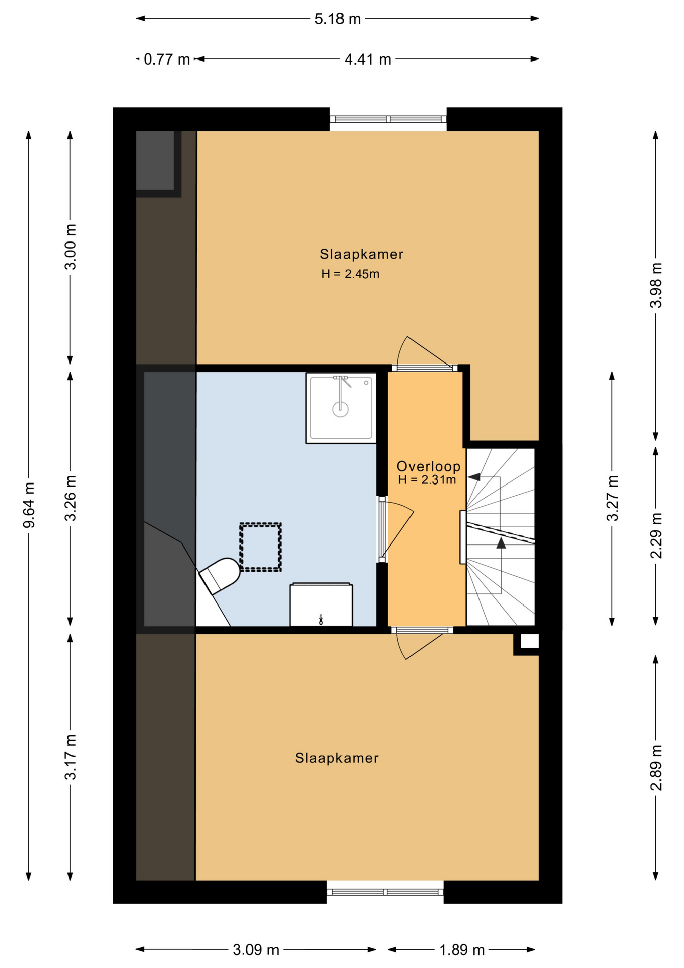
Op de eerste verdieping bevinden zich twee royale slaapkamers, die door hun goede afmetingen uitstekend geschikt zijn als master bedroom, kinderkamer of werkkamer. De badkamer op deze verdieping is compleet ingericht met een wastafelmeubel, toilet, douche en een heerlijk ligbad. De tweede verdieping is bereikbaar via een vaste trap en biedt een derde slaapkamer, mede dankzij de dakkapel een volwaardige en lichte ruimte.

Deze woning combineert een fijne ligging met een prettige indeling en een verrassend ruime leefomgeving, zowel binnen als buiten. Een ideale plek voor wie op zoek is naar comfortabel wonen in een populaire en goed bereikbare wijk.

"Nu bieden vanaf € 335.000,- k.k.. De gestelde vraagprijs betreft een "bieden vanaf prijs". Biedingen vanaf € 335.000,- k.k. zullen door verkoper in behandeling genomen worden".

Indeling;

Begane grond:

Entree, hal, toilet met fonteintje, toegang tot de aangebouwde berging (ca. 6 m²), ruime en lichte woonkamer (ca. 28 m²) met sfeervolle houtkachel, trapkast, deur naar de tuin, ruime L-vormige open keuken voorzien van diverse inbouwapparatuur.
De begane grond is voorzien van een laminaatvloer.

Eerste verdieping:

Overloop, slaapkamer 1 (ca. 16 m²), slaapkamer 2 (ca. 16 m²), badkamer voorzien van wastafel met meubel, ligbad, toilet, douche en dakraam.
De eerste verdieping is deels voorzien van tapijt en deels voorzien van een laminaatvloer.

Tweede verdieping:

Slaapkamer 3 (ca. 6 m²) voorzien van dakkapel, opstelling CV-ketel en wassen/drogen.

Tuin:

De voortuin is gelegen op het oosten en is volledig betegeld. Deze straat is autovrij.
De achtertuin (13x5 meter) is gelegen op het westen, hier kunt u hier genieten van de middag en avondzon.

Bijzonderheden:

* Gelegen in kindvriendelijke wijk Karveel, diverse voorzieningen zoals scholen, winkelcentra en het Zuigerplasbos liggen in de directe nabijheid;
* Bouwjaar 1979;
* Woonoppervlakte circa 113 m²;
* Perceeloppervlakte 140 m².

Lees de volledige omschrijving

Contact en info

Heb je vragen over deze woning of wil je een bezichtiging inplannen? Neem dan gerust contact met ons op, we helpen je graag verder!

Plan een bezichtiging

Kenmerken

Overdracht
Status
Verkocht
Koopprijs
€ 335.000,-
Aanvaarding
In overleg
Woonoppervlakte
113 m2
Inhoud
374 m3
Bouwvorm
Soort object
Woonhuis
Type woning
Tussenwoning
Soort
Eengezinswoning
Bouwjaar
1979
Bouwvorm
Bestaande bouw
Ligging
Aan rustige weg, In woonwijk, In bosrijke omgeving
Overdracht
Woonoppervlakte
113 m2
Perceel oppervlakte
140 m2
Inhoud
374 m3
Aantal kamers
4
Aantal slaapkamers
3
Energie
Energieklasse
C
Isolatievormen
Dubbelglas, HR glas
Verwarming
CV ketel, Houtkachel
Bouwjaar
2017
Buitenruimte
Tuin
Achtertuin, Voortuin
Hoofdtuin
Achtertuin
Hoofdtuin oppervlakte
65 m2
Positie
West
Achterom
Ja
Kwaliteit
Normaal
Bergruimte
Soort
Vrijstaand steen
Parkeergelegenheid
Garage
Geen garage
Parkeer faciliteiten
Openbaar parkeren
Dak
Soort dak
Zadeldak
Kwaliteit dak
Pannen
Voorzieningen
Voorzieningen
TV kabel, Rookkanaal, Dakraam, Glasvezel kabel
Overig
Permanente bewoning
Ja
Onderhoud binnen
Goed
Onderhoud buiten
Goed
Huidig gebruik
Woonruimte
Huidige bestemming
Woonruimte
Bekijk alle specificaties

Interesse of meer weten?

Leuk dat je geïnteresseerd bent in deze woning! Als erkende makelaar staan wij voor je klaar om al je vragen te beantwoorden en om een bezichtiging in te plannen.

bureauhanze

    Met het versturen van dit formulier ga je akkoord met onze gebruiksvoorwaarden en privacybeleid.