Karveel 05 3

8231 AC Lelystad
€ 409.500,- k.k.
5kamers
124 m2wonen
235 m2perceel

Algemene informatie

Aanvaarding
In overleg
Type woning
Twee onder één kapwoning
Energieklasse
A

Omschrijving

Deze leuke 2-onder-1-kapwoning met energielabel A biedt een perfecte combinatie van ruimte, licht en wooncomfort in de geliefde wijk Karveel. De woning is gelegen in een rustige en groene omgeving, waar het prettig wonen is voor zowel jonge gezinnen als senioren. De omgeving kenmerkt zich door ruime opzet, mooie groenstroken en kindvriendelijke straten. Voor dagelijkse boodschappen en voorzieningen is het winkelcentrum Kempenaar dichtbij, terwijl natuurliefhebbers hun hart kunnen ophalen in het naastgelegen Zuigerplasbos, ideaal voor wandelingen, sportactiviteiten of een moment van rust in de natuur.

Bij binnenkomst valt direct de royale en lichte woonkamer op, die een uitnodigende sfeer uitstraalt en dankzij de deur naar de achtertuin naadloos overgaat in buitenruimte. De ruime open keuken biedt een prettige plek om te koken en samen te komen. Op de eerste verdieping bevinden zich drie comfortabele slaapkamers en een verzorgde badkamer met wastafel, douche en toilet. De tweede verdieping beschikt eveneens over twee volwaardige slaapkamers, waardoor de woning uitermate geschikt is voor gezinnen of thuiswerkers die behoefte hebben aan extra ruimte.

De voortuin is gelegen op het noordwesten en biedt toegang tot de aangebouwde stenen garage, waar u gemakkelijk meerdere voertuigen kunt parkeren. De achtertuin, gelegen op het zonnige zuidoosten, is een waar paradijs voor ontspanning en plezier. Met een royale afmeting en een overkapping kunt u hier zowel van de zon genieten als beschut zitten in de schaduw. Het ontbreken van directe overburen zorgt voor een prettig gevoel van privacy en rust.

Deze woning combineert een fijne woonomgeving met een praktische indeling, veel leefruimte en een groene, rustige ligging. Een plek waar wonen prettig, comfortabel en sfeervol samenkomt.

"Nu bieden vanaf € 409.500,- k.k.. De gestelde vraagprijs betreft een "bieden vanaf prijs". Biedingen vanaf € 409.500,- k.k. zullen door verkoper in behandeling genomen worden".

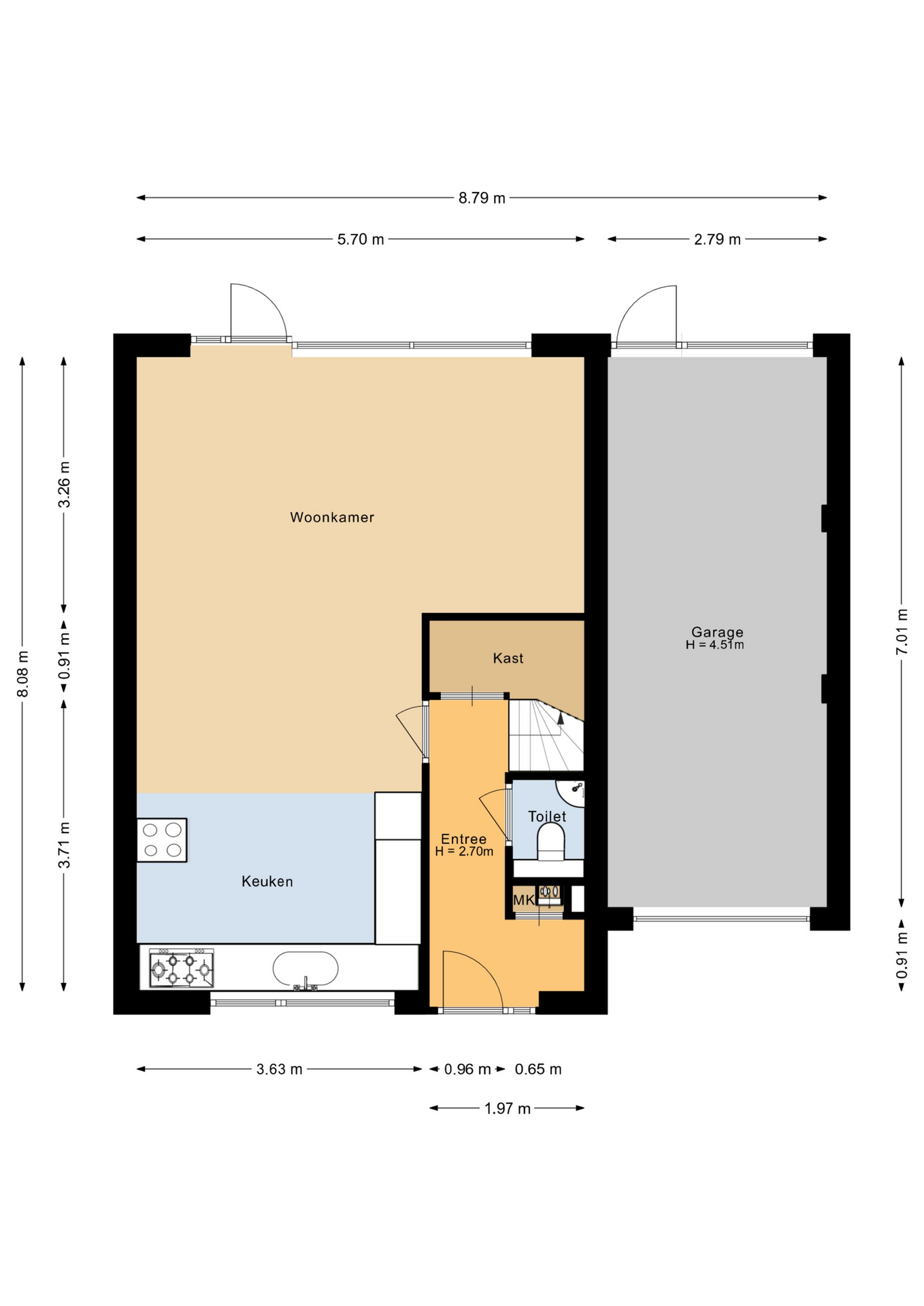
Indeling;

Begane grond:

Entree, hal, toilet met fonteintje, trapkast, ruime en lichte woonkamer (ca. 20 m²) met deur naar de tuin, open keuken voorzien van inbouwapparatuur.
De begane grond is deels voorzien van een parket vloer en deels voorzien van plavuizen.

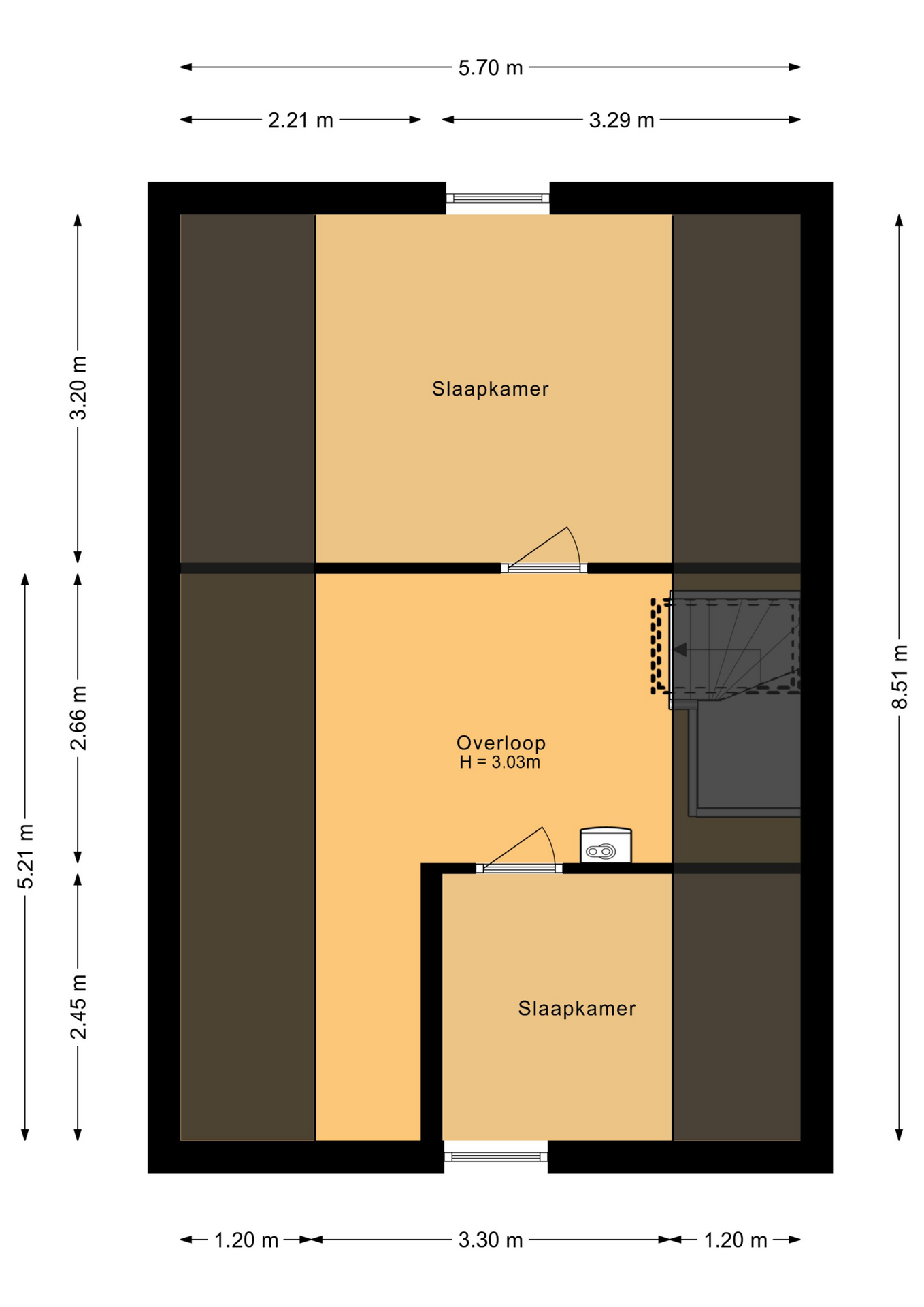
Eerste verdieping:

Overloop met vaste kast en opstelling wasmachine en droger, slaapkamer 1 (ca. 15 m²), slaapkamer 2 (ca. 13 m²), slaapkamer 3 (ca. 7 m²), badkamer voorzien van wastafel met meubel, toilet en douchecabine
De eerste verdieping is deels voorzien van zijl en deels voorzien van tapijt.

Tweede verdieping:

Ruime overloop met dakraam, opstelling CV-ketel, slaapkamer 4 (ca. 18 m²), slaapkamer 5 (ca. 11 m²).
De tweede verdieping is deels voorzien van tapijt en deels voorzien van een laminaatvloer.

Tuin:

De voortuin is gelegen op het noordwesten. Parkeren doet u eenvoudig op eigen terrein met meerdere auto's. Vanuit de voortuin heeft u toegang tot de aangebouwde stenen garage (ca. 20 m²).
De ruime achtertuin (12 x 9 meter) is gelegen op het zonnige zuidoosten. Hier kunt u heerlijk genieten van de aangename zonuurtjes of in de schaduw onder de overkapping. U heeft geen directe overburen, dus er is volop privacy.

Bijzonderheden:

* Energielabel A;
* Parkeren op eigen terrein, plek voor meerdere auto's;
* Aangebouwde stenen garage (ca. 20 m²)
* 16 zonnepanelen, geplaatst in 2023;
* CV-ketel (ATAG) is van 2022 (eigendom);
* Deels houten kozijnen, deels kunststof kozijnen;
* Gelegen nabij winkelcentrum Kempenaar met onder andere een supermarkt, drogisten slijterij;
* Bouwjaar 1976;
* Woonoppervlakte circa 124 m²;
* Perceeloppervlakte 235 m².

Lees de volledige omschrijving

Contact en info

Heb je vragen over deze woning of wil je een bezichtiging inplannen? Neem dan gerust contact met ons op, we helpen je graag verder!

Plan een bezichtiging

Kenmerken

Overdracht
Status
Verkocht
Koopprijs
€ 409.500,-
Aanvaarding
In overleg
Woonoppervlakte
124 m2
Inhoud
541 m3
Bouwvorm
Soort object
Woonhuis
Type woning
Twee onder één kapwoning
Soort
Eengezinswoning
Bouwjaar
1976
Bouwvorm
Bestaande bouw
Ligging
In woonwijk
Overdracht
Woonoppervlakte
124 m2
Perceel oppervlakte
235 m2
Inhoud
541 m3
Aantal kamers
6
Aantal slaapkamers
5
Energie
Energieklasse
A
Isolatievormen
Gedeeltelijk dubbelglas
Verwarming
CV ketel
Bouwjaar
2022
Buitenruimte
Tuin
Achtertuin, Voortuin
Hoofdtuin
Achtertuin
Hoofdtuin oppervlakte
108 m2
Positie
Zuidoost
Achterom
Nee
Kwaliteit
Normaal
Parkeergelegenheid
Garage
Aangebouwd steen
Parkeer faciliteiten
Openbaar parkeren, Op eigen terrein
Parkeeroppervlakte
20 m2
Totaal aantal garages
1
Dak
Soort dak
Zadeldak
Kwaliteit dak
Pannen
Voorzieningen
Voorzieningen
Mechanische ventilatie, TV kabel, Buitenzonwering, Dakraam, Glasvezel kabel, Zonnepanelen
Overig
Permanente bewoning
Ja
Onderhoud binnen
Goed
Onderhoud buiten
Goed
Huidig gebruik
Woonruimte
Huidige bestemming
Woonruimte
Bekijk alle specificaties

Interesse of meer weten?

Leuk dat je geïnteresseerd bent in deze woning! Als erkende makelaar staan wij voor je klaar om al je vragen te beantwoorden en om een bezichtiging in te plannen.

bureauhanze

    Met het versturen van dit formulier ga je akkoord met onze gebruiksvoorwaarden en privacybeleid.