Kamp 15 89

8225 DA Lelystad
€ 300.000,- k.k.
4kamers
109 m2wonen
129 m2perceel

Algemene informatie

Aanvaarding
In overleg
Type woning
Tussenwoning
Energieklasse
B

Omschrijving

In een rustige en kindvriendelijke woonwijk, op korte afstand van het stadscentrum van Lelystad, bevindt zich deze tussenwoning met een verrassend vrije ligging aan de achterzijde. Gelegen aan een autoluw fietspad, zonder directe overburen, biedt deze woning niet alleen een fijne mate van privacy, maar ook een gunstige ligging ten opzichte van winkels, scholen, openbaar vervoer en overige voorzieningen.

De woning beschikt over een eigen oprit aan de voorzijde, wat het parkeren op eigen terrein mogelijk maakt – een praktisch voordeel in een wijk waar ruimte en gemak hand in hand gaan. Aan de achterzijde van de woning bevindt zich een tuin met volop mogelijkheden, grenzend aan een groene strook met een fietspad, waardoor er sprake is van een vrij uitzicht en een gevoel van openheid.

Binnen biedt de woning volop potentieel. Hoewel enige modernisering wenselijk is, vormt dit juist een uitgelezen kans om de woning volledig naar eigen smaak en stijl aan te passen. De begane grond is ingericht met een ruime en lichte woonkamer die door de grote raampartijen aangenaam wordt verlicht. De gesloten keuken bevindt zich aan de voorzijde van de woning en is voorzien van inbouwapparatuur. Deze ruimte biedt volop mogelijkheden voor renovatie of het realiseren van een open keukenconcept.

Op de eerste verdieping bevinden zich drie slaapkamers van verschillende afmetingen, geschikt als hoofdslaapkamer, kinderkamer of werkkamer. Ook de badkamer is hier gesitueerd en beschikt over een douche, wastafel, toilet en natuurlijke ventilatie.

De tweede verdieping is bereikbaar via een vaste trap en herbergt een vierde slaapkamer, voorzien van daglicht en extra bergruimte. Deze verdieping biedt daarnaast ruimte voor het plaatsen van witgoed of het realiseren van een werkplek of hobbyruimte.

Kortom, deze woning biedt de perfecte basis voor wie op zoek is naar een centraal gelegen gezinswoning met een rustige ligging, parkeergelegenheid op eigen terrein en volop mogelijkheden om er een modern en comfortabel thuis van te maken. Een unieke kans voor de handige doe-het-zelver of creatieve koper die een woning naar eigen inzicht en wensen wil transformeren tot een plek waar wonen echt voelt als thuiskomen.

"Nu bieden vanaf € 300.000,- k.k.. De gestelde vraagprijs betreft een "bieden vanaf prijs". Biedingen vanaf € 300.000,- k.k. zullen door verkoper in behandeling genomen worden".

Indeling;

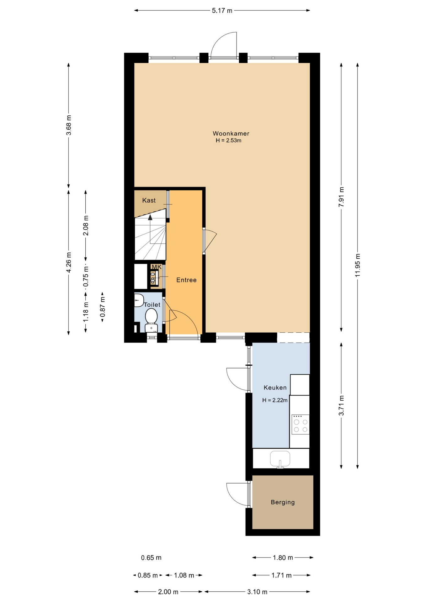
Begane grond:

Entree, hal, toilet met fonteintje, trapkast, zeer ruime en lichte woonkamer (ca. 32 m²) met deur naar de achtertuin, dichte keuken voorzien van inbouwapparatuur, lichtkoepel en deur naar de voortuin.

De begane grond is deels voorzien van een laminaat vloer en deels voorzien van een plavuizen vloer.

Eerste verdieping:

Overloop, slaapkamer 1 (ca. 14 m²), slaapkamer 2 (ca. 9 m²), slaapkamer 3 (ca. 9 m²), badkamer voorzien van wastafel, toilet, douche en natuurlijke ventilatie.

Tweede verdieping:

Ruime overloop met opstelling CV-ketel, slaapkamer 4 (ca. 16 m²) voorzien van bergruimte achter de knieschotten en dakraam.

Tuin:

De voortuin is gelegen op het zuidoosten, uw auto kunt u kwijt op uw eigen parkeerplaats. Voor de gasten zijn er voldoende openbare parkeerplaatsen.
De ruime achtertuin (10x5 meter) is gelegen op het noordwesten en is helemaal vrij gelegen aan de achterzijde. U heeft geen last van directe overburen. U kunt hier genieten in alle rust en privacy.

Bijzonderheden:

* Aangebouwde houten berging (ca. 3 m²);
* Vlakbij het centrum van Lelystad met alle voorzieningen in de directe nabijheid;
* Aan de achterzijde gelegen aan een fietspad, geen directe overburen;
* Parkeren op eigen terrein;
* Extra ruimte creëren? Een uitbouw of dakkapel is hier één van de mogelijkheden;
* Bouwjaar 1983;
* Woonoppervlakte circa 109 m²;
* Perceeloppervlakte 129 m².

Lees de volledige omschrijving

Contact en info

Heb je vragen over deze woning of wil je een bezichtiging inplannen? Neem dan gerust contact met ons op, we helpen je graag verder!

Plan een bezichtiging

Kenmerken

Overdracht
Status
Verkocht
Koopprijs
€ 300.000,-
Aanvaarding
In overleg
Woonoppervlakte
109 m2
Inhoud
396 m3
Bouwvorm
Soort object
Woonhuis
Type woning
Tussenwoning
Soort
Eengezinswoning
Bouwjaar
1983
Bouwvorm
Bestaande bouw
Ligging
In woonwijk
Overdracht
Woonoppervlakte
109 m2
Perceel oppervlakte
129 m2
Inhoud
396 m3
Aantal kamers
5
Aantal slaapkamers
4
Energie
Energieklasse
B
Isolatievormen
Dakisolatie, Muurisolatie, Dubbelglas
Verwarming
CV ketel
Buitenruimte
Tuin
Achtertuin, Voortuin
Hoofdtuin
Achtertuin
Hoofdtuin oppervlakte
50 m2
Positie
Noordwest
Achterom
Ja
Kwaliteit
Normaal
Bergruimte
Soort
Aangebouwd hout
Parkeergelegenheid
Garage
Geen garage
Parkeer faciliteiten
Openbaar parkeren, Op eigen terrein
Dak
Soort dak
Zadeldak
Kwaliteit dak
Pannen
Voorzieningen
Voorzieningen
Mechanische ventilatie, TV kabel, Buitenzonwering, Dakraam, Glasvezel kabel, Natuurlijke ventilatie
Overig
Permanente bewoning
Ja
Onderhoud binnen
Redelijk tot goed
Onderhoud buiten
Redelijk tot goed
Huidig gebruik
Woonruimte
Huidige bestemming
Woonruimte
Bekijk alle specificaties

Interesse of meer weten?

Leuk dat je geïnteresseerd bent in deze woning! Als erkende makelaar staan wij voor je klaar om al je vragen te beantwoorden en om een bezichtiging in te plannen.

bureauhanze

    Met het versturen van dit formulier ga je akkoord met onze gebruiksvoorwaarden en privacybeleid.