Kamp 15 71
Algemene informatie
Omschrijving
Op loopafstand van het stadscentrum van Lelystad, met het bus- en treinstation van Lelystad om de hoek, staat deze goed onderhouden en energiezuinige ééngezinswoning met vrij uitzicht aan de voorzijde!
De woning beschikt over energielabel A en is voorzien van kunststof kozijnen met HR+-beglazing, vloerisolatie en een gloednieuwe cv-ketel uit 2025. Ook zijn de meterkast, schakelaars en stopcontacten recent vernieuwd. Parkeren kan met twee auto's op eigen terrein en de zonnige, op het zuidwesten gelegen achtertuin biedt volop privacy en comfort.
Binnen treft u een ruime, tuingerichte woonkamer met vloerverwarming, een moderne inbouwkeuken uit 2019 met diverse (inbouw)apparatuur, en een nette badkamer (ca. 2015). Op de eerste verdieping bevinden zich drie slaapkamers en op de tweede verdieping een royale vierde slaapkamer met dakkapel aan de achterzijde.
Alle dagelijkse voorzieningen zoals het NS-station, (basis)scholen, het winkelcentrum, een speeltuin, openbaar vervoer en het stadscentrum zijn in de directe omgeving te vinden.
"Nu bieden vanaf € 325.000,- k.k.. De gestelde vraagprijs betreft een "bieden vanaf prijs". Biedingen vanaf € 325.000,- k.k. zullen door verkoper in behandeling genomen worden".
Indeling
Begane grond
Entree/hal met vernieuwde meterkast, toiletruimte voorzien van een vrijhangend toilet en fonteintje, trapopgang naar de verdieping en toegang tot de woonkamer. De tuingerichte woonkamer is licht en ruim dankzij de grote raampartijen en beschikt over een sfeervolle gesloten haard, cine-wall, praktische trapkast en een loopdeur naar de zonnige achtertuin.
Aan de voorzijde bevindt zich de moderne inbouwkeuken (2019) in U-opstelling, uitgerust met diverse apparatuur, waaronder een stoomoven (2022), koelkast (2021), vaatwasser, Quooker kraan (2023), elektrische kookplaat (2024) en een afzuigkap. De begane grond is fraai afgewerkt met een plavuizenvloer in visgraatmotief en comfortabele vloerverwarming.
Eerste verdieping
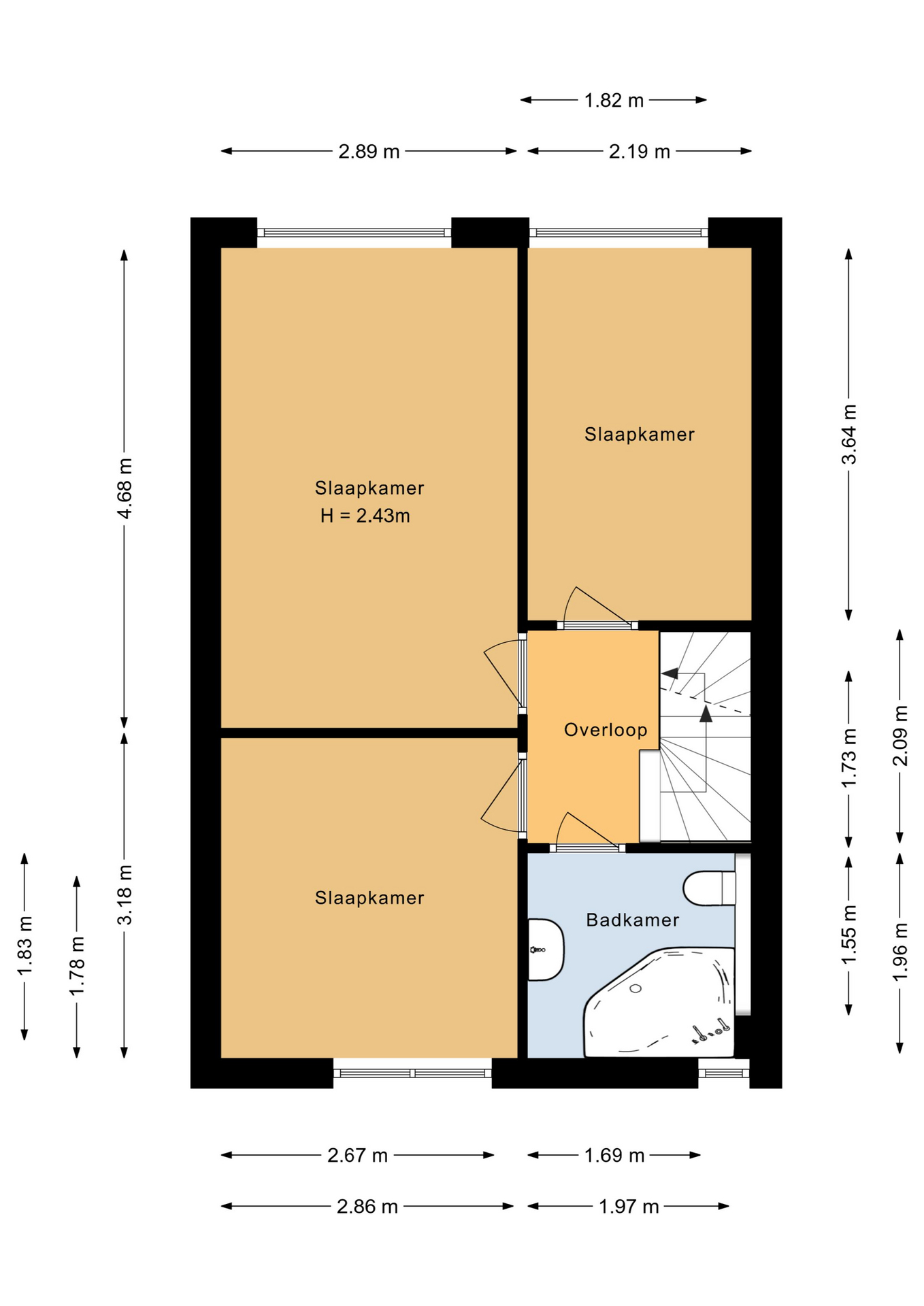
Overloop met toegang tot drie ruime slaapkamers van ca. 14 m², 9 m² en 8 m². De moderne badkamer (ca. 2015) is voorzien van een royaal ligbad, tweede toilet, wastafelmeubel, designradiator en een raam voor natuurlijke ventilatie. De gehele verdieping is afgewerkt met een nette laminaatvloer.
Tweede verdieping
Via een vaste trap bereikbare tweede verdieping met een ruime voorzolder voorzien van extra bergruimte, de opstelplaats van de cv-ketel (2025, eigendom) en aansluitingen voor wasmachine en droger. Aansluitend bevindt zich de royale vierde slaapkamer met dakkapel en extra opbergruimte achter de knieschotten. Ook deze verdieping is afgewerkt met een nette laminaatvloer.
Tuin
De zonnige achtertuin ligt op het zuidwesten en is ruim opgezet met een fijne verdeling tussen groen en terras. Een vijver zorgt voor een sfeervol accent, terwijl het elektrische zonnescherm op warme dagen voor verkoeling zorgt. Achterin staat een vrijstaande stenen berging en via de achterom is de tuin ook praktisch bereikbaar. Een heerlijke plek om tot rust te komen en te genieten van het mooie weer!
Bijzonderheden:
* Fraai gelegen eengezinswoning in de centrale en kindvriendelijke woonwijk ''Kamp'';
* Fijne vrije ligging aan de voorzijde grenzend aan groen en water;
* Dubbele parkeerplaats op eigen terrein;
* Volledig voorzien van kunststof kozijnen met HR+-beglazing;
* Moderne keuken (2019) en badkamer (2015);
* Vernieuwde meterkast en schakelmateriaal;
* Gloednieuwe cv-ketel (2025, eigendom);
* Zonnige achtertuin op het zuidwesten;
* Begane grond voorzien van vloerverwarming;
* * Gelegen nabij alle dagelijkse voorzieningen, zoals scholen, een buurtwinkelcentrum, speeltuin, openbaar vervoer, het stadscentrum en het NS-station.
* Woonoppervlak: 102 m²;
* Kaveloppervlak: 140 m² eigen grond;
* Bouwjaar: 1983;
* Energielabel: A!
Contact en info
Heb je vragen over deze woning of wil je een bezichtiging inplannen? Neem dan gerust contact met ons op, we helpen je graag verder!
Plan een bezichtigingKenmerken
Interesse of meer weten?
Leuk dat je geïnteresseerd bent in deze woning! Als erkende makelaar staan wij voor je klaar om al je vragen te beantwoorden en om een bezichtiging in te plannen.