Houtwal 2

8242 RJ Lelystad
€ 395.000,- k.k.
3kamers
103 m2wonen
149 m2perceel

Algemene informatie

Aanvaarding
In overleg
Type woning
Eindwoning
Energieklasse
A

Omschrijving

Op wellicht een van de mooiste plekjes van park 'Houtribhoogte', met een weids vrij uitzicht over het natuurgebied, gelegen eindwoning met 3 ruime slaapkamers, een fraaie inbouwkeuken, een moderne badkamer, een aangebouwde houten berging en parkeergelegenheid voor 2 auto's op eigen terrein. Deze woning is gebouwd in 2012, gesitueerd op een perceel van 149 m2, heeft een vrij gelegen achtertuin op het zuidoosten en is voorzien van kunststof kozijnen en energielabel A!

De woning is gelegen te midden van natuurgebied 'Houtribhoogte'. Op deze locatie ervaar je thuis het ultieme vakantiegevoel! Daarnaast ligt op 5 minuten fietsafstand de bruisende boulevard met diverse horecagelegenheden zoals het MJ café, De Rede van Batavia, By Lemonakis en Restaurant De Cantine. Niet alleen kun je van alles beleven op de boulevard, ook is er dicht bij de haven veel te ontdekken. Wandel maar eens door het Gondelpark of geniet van de natuur in de Oostvaardersplassen, Natuurpark Lelystad of het Belevenissenbos. Koopjesjagen doe je natuurlijk in Batavia Stad Fashion Outlet met meer dan 150 winkels van internationale modemerken! Langs de kilometerslange kustlijn van Lelystad beoefen je watersport, maar ook zijn de tennisbaan, golfbaan en voetbalvelden dichtbij.

Ondertussen is alledaags gemak goed bereikbaar, scholen en supermarkten liggen op fietsafstand. Werk je buiten Lelystad? Via de A6 rijd je in 3 kwartier naar Utrecht of Amsterdam. Ga je liever met het openbaar vervoer? Het NS station van Lelystad is slechts 17 minuten fietsen.

Kortom: een schitterende en uitstekend geïsoleerde eengezinswoning, nabij de kust van Lelystad, met alle denkbare voorzieningen vlak om de hoek!

"Nu bieden vanaf € 395.000,- k.k.. De gestelde vraagprijs betreft een "bieden vanaf prijs". Biedingen vanaf € 395.000,- k.k. zullen door verkoper in behandeling genomen worden".

Indeling;
Begane grond:
Entree/hal met de meterkast, toiletruimte, trapopgang naar de verdieping en toegang tot de woonkamer. Ruime tuingerichte woonkamer van 5.11 meter breed met grote raampartijen, een sfeervolle speksteen houtkachel (2016), een praktische bergkast en een deur naar de tuin. Vanuit de woonkamer kijkt u door de grote glazen pui aan de achterzijde en het extra zijraam heerlijk vrij weg over het natuurgebied! Aan de voorzijde bevindt zich de fraaie inbouwkeuken met granieten werkblad, welke in 2020 is voorzien van de volgende vernieuwde apparatuur; koelkast, vriezer, vaatwasser, combioven, 4-pits gaskookplaat en een afzuigkap. Ruime opstelmogelijkheden voor een grote eettafel waar u heerlijk met uw familie kunt dineren. De begane grond is voorzien van een fraaie PVC-vloer.

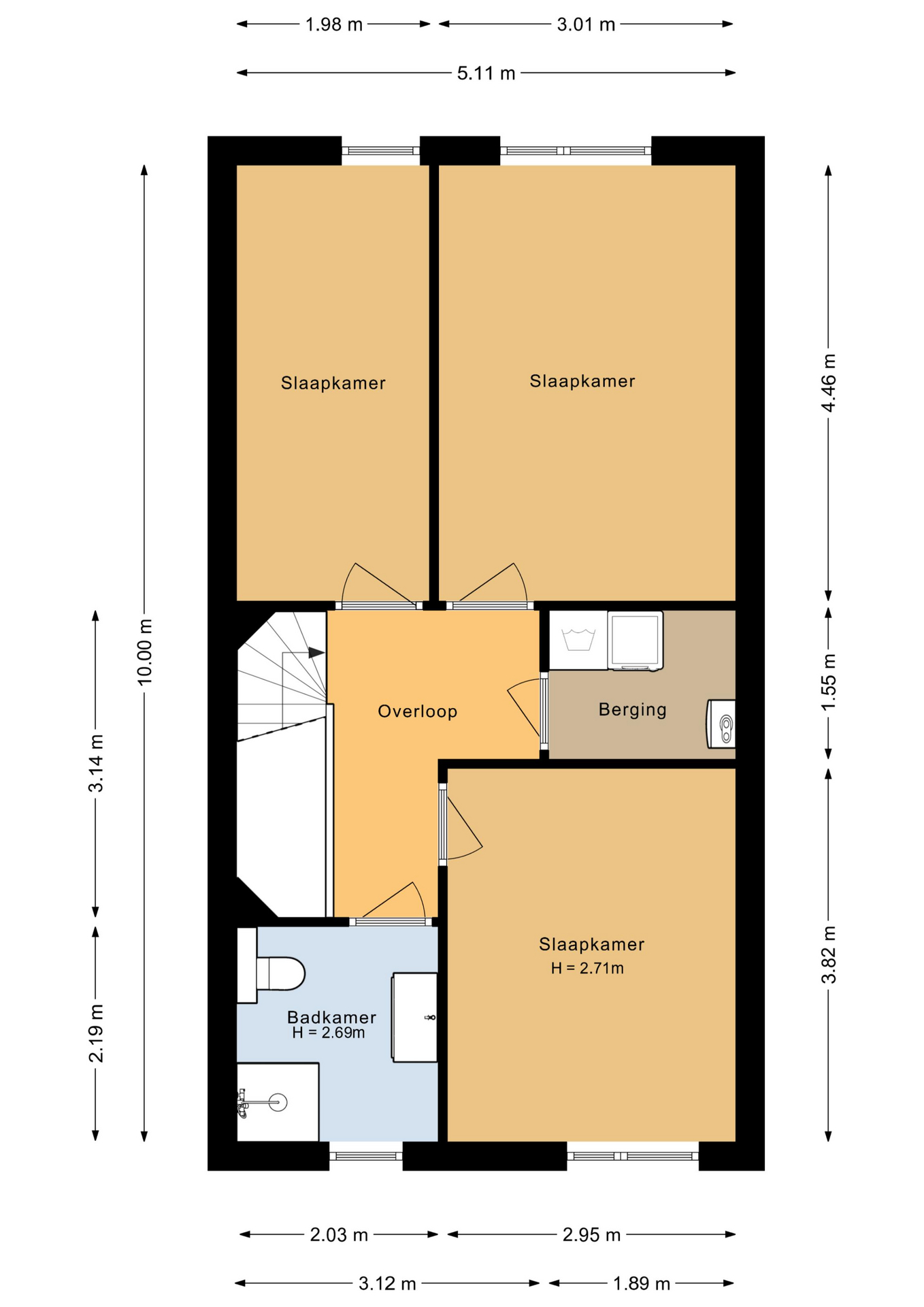
1e Verdieping:
Overloop met toegang tot 3 ruime slaapkamers (ca. 13 / 11 / 9 m2), waarbij de 2 grootste slaapkamers zijn uitgevoerd met een Frans balkon. Moderne badkamer met een inloopdouche, 2e toilet, wastafelmeubel, een radiator en een raam voor de natuurlijke ventilatie. Technische ruimte met de opstelplaats van de cv-ketel, de mechanische ventilatie box, de wasmachine/droger aansluiting en veel praktische bergruimte. De verdieping is voorzien van vloerbedekking.

Tuin:
Vrij gelegen achtertuin met een ligging op het zuidoosten, voorzien van een terras met bestrating, schuttingen, groene hagen en een weids vrij uitzicht over water en groen.

* Op een schitterende locatie op park 'Houtribhoogte', gelegen eengezinswoning
* De woning is voorzien van 3 ruime slaapkamers, een fraaie inbouwkeuken en een moderne badkamer
* Vanuit de woonkamer kijkt u heerlijk vrij weg dankzij de grote glazen pui en het extra zijraam
* De woning is uitgevoerd met kunststof kozijnen met HR++ beglazing en 2 Franse balkons
* Oprit met ruimte voor het parkeren van 2 auto's op eigen terrein
* Aangebouwde houten berging (ca. 6 m2) aanwezig aan de voorzijde van de woning
* Vrij gelegen achtertuin met een ligging op het zuidoosten en een weids uitzicht over water en groen
* Gelegen nabij de kust van Lelystad, met alle denkbare voorzieningen vlak om de hoek!
* De bijdrage aan onderhoudskosten voor het mandelig gebied bedraagt ca. € 73,- per kwartaal
* Woonoppervlak: 103 m2
* Kaveloppervlak: 149 m2
* Bouwjaar: 2012
* Energielabel: A

Aanvaarding in overleg.

Lees de volledige omschrijving

Contact en info

Heb je vragen over deze woning of wil je een bezichtiging inplannen? Neem dan gerust contact met ons op, we helpen je graag verder!

Plan een bezichtiging

Kenmerken

Overdracht
Status
Verkocht
Koopprijs
€ 395.000,-
Aanvaarding
In overleg
Woonoppervlakte
103 m2
Inhoud
404 m3
Bouwvorm
Soort object
Woonhuis
Type woning
Eindwoning
Soort
Eengezinswoning
Bouwjaar
2012
Bouwvorm
Bestaande bouw
Ligging
Aan bosrand, Aan park, Aan rustige weg, In woonwijk, Vrij uitzicht, In bosrijke omgeving
Overdracht
Woonoppervlakte
103 m2
Perceel oppervlakte
149 m2
Inhoud
404 m3
Aantal kamers
4
Aantal slaapkamers
3
Energie
Energieklasse
A
Isolatievormen
Volledig geïsoleerd
Verwarming
CV ketel
Bouwjaar
2012
Buitenruimte
Tuin
Achtertuin, Voortuin
Hoofdtuin
Achtertuin
Hoofdtuin oppervlakte
26 m2
Positie
Zuidoost
Achterom
Ja
Kwaliteit
Verzorgd
Bergruimte
Soort
Aangebouwd hout
Voorzieningen
Voorzien van elektra
Parkeergelegenheid
Garage
Geen garage
Voorzieningen
Voorzien van elektra
Parkeer faciliteiten
Openbaar parkeren, Op eigen terrein
Dak
Soort dak
Plat dak
Kwaliteit dak
Bitumineuze Dakbedekking
Voorzieningen
Voorzieningen
Mechanische ventilatie, TV kabel, Rookkanaal, Glasvezel kabel
Overig
Permanente bewoning
Ja
Onderhoud binnen
Goed
Onderhoud buiten
Goed
Huidig gebruik
Woonruimte
Huidige bestemming
Woonruimte
Bekijk alle specificaties

Interesse of meer weten?

Leuk dat je geïnteresseerd bent in deze woning! Als erkende makelaar staan wij voor je klaar om al je vragen te beantwoorden en om een bezichtiging in te plannen.

bureauhanze

    Met het versturen van dit formulier ga je akkoord met onze gebruiksvoorwaarden en privacybeleid.