Horst 26 67

8225 PA Lelystad
€ 430.000,- k.k.
4kamers
138 m2wonen
227 m2perceel

Algemene informatie

Aanvaarding
In overleg
Type woning
Twee onder één kapwoning
Energieklasse
B

Omschrijving

Heerlijk wonen aan het water in de geliefde en groene woonwijk "Boswijk"!

Welkom bij Horst 26 67 te Lelystad – een verrassend ruime geschakelde twee-onder-een-kapwoning met inpandige garage, eigen oprit en een fantastisch uitzicht over het water. Deze verzorgde woning uit 1994 combineert ruimte, comfort en een rustige ligging met alle voorzieningen binnen handbereik.

Bij aankomst valt direct de ruime oprit op, waar u gemakkelijk op eigen terrein kunt parkeren. De inpandige garage van ca. 17 m² biedt daarnaast volop ruimte voor opslag, een werkplek of natuurlijk uw auto. De woning straalt direct een gevoel van rust en comfort uit – iets wat binnen alleen maar wordt versterkt.

De royale woonkamer van circa 30 m² is heerlijk licht dankzij de grote raampartijen en biedt volop ruimte voor een fijne zithoek én een grote eettafel. Vanuit de woonkamer is er directe toegang tot de aangebouwde serre van circa 13 m², dit is een heerlijke plek om te genieten van het uitzicht op het water, ongeacht het seizoen. Hier ziet u de zon opkomen met een kop koffie, of kijkt u ’s avonds ontspannen uit over het kabbelende water.

De open keuken is in 2013 vernieuwd en modern afgewerkt met diverse inbouwapparatuur. Koken is hier een plezier, met alle voorzieningen binnen handbereik en voldoende werk- en bergruimte.

Op de eerste verdieping bevinden zich drie comfortabele slaapkamers, waarvan één met prachtig uitzicht over het water. De ruime, moderne badkamer is in 2021 vernieuwd en biedt een luxe uitstraling met een inloopdouche, ligbad, toilet en een stijlvol wastafelmeubel – een fijne plek om de dag ontspannen te beginnen of juist af te sluiten.

De tweede verdieping herbergt een vierde slaapkamer, eveneens met uitzicht over het water. Deze verdieping is uitermate geschikt als werk-, hobby- of logeerkamer, en biedt veel privacy.

De woning is gelegen in de rustige en groene wijk Boswijk, waar wonen in het teken staat van ruimte, natuur en comfort. Op loopafstand vindt u een supermarkt, scholen en een speelveld voor kinderen. Binnen enkele minuten bent u in het stadshart van Lelystad, waar u terecht kunt voor winkels, horeca en openbaar vervoer.

Kortom: een instapklare woning met verrassend veel ruimte, een rustige ligging aan het water én met alle gemakken van de stad om de hoek. Een unieke kans voor wie comfortabel wil wonen in een prachtige woonomgeving!

"Nu bieden vanaf € 430.000,- k.k.. De gestelde vraagprijs betreft een "bieden vanaf prijs". Biedingen vanaf € 430.000,- k.k. zullen door de verkoper in behandeling genomen worden".

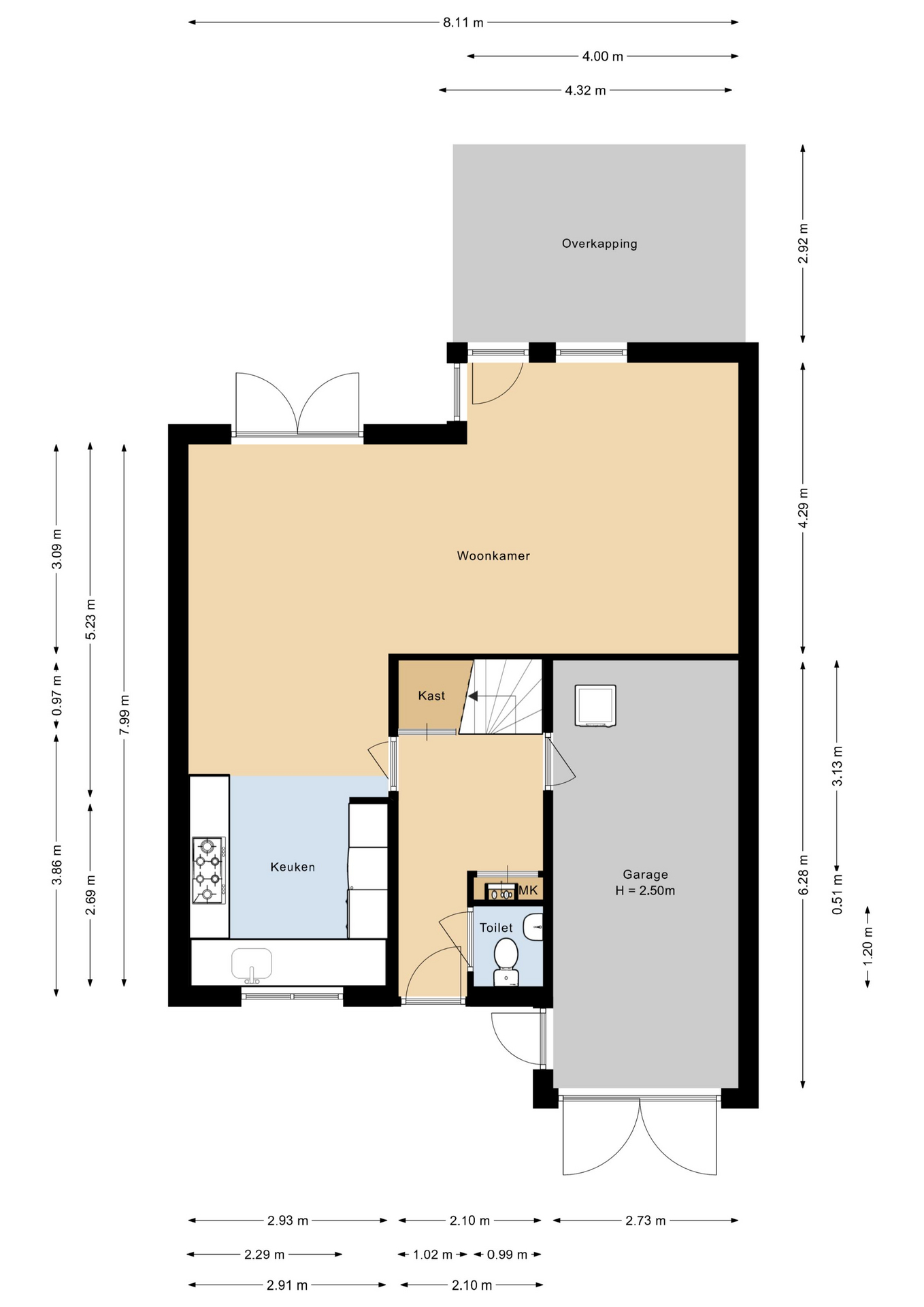
Indeling;

Begane grond:

Entree, hal, toegang tot de inpandige garage (ca. 17 m²) met opstelling wassen en drogen, toilet met fonteintje, vaste kast, moderne open keuken voorzien van diverse inbouwapparatuur, zeer ruime en lichte woonkamer (ca. 30 m²) met openslaande deuren naar de tuin, deur naar de aangebouwde serre (ca. 13 m²).
De begane grond is voorzien van een laminaat vloer.

Eerste verdieping:

Overloop met vaste kast, slaapkamer 1 (ca. 16 m²) met fraai uitzicht over waterpartij, slaapkamer 2 (ca. 11 m²) met deur naar balkon (ca. 8 m², noord gericht), slaapkamer 3 (ca. 10 m²), fraaie moderne badkamer voorzien van douche, ligbad, toilet en wastafel met meubel.
De eerste verdieping is voorzien van een laminaatvloer.

Tweede verdieping:

Overloop, slaapkamer 4 (ca. 16 m²) met vide en fraai uitzicht over waterpartij, opstelling CV-ketel.
De tweede verdieping is voorzien van een laminaatvloer.

Bijzonderheden:

* Energielabel B;
* De woning is volledig geïsoleerd;
* 8 zonnepanelen (2019), in eigendom;
* Inpandige garage (ca. 17 m²);
* Parkeren op eigen terrein;
* Dakkapel met vaste trap is gerealiseerd in 2009;
* De keuken is van 2013, de badkamer is van 2021;
* De ruime en zonnige achtertuin ligt pal op het zuiden en aan vaarwater;
* Bouwjaar 1994;
* Woonoppervlakte circa 138 m²;
* Perceeloppervlakte 227 m².

Lees de volledige omschrijving

Contact en info

Heb je vragen over deze woning of wil je een bezichtiging inplannen? Neem dan gerust contact met ons op, we helpen je graag verder!

Plan een bezichtiging

Kenmerken

Overdracht
Status
Verkocht
Koopprijs
€ 430.000,-
Aanvaarding
In overleg
Woonoppervlakte
138 m2
Inhoud
549 m3
Bouwvorm
Soort object
Woonhuis
Type woning
Twee onder één kapwoning
Soort
Eengezinswoning
Bouwjaar
1994
Bouwvorm
Bestaande bouw
Ligging
Aan water, In woonwijk, Vrij uitzicht, Aan vaarwater
Overdracht
Woonoppervlakte
138 m2
Perceel oppervlakte
227 m2
Inhoud
549 m3
Aantal kamers
5
Aantal slaapkamers
4
Energie
Energieklasse
B
Isolatievormen
Volledig geïsoleerd
Verwarming
CV ketel
Bouwjaar
2007
Buitenruimte
Tuin
Achtertuin, Voortuin
Hoofdtuin
Achtertuin
Hoofdtuin oppervlakte
80 m2
Positie
Zuid
Achterom
Nee
Kwaliteit
Verzorgd
Parkeergelegenheid
Garage
Inpandig
Parkeer faciliteiten
Op eigen terrein
Parkeeroppervlakte
17 m2
Totaal aantal garages
1
Dak
Soort dak
Lessenaardak
Kwaliteit dak
Pannen
Voorzieningen
Voorzieningen
Mechanische ventilatie, TV kabel, Buitenzonwering, Glasvezel kabel, Zonnepanelen, Natuurlijke ventilatie
Overig
Permanente bewoning
Ja
Onderhoud binnen
Goed
Onderhoud buiten
Goed
Huidig gebruik
Woonruimte
Huidige bestemming
Woonruimte
Bekijk alle specificaties

Interesse of meer weten?

Leuk dat je geïnteresseerd bent in deze woning! Als erkende makelaar staan wij voor je klaar om al je vragen te beantwoorden en om een bezichtiging in te plannen.

bureauhanze

    Met het versturen van dit formulier ga je akkoord met onze gebruiksvoorwaarden en privacybeleid.