Horst 14 27

8225 LH Lelystad
€ 375.000,- k.k.
4kamers
122 m2wonen
132 m2perceel

Algemene informatie

Aanvaarding
In overleg
Type woning
Tussenwoning
Energieklasse
A

Omschrijving

Op een fantastische en gewilde plek met vrij uitzicht over het water ligt deze instapklare woning in de populaire en kindvriendelijke woonwijk "Horst"! Deze eengezinswoning met 4 ruime slaapkamers én twee brede dakkapellen op zolder is gemoderniseerd vanaf 2021 - heden en helemaal klaar voor de nieuwe bewoners!

De woning is in 2022 voorzien van een luxe inbouwkeuken en moderne badkamer, comfortabele vloerverwarming en een keurige pvc-vloer op de begane grond (2022), kunststof kozijnen (2021) met HR++ beglazing, voorzien van horren en raambekleding op maat, evenals elektrische screens over de volledige voorzijde (2021), maar liefst 17 zonnepanelen (2023) en een vrijstaande, luxe houten berging. Daarnaast is er parkeergelegenheid op eigen terrein en beschikt de woning over energielabel A. Dat betekent niet alleen comfortabel wonen, maar ook lage energiekosten en een toekomstbestendige woning. Het interieur is tot in de puntjes verzorgd, waardoor je je hier direct thuis zult voelen!

De woning heeft een uitstekende ligging nabij het bos, paardenweides, een speeltuin, scholen, een buurtwinkelcentrum, stadscentrum, openbaar vervoer en het NS-station.

"Nu bieden vanaf € 375.000,-. De gestelde vraagprijs betreft een "bieden vanaf prijs". Biedingen vanaf € 375.000,- zullen door verkoper in behandeling genomen worden".

De indeling is als volgt:
Begane grond: Entree met vernieuwde meterkast (2022), woonkamer met de zithoek aan de voorzijde waar je prachtig over het water wegkijkt. Aan de achterzijde bevindt zich de eetkamer met mogelijkheid voor een grote eettafel en middels openslaande deuren toegang tot de achtertuin. De moderne keuken (2022) is voorzien van een inductiekookplaat met afzuigkap, combi-oven, Amerikaanse koelkast, vaatwasser en Quooker kraan. Grenzend aan de keuken bevindt zich een handige trapkast en een extra ruimte met een loopdeur naar de tuin en een dakraam, die geschikt is als kantoor of bijkeuken. In het midden van de woonkamer de hal met toiletruimte en toegang tot de eerste verdieping. De begane grond is voorzien van een screen aan de voorzijde en een nieuwe PVC-vloer met vloerverwarming.

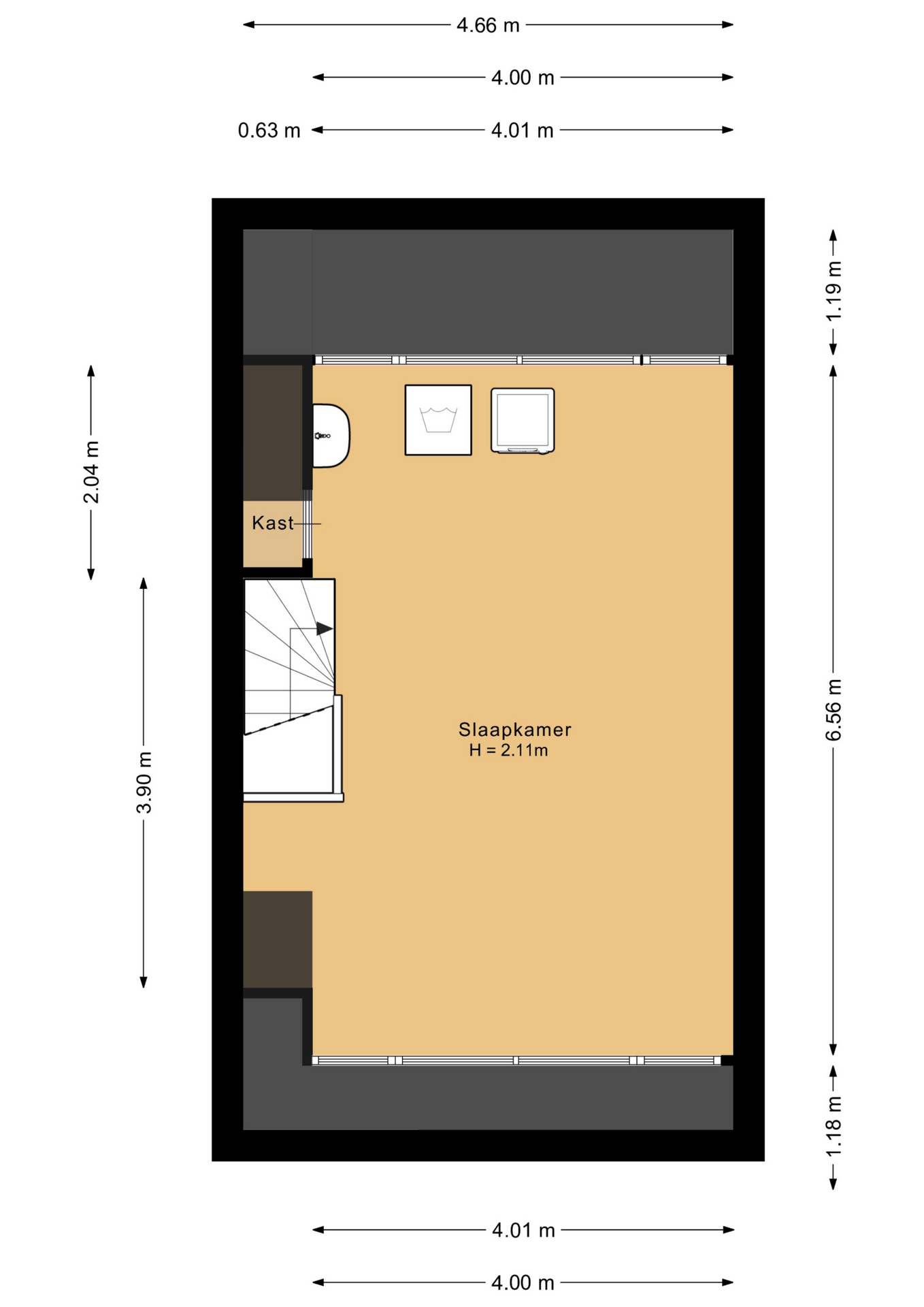
Eerste verdieping: Overloop met toegang tot 3 ruime slaapkamers (ca. 12 / 10 / 9 m²). De slaapkamers aan de voorzijde zijn voorzien van elektrische screens tegen de warmte, terwijl de achterslaapkamer beschikt over een verhuisraam. Alle ramen zijn voorzien van raambekleding en horren op maat waarvan het raam in de slaapkamer achter een verhuisraam betreft. Moderne badkamer (2022) met een ruime inloopdouche voorzien van een zitbank aan beide kanten, 2e toilet, breed wastafelmeubel met een dubbele kraan en een designradiator. De verdieping is voorzien van een nette laminaatvloer.

Tweede verdieping: Via vaste trap te bereiken verdieping. Hier treft u dankzij de 2 grote dakkappellen een schitterende 4e slaapkamer (maar liefst 28 m²!). Verder biedt deze verdieping opstelplaats voor de cv-ketel (2013, eigendom) en de wasmachine/droger. Via een luik in het plafond is er extra opbergruimte bereikbaar, ideaal voor het netjes opbergen van seizoensspullen of andere spullen die u niet dagelijks nodig heeft. De verdieping is voorzien van een keurige laminaatvloer.

Tuin: Aan de voorzijde een heerlijk rustig straatje met bestemmingsverkeer, parkeergelegenheid op eigen terrein en fantastisch uitzicht over het water. Ook de achtertuin is vrij gelegen aan een veldje zonder directe achterburen welke via een achterom te bereiken is. In de achtertuin is recent een luxe, vrijstaande houten berging geplaatst, compleet met HR++ beglazing, veiligheidssloten en vloerisolatie. Daarnaast zijn recent aan zowel de voor- als achterzijde nieuwe hout-betonschuttingen geplaatst.

* Gelegen met een fantastisch uitzicht over het water in de populaire en kindvriendelijke woonwijk "Horst";
* Instapklare eengezinswoning met 4 ruime slaapkamers;
* Volledig voorzien van kunststof kozijnen met HR++ beglazing (2021);
* Elektrische screens aan de voorzijde en alle ramen zijn voorzien van horren en raambekleding op maat;
* Vernieuwde luxe keuken en badkamer (2022);
* Maar liefst 17 zonnepanelen (2023);
* Voorzien van 2 brede dakkappellen op de tweede verdieping;
* Begane grond voorzien van een nieuwe PVC-vloer met vloerverwarming (2022);
* Nieuwe groepenkast (2022);
* Vrijstaande, luxe houten berging voorzien van vloerisolatie, HR++ beglazing en veiligheidssloten;
* Gelegen nabij scholen, een buurtwinkelcentrum, stadscentrum, openbaar vervoer en het NS-station
* Woonoppervlak: 122 m2;
* Kaveloppervlak: 132 m2 eigen grond
* Bouwjaar: 1982
* Energielabel A

Oplevering in overleg.

Lees de volledige omschrijving

Contact en info

Heb je vragen over deze woning of wil je een bezichtiging inplannen? Neem dan gerust contact met ons op, we helpen je graag verder!

Plan een bezichtiging

Kenmerken

Overdracht
Status
Verkocht
Koopprijs
€ 375.000,-
Aanvaarding
In overleg
Woonoppervlakte
122 m2
Inhoud
435 m3
Bouwvorm
Soort object
Woonhuis
Type woning
Tussenwoning
Soort
Eengezinswoning
Bouwjaar
1982
Bouwvorm
Bestaande bouw
Ligging
Aan rustige weg, In woonwijk, Vrij uitzicht, Open ligging, In bosrijke omgeving
Overdracht
Woonoppervlakte
122 m2
Perceel oppervlakte
132 m2
Inhoud
435 m3
Aantal kamers
5
Aantal slaapkamers
4
Energie
Energieklasse
A
Isolatievormen
HR glas
Verwarming
CV ketel, Vloerverwarming gedeeltelijk
Bouwjaar
2013
Buitenruimte
Tuin
Achtertuin, Voortuin
Hoofdtuin
Achtertuin
Hoofdtuin oppervlakte
58 m2
Positie
Noord
Achterom
Ja
Kwaliteit
Verzorgd
Bergruimte
Soort
Vrijstaand hout
Voorzieningen
Voorzien van elektra
Isolatievormen
Vloerisolatie, Dubbelglas
Parkeergelegenheid
Garage
Geen garage
Voorzieningen
Voorzien van elektra
Parkeer faciliteiten
Openbaar parkeren, Op eigen terrein
Dak
Soort dak
Zadeldak
Kwaliteit dak
Pannen
Voorzieningen
Voorzieningen
Mechanische ventilatie, Buitenzonwering, Glasvezel kabel, Zonnepanelen
Overig
Permanente bewoning
Ja
Onderhoud binnen
Goed
Onderhoud buiten
Goed tot uitstekend
Huidig gebruik
Woonruimte
Huidige bestemming
Woonruimte
Bekijk alle specificaties

Interesse of meer weten?

Leuk dat je geïnteresseerd bent in deze woning! Als erkende makelaar staan wij voor je klaar om al je vragen te beantwoorden en om een bezichtiging in te plannen.

bureauhanze

    Met het versturen van dit formulier ga je akkoord met onze gebruiksvoorwaarden en privacybeleid.