Horst 11 54
Algemene informatie
Omschrijving
Wonen met uw achtertuin direct grenzend aan het bos, wie wil dit nou niet?
Op een unieke locatie mogen wij u te koop aanbieden, deze hoekwoning op een perceel van maar liefst 392 m2 aan de rand van het bos!
Deze woning is gebouwd in 1982, grotendeels voorzien van dubbele beglazing en heeft een energielabel C. Parkeren is mogelijk op eigen terrein en daarnaast zijn er voldoende parkeerplaatsen in de directe omgeving. De woning verkeert in een matige staat van onderhoud en zal zowel aan de binnenzijde als aan de buitenzijde moeten worden aangepakt.
De woning is gelegen in de populaire en kindvriendelijke woonwijk "Horst", nabij de "Spettertuin", paardenweides, een speeltuin, scholen, een buurtwinkelcentrum, stadscentrum, openbaar vervoer en het NS-station.
Kortom: Bent u toe aan een uitdaging en wilt u wonen op een unieke locatie aan de rand van het bos? Kom dan deze woning bezichtigen!
"Nu bieden vanaf € 300.000,- k.k.. De gestelde vraagprijs betreft een "bieden vanaf prijs". Biedingen vanaf € 300.000,- k.k. zullen door verkoper in behandeling genomen worden".
Indeling;
Begane grond:
Entree/hal met de meterkast, garderobe, toiletruimte, trapopgang naar de verdieping en toegang tot de woonkamer en de aangebouwde stenen berging/bijkeuken met de wasmachine aansluiting. Ruime woonkamer van 5.09 m. breed met grote raampartijen, een sfeervolle open haard, praktische trapkast en een deur naar de vrij gelegen achtertuin, grenzend aan het bos. Aan de voorzijde is de keuken gesitueerd en daarnaast is er voldoende ruimte voor het plaatsen van een grote eettafel.
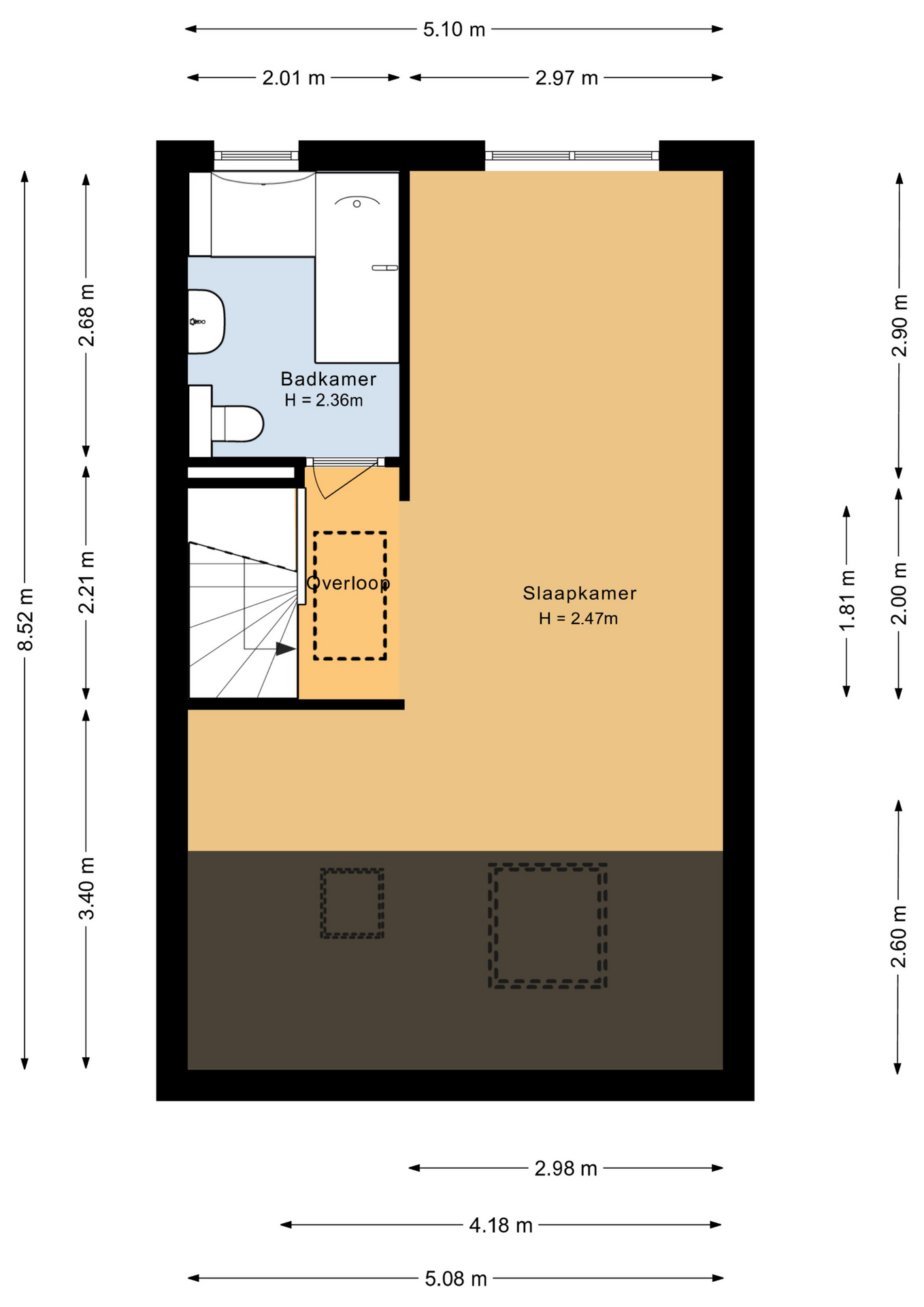
1e Verdieping:
Overloop met toegang tot een grote open ruimte met 2 dakramen, waar 3 slaapkamers gerealiseerd kunnen worden. Badkamer met een ligbad, douche, 2e toilet, wastafel en een raam voor de natuurlijke ventilatie.
Vliering:
Via vlizotrap te bereiken bergvliering met de opstelplaats van de cv-ketel en een dakraam.
Tuin:
Een heerlijke groene achtertuin met een ligging op het oosten en voorzien van bomen en beplanting, een waterput en een vrijstaande houten schuur. Hier is het heerlijk "Bourgondisch" genieten en ervaart u de pracht van de natuur met fluitende vogels om u heen. Vanuit uw tuin loopt u zo het bosgebied in! Wat wilt u nog meer?
* Op een unieke locatie, aan de bosrand van de "Horst" gelegen hoekwoning
* Mogelijkheden voor het realiseren van 3 slaapkamers
* Een heerlijke groene achtertuin voorzien van bomen en beplanting, een waterput en een vrijstaande houten schuur
* Vanuit uw tuin loopt u zo het bosgebied in!
* Parkeergelegenheid mogelijk op eigen terrein en voldoende parkeerplaatsen in de directe omgeving
* Gelegen nabij de "Spettertuin", paardenweides, een speeltuin, scholen, een buurtwinkelcentrum, stadscentrum, openbaar vervoer en het NS-station
* Woonoppervlak: 84 m2
* Kaveloppervlak: 392 m2 eigen grond
* Bouwjaar: 1982
* Energielabel C
Aanvaarding in overleg.
Contact en info
Heb je vragen over deze woning of wil je een bezichtiging inplannen? Neem dan gerust contact met ons op, we helpen je graag verder!
Plan een bezichtigingKenmerken
Interesse of meer weten?
Leuk dat je geïnteresseerd bent in deze woning! Als erkende makelaar staan wij voor je klaar om al je vragen te beantwoorden en om een bezichtiging in te plannen.