Hollandse Hout 36

8244 GA Lelystad
€ 695.000,- k.k.
4kamers
177 m2wonen
860 m2perceel

Algemene informatie

Aanvaarding
In overleg
Type woning
Twee onder één kapwoning
Energieklasse
A

Omschrijving

Aan de rand van de geliefde en groene wijk "Hollandse Hout" bevindt zich deze schitterende en royale woning op huisnummer 36. Een bijzonder vormgegeven woonhuis met een moderne architectuur, gelegen op een prachtige kavel van maar liefst 860 m². De woning is gesitueerd in een rustige, ruim opgezette straat met veel groen en biedt vanuit de veranda een adembenemend uitzicht over recreatieplas "Het Bovenwater" en de omliggende natuur.

Bij aankomst valt direct de stijlvolle gevel op, waarin natuurlijke materialen en grote raampartijen zorgen voor een warme uitstraling en veel lichtinval. U parkeert uw auto's comfortabel op eigen terrein of onder de ruime carport. De royale voortuin is fraai aangelegd en biedt veel privacy.

Binnen wacht een verrassend ruim interieur met een woonoppervlakte van circa 177 m². De woonkamer is sfeervol en licht, met een directe verbinding naar de veranda waar u heerlijk buiten kunt zitten, omringd door groen en met vrij uitzicht op het water. De moderne open keuken is voorzien van diverse inbouwapparatuur en biedt volop ruimte om te koken en te genieten.

Een bijzonder pluspunt is het souterrain (begane grond) waar zich een multifunctionele ruimte bevindt. Deze ruimte is thans in gebruik als slaapkamer, maar leent zich ook uitstekend als kantoor of praktijk aan huis. Tevens vindt u hier een ruime bijkeuken met opstelplaats voor wasmachine en droger. Deze bijkeuken kan desgewenst worden omgevormd tot extra badkamer, waardoor de woning nóg meer comfort en flexibiliteit biedt.

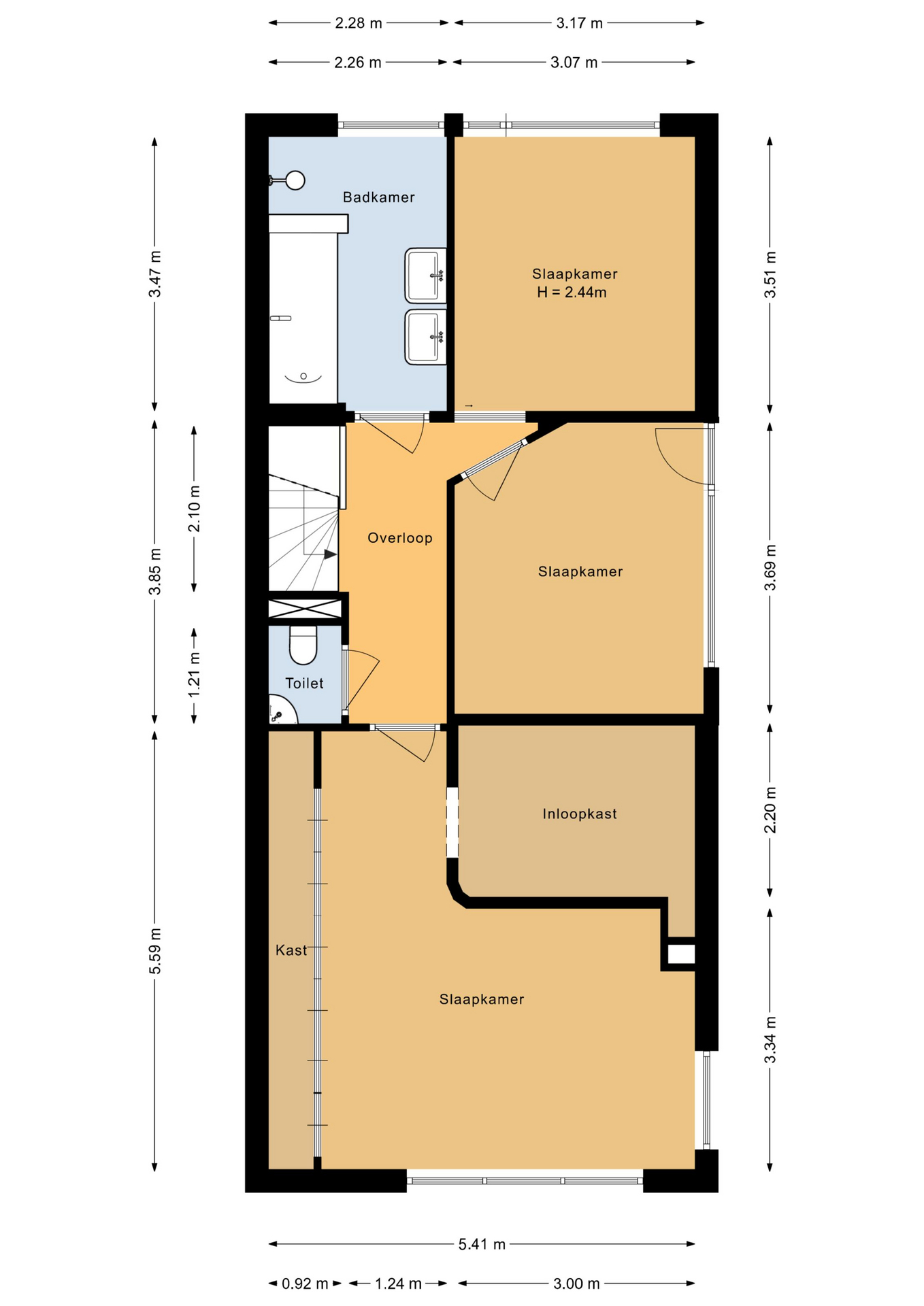
Op de tweede verdieping bevinden zich drie ruime slaapkamers. De master bedroom beschikt over een riante inloopkast én een vaste kast. De moderne badkamer is van alle gemakken voorzien, waaronder een dubbele wastafel, een ruime inloopdouche en een comfortabel ligbad. Daarnaast is er een separaat toilet aanwezig op zowel de woonverdieping als de tweede verdieping.

De tuin is werkelijk een plaatje, schitterend aangelegd met diverse terrassen voorzien van natuursteentegels, strakke borders met bomen en beplanting, een fraai gazon, plataanbomen en meerdere vlonderterrassen. De tuin wordt omsloten door groene hagen en schuttingen, wat zorgt voor optimale privacy. Aan de achterzijde grenst het perceel aan sierwater, wat het gevoel van ruimte en natuurbeleving versterkt. Een vrijstaande houten berging maakt het geheel compleet.

De ligging van de woning is ideaal, op korte afstand vindt u de Oostvaardersplassen, een van de mooiste natuurgebieden van Nederland. Perfect voor wandelingen, fietstochten of om gewoon van de rust te genieten. Voor dagelijkse voorzieningen is er een supermarkt en basisschool om de hoek en het stadscentrum van Lelystad is binnen enkele minuten bereikbaar.

Een unieke kans voor wie op zoek is naar ruimte, rust, comfort én natuurbeleving!

"Nu bieden vanaf € 695.000,- k.k.. De gestelde vraagprijs betreft een "bieden vanaf prijs". Biedingen vanaf € 695.000,- k.k. zullen door verkoper in behandeling genomen worden".

Indeling;
Souterrain (begane grond):
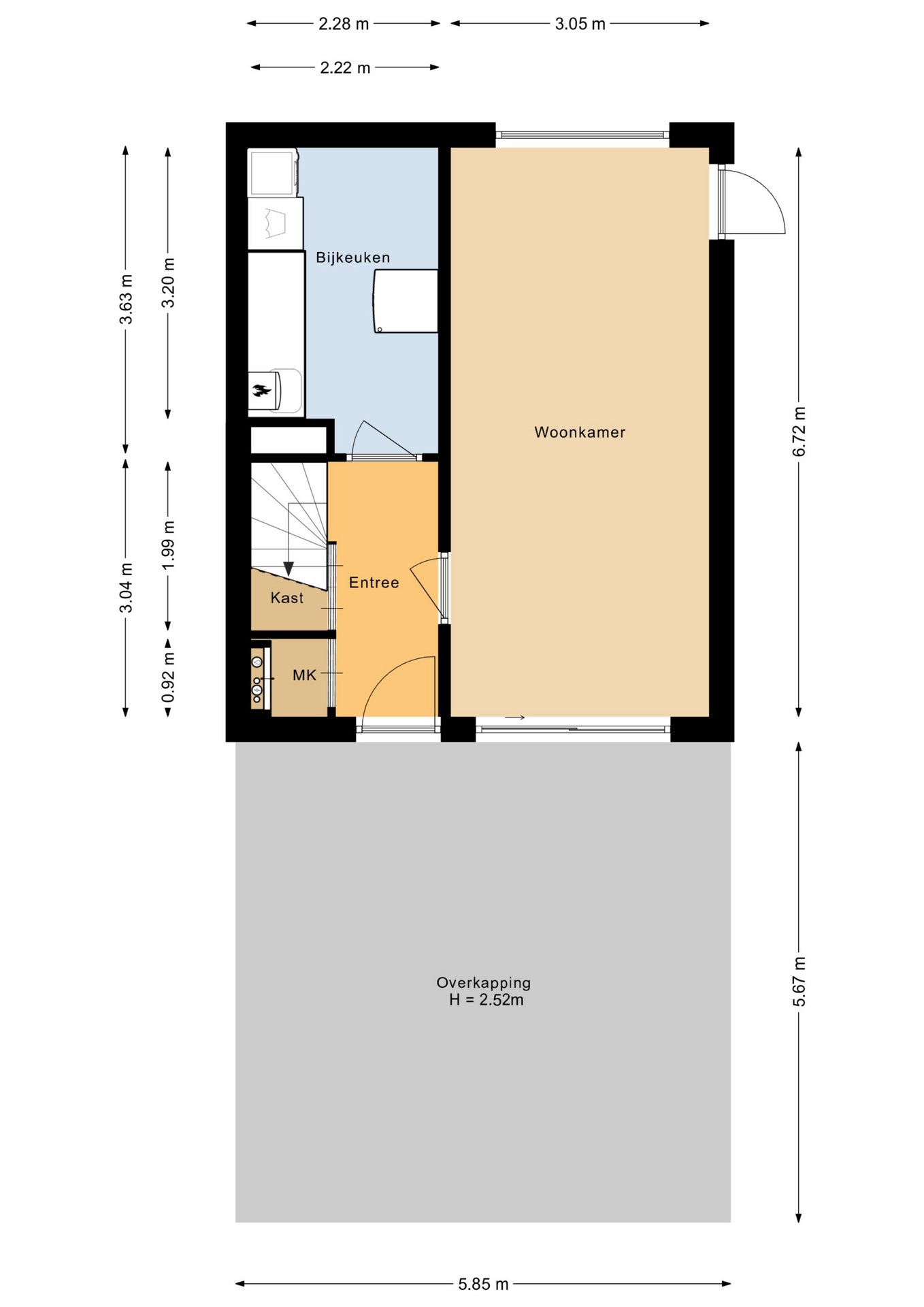
Entree/hal met de meterkast, trapkast, trapopgang naar de woonverdieping, bijkeuken met keukenblok en de opstelplaats van de wasmachine/droger, de cv-installatie, de mechanische ventilatie box en toegang tot een multifunctionele ruimte van ca. 20 m2. Deze ruimte is momenteel in gebruik als slaapkamer met een opklapbaar bed, maar kan ook worden ingericht als kantoor of praktijk aan huis. De bijkeuken kan eenvoudig omgebouwd worden tot badkamer, waardoor gelijkvloers slapen en badderen tot de mogelijkheden behoort. Via de achterdeur loopt u zo de tuin in, wat wilt u nog meer?

1e verdieping (woonverdieping):
Entree/overloop met de toiletruimte en toegang tot de riante living (ca. 37 m2) met grote raampartijen, een sfeervolle open haard, een ingebouwde kastenwand, fraaie massief eiken houten vloer en middels een schuifpui toegang tot de veranda (ca. 12 m2). Vanaf de veranda heeft u een adembenemend uitzicht over recreatieplas "Het Bovenwater" en de omliggende natuur. Aan de voorzijde bevindt zich de moderne Zeyko woonkeuken met composieten werkblad en beukenhouten lades, welke voorzien is van de volgende apparatuur; koelkast, vriezer, vaatwasser, stoomoven, hetelucht oven, wokbrander met 2 gaspitten en een professionele afzuigkap. Mocht u liever op bijvoorbeeld inductie willen koken, alles is modulair en simpel te vervangen. De overloop en de woonkeuken zijn voorzien van een fraaie tegelvloer (kopersulfaat 50x50).

2e verdieping:
Overloop met de toiletruimte en toegang tot 3 ruime slaapkamers (ca. 30 / 11 / 11 m2), waarbij de master bedroom is voorzien van een ingebouwde kastenwand en een walk-in-closet en de middelste slaapkamer is uitgevoerd met een opklapbaar bed en een Frans balkon. Moderne badkamer met een (inloop)douche, ligbad met whirlpool, dubbele wastafel en een raam voor de natuurlijke ventilatie. De verdieping is voorzien van een luxe houten vloer (2025) in visgraatmotief.

Tuin:
Een schitterend aangelegde tuin voorzien van diverse terrassen met natuursteentegels (100x100), strakke borders met bomen en beplanting, gazon, plataanbomen, vlonderterrassen en een vrijstaande houten berging. De tuin wordt omheind middels fraaie groene hagen en schuttingen en grenst aan de achterzijde aan sierwater.

* Schitterende en royale woning woning aan de rand van de geliefde en groene wijk "Hollandse Hout"
* De woning is voorzien van een moderne Zeyko woonkeuken en een moderne badkamer
* 4 ruime slaapkamers aanwezig met de mogelijkheid tot gelijkvloers slapen en badderen
* Riante living (ca. 37 m2) met een sfeervolle open haard, ingebouwde kastenwand en een fraaie massief eiken houten vloer
* Vanaf de veranda heeft u een adembenemend uitzicht over recreatieplas "Het Bovenwater" en de omliggende natuur
* De woonverdieping is ook via de zijkant te betreden en het balkon wordt omzoomd door een "blauwe regen"
* Schitterend aangelegde tuin voorzien van diverse terrassen, strakke borders en veel privacy!
* Stijlvolle gevel waarin natuurlijke materialen en grote raampartijen zorgen voor een warme uitstraling en veel lichtinval
* Ruime parkeergelegenheid op eigen terrein of onder de ruime carport
* De woning ligt op fietsafstand van diverse voorzieningen zoals de basisschool en de supermarkt
* Woonoppervlak: 177 m2
* Kaveloppervlak: 860 m2 eigen grond
* Bouwjaar: 2004
* Energielabel: A

Aanvaarding in overleg.

Lees de volledige omschrijving

Contact en info

Heb je vragen over deze woning of wil je een bezichtiging inplannen? Neem dan gerust contact met ons op, we helpen je graag verder!

Plan een bezichtiging

Kenmerken

Overdracht
Status
Verkocht
Koopprijs
€ 695.000,-
Aanvaarding
In overleg
Woonoppervlakte
177 m2
Inhoud
587 m3
Bouwvorm
Soort object
Woonhuis
Type woning
Twee onder één kapwoning
Soort
Eengezinswoning
Bouwjaar
2004
Bouwvorm
Bestaande bouw
Ligging
Aan water, Aan rustige weg, In woonwijk, Vrij uitzicht, Open ligging
Overdracht
Woonoppervlakte
177 m2
Perceel oppervlakte
860 m2
Inhoud
587 m3
Aantal kamers
5
Aantal slaapkamers
4
Energie
Energieklasse
A
Isolatievormen
Dakisolatie, Muurisolatie, Vloerisolatie, Dubbelglas
Verwarming
CV ketel, Open haard, Vloerverwarming gedeeltelijk
Buitenruimte
Tuin
Achtertuin, Voortuin, Zijtuin
Hoofdtuin
Achtertuin
Hoofdtuin oppervlakte
287 m2
Positie
Noordoost
Achterom
Nee
Kwaliteit
Fraai aangelegd
Bergruimte
Soort
Vrijstaand hout
Parkeergelegenheid
Garage
Carport, Parkeerplaats
Parkeer faciliteiten
Openbaar parkeren, Op eigen terrein
Dak
Soort dak
Plat dak
Kwaliteit dak
Bitumineuze Dakbedekking
Voorzieningen
Voorzieningen
Mechanische ventilatie, TV kabel, Schuifpui, Frans balkon, Glasvezel kabel
Overig
Permanente bewoning
Ja
Onderhoud binnen
Goed
Onderhoud buiten
Goed
Huidig gebruik
Woonruimte
Huidige bestemming
Woonruimte
Bekijk alle specificaties

Interesse of meer weten?

Leuk dat je geïnteresseerd bent in deze woning! Als erkende makelaar staan wij voor je klaar om al je vragen te beantwoorden en om een bezichtiging in te plannen.

bureauhanze

    Met het versturen van dit formulier ga je akkoord met onze gebruiksvoorwaarden en privacybeleid.