Hagenduin 26

8219 DE Lelystad
€ 685.000,- k.k.
4kamers
166 m2wonen
539 m2perceel

Algemene informatie

Aanvaarding
In overleg
Type woning
Twee onder één kapwoning
Energieklasse
A

Omschrijving

Op een schitterende locatie, aan de waterzijde van villapark "Buitenhof" gelegen instapklare 2-onder-1-kapwoning met 4 ruime slaapkamers (mogelijkheden voor meer), een fraaie inbouwkeuken, riante woonkamer, een moderne badkamer, tuinligging op het westen en parkeergelegenheid voor meerdere auto's op eigen terrein. Deze woning is gebouwd in 2019, gesitueerd op een perceel van 539 m2 en biedt met een woonoppervlakte van 166 m2 een heerlijk ruim (t)huis voor uw gezin of familie! De woning combineert luxe, comfort en natuur op een unieke manier, en biedt alles wat u zich maar kunt wensen voor modern wonen. Daarnaast is de woning uitstekend geïsoleerd (energielabel A) en voorzien van een warmtepomp, Meranti hardhouten kozijnen met HR++ beglazing en 27 zonnepanelen, wat niet alleen bijdraagt aan een duurzame levensstijl, maar ook helpt bij het besparen op energiekosten. De woning straalt een heerlijke eigentijdse sfeer uit, waarbij hoogwaardige afwerkingen zorgen voor een luxe uitstraling. Het interieur is tot in de puntjes verzorgd, waardoor je je meteen thuis zult voelen.

De woning staat op villapark "Buitenhof" en is gelegen in een bosrijke omgeving, waarbij er diverse faciliteiten zijn als een zwembad, lunchroom (wordt aan gewerkt) en een multifunctioneel sportveld waar kinderen heerlijk kunnen spelen. De locatie voorziet perfect in basiselementen als rust, prachtige natuur, ruimte en een goede bereikbaarheid. Binnen enkele (auto)minuten bereikt u de in- en uitvalswegen (A6 richting Amsterdam / noorden en N302 richting Harderwijk) van Lelystad. Door het vele groen en de ruime opzet van de wijk woont u hier met een permanent vakantiegevoel. Alle voorzieningen zoals scholen, supermarkten, winkels zijn snel en makkelijk bereikbaar. Dit alles maken het geheel tot een uiterst comfortabele en prettige woonomgeving!

Als bewoner van woonwijk 'Buitenhof' wordt u automatisch lid van de Stichting Buitenhof. De stichting zorgt voor het behoud/onderhoud van groen en water in de woonwijk. De bijdrage voor deze woning bedraagt ca. € 101,06 per jaar.

Kortom: een schitterende en uitstekend geïsoleerde instapklare 2-onder-1-kap woning op villapark "Buitenhof", met alle denkbare voorzieningen vlak om de hoek!

"Nu bieden vanaf € 685.000,- k.k.. De gestelde vraagprijs betreft een "bieden vanaf prijs". Biedingen vanaf € 685.000,- k.k. zullen door verkoper in behandeling genomen worden".

Indeling;
Begane grond:
Entree hal met de garderobe, meterkast, toiletruimte, trapopgang naar de verdieping en toegang naar de woonkamer. Een heerlijke tuingerichte woonkamer van maar liefst 9.42 meter breed met een praktische bergkast, grote raampartijen en middels dubbelle openslaande deuren naar de tuin. Ruime opstelmogelijkheden voor een grote eettafel, waar u heerlijk met vrienden en familie kunt dineren. Vanuit de woonkamer is de garage/berging (ca. 8 m2) te bereiken met de opstelplaats van de warmtepomp en middels dubbele garagedeuren toegang naar de voortuin. Aan de voorzijde bevindt zich de fraaie inbouwkeuken met bar in U-opstelling, welke voorzien is van de volgende apparatuur; koelkast, vriezer, vaatwasser, oven, 4-pits inductiekookplaat en een afzuigkap. De begane grond is voorzien van een fraaie PVC-vloer in visgraatmotief met vloerverwarming.

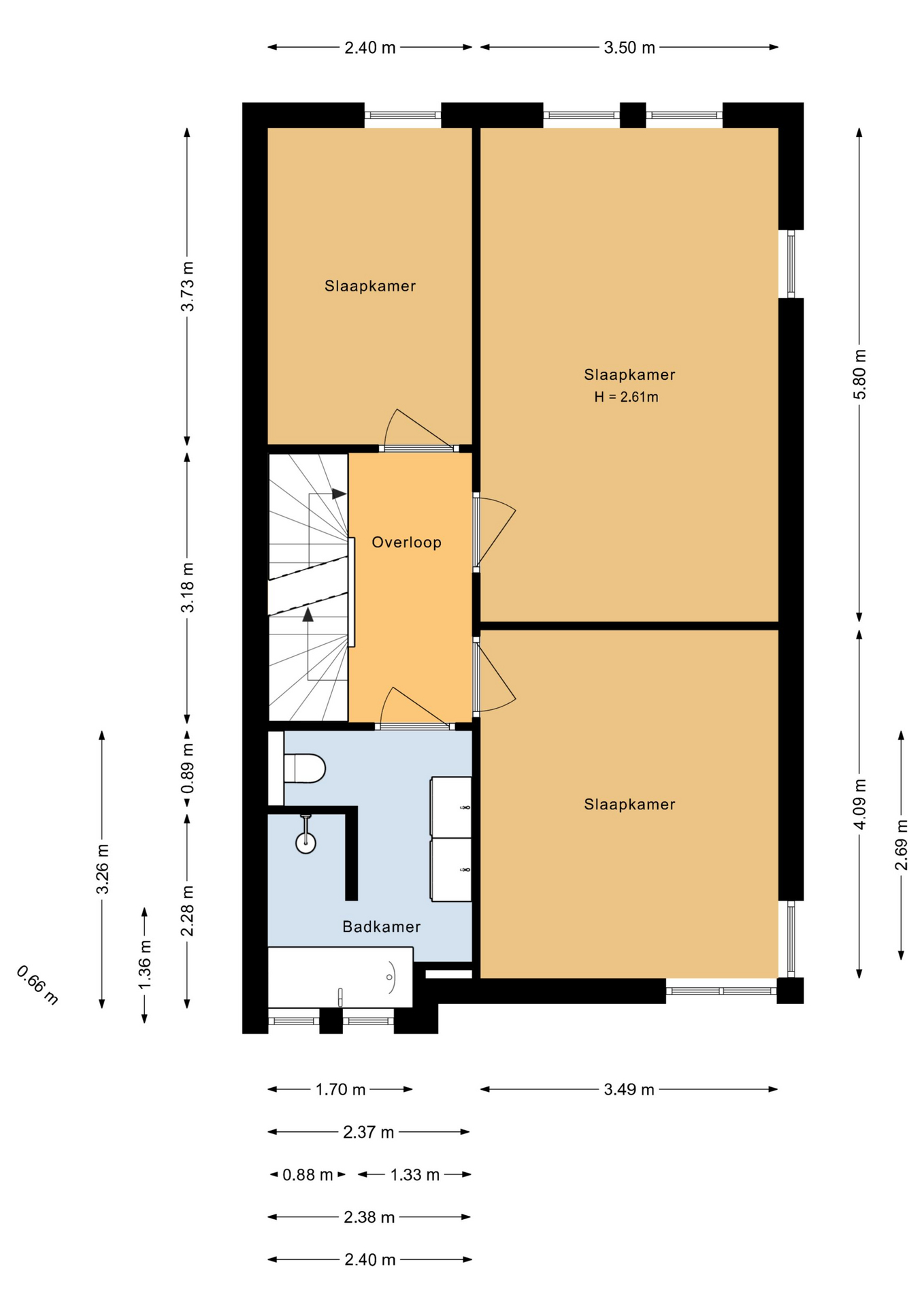
1e Verdieping:
Overloop met toegang tot 3 ruime slaapkamers (ca. 20 / 14 / 9 m2). Moderne badkamer met een ligbad, (inloop)douche, 2e toilet, wastafelmeubel met dubbele wastafel, vloerverwarming en een raam voor de natuurlijke ventilatie. De verdieping is voorzien van een fraaie PVC-vloer in visgraatmotief met vloerverwarming.

2e Verdieping:
Via vaste trap te bereiken verdieping van ca. 33 m2 voorzien van 2 dakramen en de technische ruimte met de opstelplaats van de wasmachine/droger, de mechanische ventilatie box en veel praktische bergruimte. Mogelijkheden voor het realiseren van 1 of 2 ruime (slaap)kamers. De voorbereidingen voor het realiseren van een bergvliering zijn reeds getroffen en dienen nog cosmetisch te worden afgewerkt. De verdieping is voorzien van een fraaie linoleum vloer in visgraatmotief.

Tuin:
De fraai aangelegde tuin is gelegen op het westen en voorzien van meerdere terrassen met bestrating, siergrind, borders met siergrassen, een groot gazon, meerdere pergola's en een heerlijke houten berging (ca. 9 m2) met overkapping. Aangrenzend bevindt zich het verlaagde vlonderterras met een tweetal borders met bomen en beplanting en een ligging aan het water! Hier kunt u op elk gewenst moment van de dag genieten van uw privacy en al het moois wat deze tuin u te bieden heeft!

* Op een schitterende locatie, aan de waterzijde van villapark "Buitenhof" gelegen instapklare 2-onder-1-kapwoning
* De woning is voorzien van 4 ruime slaapkamers, een fraaie inbouwkeuken en een moderne badkamer
* Riante tuingerichte woonkamer van maar liefst 9.42 meter breed met dubbele openslaande deuren naar de tuin
* De begane grond en de verdieping zijn voorzien van een fraaie PVC-vloer in visgraatmotief met vloerverwarming
* Voorbereidingen voor een bergvliering zijn reeds getroffen, deze dient cosmetisch nog te worden afgewerkt
* Fraai aangelegde tuin gelegen op het westen met een heerlijke houten berging (ca. 9 m2) met overkapping en een ligging aan het water!
* Voorzien van maar liefst 27 zonnepanelen met een capaciteit van 400 WP per zonnepaneel
* Voorzien van Meranti hardhouten kozijnen met HR++ beglazing
* Gelegen in de bosrijke woonomgeving van villapark "Buitenhof"
* Parkeergelegenheid voor meerdere auto's op eigen terrein
* Bijdrage stichting Buitenhof bedraagt ca. € 101,06 per jaar
* Woonoppervlak: 166 m2
* Inhoud: 635 m3
* Kaveloppervlak: 539 m2 eigen grond
* Bouwjaar: 2019
* Energielabel: A

Aanvaarding in overleg.

Lees de volledige omschrijving

Contact en info

Heb je vragen over deze woning of wil je een bezichtiging inplannen? Neem dan gerust contact met ons op, we helpen je graag verder!

Plan een bezichtiging

Kenmerken

Overdracht
Status
Verkocht
Koopprijs
€ 685.000,-
Aanvaarding
In overleg
Woonoppervlakte
166 m2
Inhoud
635 m3
Bouwvorm
Soort object
Woonhuis
Type woning
Twee onder één kapwoning
Soort
Eengezinswoning
Bouwjaar
2019
Bouwvorm
Bestaande bouw
Ligging
Aan water, Aan park, Aan rustige weg, In woonwijk, In bosrijke omgeving
Overdracht
Woonoppervlakte
166 m2
Perceel oppervlakte
539 m2
Inhoud
635 m3
Aantal kamers
5
Aantal slaapkamers
4
Energie
Energieklasse
A
Isolatievormen
Dakisolatie, Muurisolatie, Vloerisolatie, Dubbelglas, Volledig geïsoleerd, HR glas
Verwarming
Vloerverwarming gedeeltelijk
Buitenruimte
Tuin
Achtertuin, Voortuin, Zijtuin
Hoofdtuin
Achtertuin
Hoofdtuin oppervlakte
288 m2
Positie
West
Achterom
Nee
Kwaliteit
Fraai aangelegd
Bergruimte
Soort
Vrijstaand hout
Voorzieningen
Voorzien van elektra
Parkeergelegenheid
Garage
Aangebouwd steen
Voorzieningen
Voorzien van elektra
Parkeer faciliteiten
Openbaar parkeren, Op eigen terrein
Parkeeroppervlakte
8 m2
Totaal aantal garages
1
Dak
Soort dak
Zadeldak
Kwaliteit dak
Pannen
Voorzieningen
Voorzieningen
Mechanische ventilatie, TV kabel, Dakraam, Glasvezel kabel, Zonnepanelen
Overig
Permanente bewoning
Ja
Onderhoud binnen
Goed
Onderhoud buiten
Goed
Huidig gebruik
Woonruimte
Huidige bestemming
Woonruimte
Bekijk alle specificaties

Interesse of meer weten?

Leuk dat je geïnteresseerd bent in deze woning! Als erkende makelaar staan wij voor je klaar om al je vragen te beantwoorden en om een bezichtiging in te plannen.

bureauhanze

    Met het versturen van dit formulier ga je akkoord met onze gebruiksvoorwaarden en privacybeleid.