Griend 23 8

8225 RX Lelystad
€ 425.000,- k.k.
4kamers
122 m2wonen
265 m2perceel

Algemene informatie

Aanvaarding
In overleg
Type woning
Twee onder één kapwoning
Energieklasse
A

Omschrijving

Op een fijne locatie, aan de rand van de centraal gelegen woonwijk 'De Griend', staat deze moderne twee-onder-een-kapwoning op een royaal en privacy-rijk perceel met aangebouwde geïsoleerde garage en zonnige tuin op het zuiden!

De woning beschikt over een aangebouwde, volledig geïsoleerde garage die geschikt is voor diverse doeleinden, zoals een kantoor of praktijk aan huis. Daarnaast is er op eigen terrein voldoende parkeergelegenheid voor meerdere auto’s. De woning zelf is modern afgewerkt en biedt een ruime woonkamer, een moderne hoekkeuken, een nette badkamer en drie slaapkamers op de eerste verdieping. Op de tweede verdieping zorgt de grote dakkapel voor een royale kamer die eenvoudig kan worden ingericht als vierde slaapkamer. Verder is de woning nagenoeg volledig voorzien van rolluiken en een geïsoleerd tuinhuis.

Deze woning is gebouwd in 1988, gesitueerd op een perceel van 265 m² eigen grond, heeft een tuinligging op het zuiden en biedt met een woonoppervlakte van 122 m² een heerlijk ruim (t)huis voor uw gezin of familie! Daarnaast is de woning uitstekend geïsoleerd (energielabel A) en voorzien van 13 zonnepanelen (2021), wat niet alleen bijdraagt aan een duurzame levensstijl, maar ook helpt bij het besparen op energiekosten.

De woning is op loop- en fietsafstand gelegen van een buurtwinkelcentrum met Albert Heijn, het ziekenhuis, tandartspraktijken, gezondheidscentrum, diverse (basis)scholen, het stadscentrum van Lelystad en een snelle ontsluiting naar de snelweg A6.

"Nu bieden vanaf € 425.000,- k.k.. De gestelde vraagprijs betreft een "bieden vanaf prijs". Biedingen vanaf € 425.000,- k.k. zullen door verkoper in behandeling genomen worden".

Indeling:
Begane grond: Royale entree/hal met trapopgang, toiletruimte met hangend toilet en fonteintje, meterkast en trapopgang. Ruime woonkamer met grote raampartijen (veel lichtinval!), een moderne keuken in hoekopstelling met een granieten blad, voorzien van diverse inbouwapparatuur zoals een inductiekookplaat met afzuigkap, inbouwoven, magnetron, vaatwasser en een vrijstaande koel-vriescombinatie. De begane grond is voorzien van een keurige plavuizenvloer met vloerverwarming.

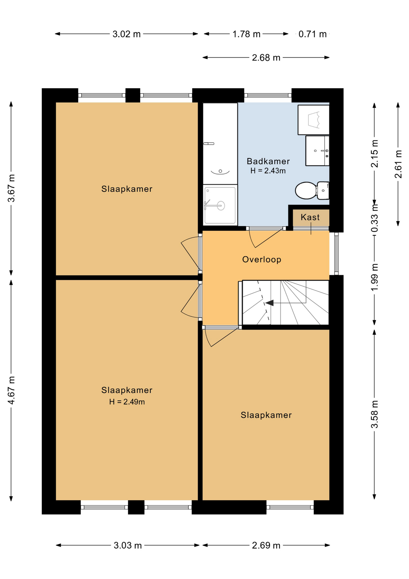
Eerste verdieping: Overloop met vaste kast, drie ruime slaapkamers (ca. 14 / 11 / 10 m² groot), ruime en volledig betegelde badkamer voorzien van een ligbad (2025), douchecabine, wastafelmeubel (2025), 2e toilet, radiator (2025) en een raam voor extra ventilatie en voldoende daglicht. De wanden op deze verdieping zijn strak afgewerkt en de vloer is voorzien van een fraaie nieuwe laminaatvloer. Alle ramen zijn eveneens voorzien van rolluiken.

Tweede verdieping: Ruime zolderverdieping welke dankzij de dakkapel met rolluik ruimte biedt voor een royale vierde slaapkamer. De cv-ketel (2016 eigendom) en mechanische ventilatie-box zijn keurig weggewerkt en er is tevens meer bergruimte achter de knieschotten. De wanden zijn strak afgewerkt en de vloer is voorzien van een fraaie nieuwe laminaatvloer.

Tuin: Aan de voorzijde beschikt de woning over een eigen oprit met ruimte voor meerdere auto’s die toegang geeft tot de aangebouwde stenen garage. Deze garage is volledig na-geïsoleerd en daardoor geschikt voor diverse doeleinden, denk aan kantoor of praktijk aan huis. Aan de voorzijde is de garage voorzien van openslaande deuren en aan de achterzijde van een loopdeur naar de tuin. De royale achtertuin (ca 16,5m x 9,3m) met grote overkapping is een heerlijke plek om in alle privacy te genieten van het weer. Dankzij de zonnige ligging op het zuiden profiteert u de hele dag van de zon, terwijl de bomen in de zomer voor een beschutte, groene omgeving zorgen. Bovendien biedt de tuin veel vrijheid, zonder directe achterburen, en een prettige verdeling tussen terras en groen.

Bijzonderheden:
* Vrij gelegen twee-onder-een-kapwoning in de centrale en kindvriendelijke woonwijk ''De Griend'';
* De aangebouwde garage en houten berging zijn volledig geïsoleerd;
* De woning is volledig voorzien van hardhouten kozijnen met volledig dubbele beglazing en deels HR glas;
* De woning is vrijwel volledig voorzien van rolluiken;
* Veel privacy in de achtertuin grenzend aan groen;
* Begane grond vloer voorzien van een plavuizen vloer met vloerverwarming
* Ruime parkeergelegenheid voor meerdere auto's op eigen terrein;
* Mogelijkheid tot 4 ruime slaapkamers;
* Gelegen nabij alle dagelijkse voorzieningen, zoals scholen, een buurtwinkelcentrum, speeltuin, openbaar vervoer, het stadscentrum en het NS-station.
* Woonoppervlak: 122 m²;
* Kaveloppervlak: 265 m²;
* Bouwjaar: 1988;
* Energielabel: A.

Aanvaarding in overleg.

Lees de volledige omschrijving

Contact en info

Heb je vragen over deze woning of wil je een bezichtiging inplannen? Neem dan gerust contact met ons op, we helpen je graag verder!

Plan een bezichtiging

Kenmerken

Overdracht
Status
Verkocht
Koopprijs
€ 425.000,-
Aanvaarding
In overleg
Woonoppervlakte
122 m2
Inhoud
484 m3
Bouwvorm
Soort object
Woonhuis
Type woning
Twee onder één kapwoning
Soort
Eengezinswoning
Bouwjaar
1988
Bouwvorm
Bestaande bouw
Ligging
In woonwijk
Overdracht
Woonoppervlakte
122 m2
Perceel oppervlakte
265 m2
Inhoud
484 m3
Aantal kamers
5
Aantal slaapkamers
4
Energie
Energieklasse
A
Isolatievormen
Dakisolatie, Muurisolatie, Vloerisolatie, Dubbelglas
Verwarming
CV ketel, Vloerverwarming gedeeltelijk
Bouwjaar
2016
Buitenruimte
Tuin
Achtertuin, Voortuin
Hoofdtuin
Achtertuin
Hoofdtuin oppervlakte
140 m2
Positie
Zuid
Achterom
Ja
Kwaliteit
Verzorgd
Bergruimte
Soort
Vrijstaand hout
Voorzieningen
Voorzien van elektra
Isolatievormen
Dakisolatie, Muurisolatie, Vloerisolatie
Parkeergelegenheid
Garage
Aangebouwd steen
Voorzieningen
Voorzien van elektra
Parkeer faciliteiten
Openbaar parkeren, Op eigen terrein
Parkeeroppervlakte
18 m2
Parkeren capaciteit
2
Totaal aantal garages
1
Dak
Soort dak
Zadeldak
Kwaliteit dak
Pannen
Voorzieningen
Voorzieningen
Mechanische ventilatie, Rolluiken, TV kabel, Glasvezel kabel, Zonnepanelen
Overig
Permanente bewoning
Ja
Onderhoud binnen
Goed
Onderhoud buiten
Goed
Huidig gebruik
Woonruimte
Huidige bestemming
Woonruimte
Bekijk alle specificaties

Interesse of meer weten?

Leuk dat je geïnteresseerd bent in deze woning! Als erkende makelaar staan wij voor je klaar om al je vragen te beantwoorden en om een bezichtiging in te plannen.

bureauhanze

    Met het versturen van dit formulier ga je akkoord met onze gebruiksvoorwaarden en privacybeleid.