Griend 16 4

8225 RL Lelystad
€ 350.000,- k.k.
4kamers
124 m2wonen
155 m2perceel

Algemene informatie

Aanvaarding
In overleg
Type woning
Tussenwoning
Energieklasse
B

Omschrijving

Welkom aan de Griend 16-4 in Lelystad, een verrassend ruime tussenwoning gelegen in een rustige en kindvriendelijke woonomgeving. Deze woning staat op een perceel van 155 m² en biedt u een woonoppervlakte van circa 123 m², verdeeld over meerdere verdiepingen. U parkeert uw auto’s eenvoudig op de oprit, waar ruimte is voor twee voertuigen.

Bij binnenkomst valt direct de royale en lichte woonkamer op, met een oppervlakte van circa 33 m² en voorzien van een sfeervolle houtkachel. De dichte keuken is uitgerust met inbouwapparatuur en biedt volop mogelijkheden voor kookliefhebbers. Aan de woning vast bevindt zich een ruime berging van circa 13 m², ideaal voor extra opslag of het stallen van fietsen.

Op de eerste verdieping bevinden zich drie ruime slaapkamers, terwijl de tweede verdieping plaats biedt aan een vierde slaapkamer met de mogelijkheid om een vijfde kamer te realiseren. De badkamer is praktisch ingericht met een douchecabine, toilet en wastafel.

De achtertuin is gesitueerd op het oosten en beschikt over een handige poort naar het achterpad, waardoor u eenvoudig achterom kunt komen. De ligging is gunstig, met diverse voorzieningen zoals een supermarkt en kinderdagverblijf op korte afstand.

Bent u op zoek naar een ruime gezinswoning met parkeergelegenheid op eigen terrein en volop potentie? Dan nodigen wij u van harte uit om een kijkje te komen nemen aan de Griend 16-4 in Lelystad.

"Nu bieden vanaf € 350.000,- k.k.. De gestelde vraagprijs betreft een "bieden vanaf prijs". Biedingen vanaf € 350.000,- k.k. zullen door verkoper in behandeling genomen worden".

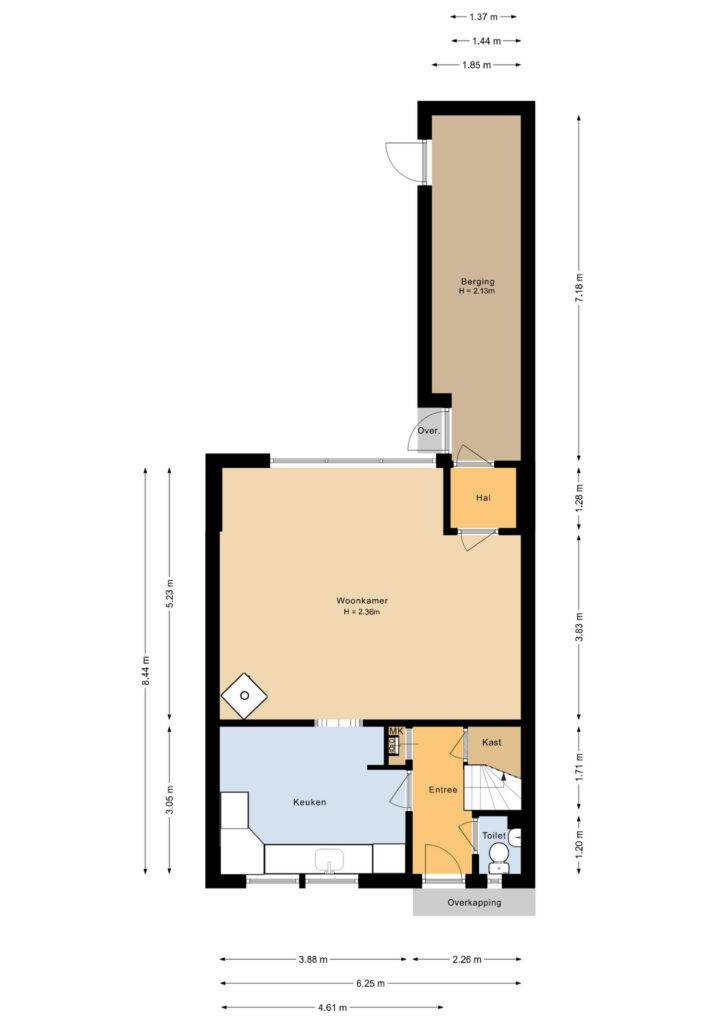
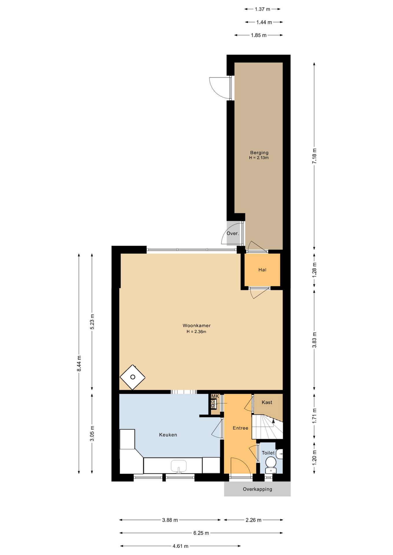
Indeling;

Begane grond:

Entree, hal, toilet met fonteintje, trapkast, dichte keuken in L-opstelling, ruime en lichte woonkamer (ca. 33 m²) met sfeervolle houtkachel, tussenhal, berging (ca. 13 m²) met toegang naar de achtertuin.

Eerste verdieping:

Overloop, slaapkamer 1 (ca. 14 m²), slaapkamer 2 (ca. 11 m²), slaapkamer 3 (ca. 10 m²), badkamer voorzien van wastafel, toilet, douchecabine en natuurlijke ventilatie.

Tweede verdieping:

Royale ruimte (ca. 32 m²) voorzien van dakraam en met opstelling CV-ketel en wassen/drogen. Toegang tot de vliering.
Van deze ruimte maakt u eenvoudig twee slaapkamers. Tevens is er aan de achterzijde een dakkapel mogelijk.

Tuin:

De voortuin ligt op het westen, parkeren doet u eenvoudig met twee auto's op eigen terrein.
De achtertuin (9x4 meter) ligt op het oosten, hier kunt u heerlijk genieten van de ochtend- en middagzon. Tevens een poort naar achterom.

Bijzonderheden:

* Energielabel B;
* Volledig geïsoleerd;
* Douchecabine is geplaatst in 2024;
* CV-ketel van 2015 (eigendom);
* Parkeren op eigen terrein, plek voor twee auto's;
* Mogelijkheid voor een vijfde slaapkamer op de tweede verdieping;
* Bouwjaar 1983;
* Woonoppervlakte circa 124 m²;
* Perceeloppervlakte 155 m².

Lees de volledige omschrijving

Contact en info

Heb je vragen over deze woning of wil je een bezichtiging inplannen? Neem dan gerust contact met ons op, we helpen je graag verder!

Plan een bezichtiging

Kenmerken

Overdracht
Status
Verkocht
Koopprijs
€ 350.000,-
Aanvaarding
In overleg
Woonoppervlakte
124 m2
Inhoud
481 m3
Bouwvorm
Soort object
Woonhuis
Type woning
Tussenwoning
Soort
Eengezinswoning
Bouwjaar
1983
Bouwvorm
Bestaande bouw
Ligging
In woonwijk
Overdracht
Woonoppervlakte
124 m2
Perceel oppervlakte
155 m2
Inhoud
481 m3
Aantal kamers
5
Aantal slaapkamers
4
Energie
Energieklasse
B
Isolatievormen
Dakisolatie, Muurisolatie, Vloerisolatie, Dubbelglas
Verwarming
CV ketel, Houtkachel
Bouwjaar
2015
Buitenruimte
Tuin
Achtertuin, Voortuin
Hoofdtuin
Achtertuin
Hoofdtuin oppervlakte
36 m2
Positie
Oost
Achterom
Ja
Kwaliteit
Normaal
Bergruimte
Soort
Aangebouwd hout
Parkeergelegenheid
Garage
Geen garage
Parkeer faciliteiten
Openbaar parkeren, Op eigen terrein
Dak
Soort dak
Zadeldak
Kwaliteit dak
Pannen
Voorzieningen
Voorzieningen
TV kabel, Rookkanaal, Dakraam, Glasvezel kabel, Natuurlijke ventilatie
Overig
Permanente bewoning
Ja
Onderhoud binnen
Goed
Onderhoud buiten
Goed
Huidig gebruik
Woonruimte
Huidige bestemming
Woonruimte
Bekijk alle specificaties

Interesse of meer weten?

Leuk dat je geïnteresseerd bent in deze woning! Als erkende makelaar staan wij voor je klaar om al je vragen te beantwoorden en om een bezichtiging in te plannen.

bureauhanze

    Met het versturen van dit formulier ga je akkoord met onze gebruiksvoorwaarden en privacybeleid.