Gentiaan 9
Algemene informatie
Omschrijving
Aan de Gentiaan 9 in Lelystad staat deze moderne en netjes afgewerkte tussenwoning, gelegen in de geliefde en jonge woonwijk Warande. Deze woning, gebouwd in 2022, combineert hedendaags wooncomfort met een zeer hoog energieniveau en is daarmee volledig voorbereid op de toekomst.
Bij binnenkomst valt direct de strakke en verzorgde afwerking op. De woning is volledig voorzien van kunststof kozijnen met HR+++ glas, wat niet alleen bijdraagt aan een moderne uitstraling maar ook zorgt voor optimale isolatie en wooncomfort. Dankzij het energielabel A+++ zijn de energielasten laag en woont u hier bijzonder duurzaam. Vrijwel de gehele woning is uitgerust met vloerverwarming, waarbij iedere ruimte afzonderlijk regelbaar is via een eigen thermostaat. Dit biedt maximaal comfort en flexibiliteit in elk seizoen.
De begane grond beschikt over een ruime en lichte woonkamer met een prettige indeling en grote raampartijen. De openslaande deuren naar de achtertuin zorgen voor een fijne verbinding tussen binnen en buiten en laten veel natuurlijk licht binnen. De moderne L-vormige keuken is uitgevoerd met een stijlvol composiet werkblad en voorzien van diverse inbouwapparatuur, waardoor koken hier zowel praktisch als plezierig is. De open opzet maakt deze ruimte uitermate geschikt voor gezellige diners en lange avonden met familie of vrienden.
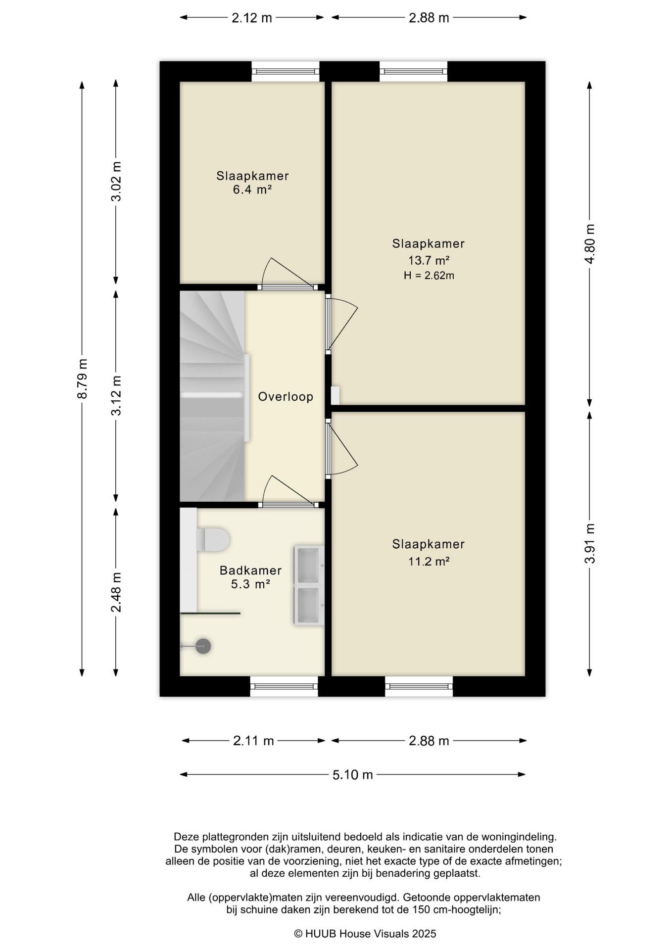
Op de eerste verdieping bevinden zich drie goed bemeten slaapkamers, allen comfortabel en licht. De moderne badkamer is eveneens op deze verdieping gesitueerd en is compleet uitgevoerd met een inloopdouche, dubbele wastafel met meubel, toilet en een designradiator. Zowel natuurlijke als mechanische ventilatie zorgen hier voor een prettig en gezond binnenklimaat.
De tweede verdieping biedt een ruime vierde slaapkamer met volop mogelijkheden. Indien gewenst kan hier eenvoudig een vijfde slaapkamer worden gerealiseerd, evenals een extra badkamer. Deze verdieping is daarmee ideaal voor grotere gezinnen, thuiswerken of het creëren van een luxe master suite.
De achtertuin is circa 12 meter diep en 5 meter breed en ligt op het noordwesten. Hierdoor kunt u hier volop genieten van de middag- en avondzon. De tuin biedt voldoende ruimte voor meerdere zitplekken en is een heerlijke plek om tot rust te komen. Achter op het perceel bevindt zich een vrijstaande houten berging en via de poort is er een praktische achterom aanwezig. Daarnaast beschikt de woning over een eigen privéparkeerplaats, wat het woongenot compleet maakt.
Kortom, Gentiaan 9 is een instapklare, energiezuinige woning op een fijne locatie, ideaal voor wie modern, comfortabel en toekomstbestendig wil wonen in Lelystad.
"Nu bieden vanaf € 475.000,- k.k.. De gestelde vraagprijs betreft een "bieden vanaf prijs". Biedingen vanaf € 475.000,- k.k. zullen door verkoper in behandeling genomen worden".
Indeling;
Begane grond:
Entree, hal, modern toilet met fonteintje, ruime en lichte woonkamer (ca. 26 m²) met openslaande deuren naar de achtertuin, moderne L-vormige keuken voorzien van diverse inbouwapparatuur en composiet werkblad.
De begane grond is voorzien van een fraaie PVC-vloer met vloerverwarming
Eerste verdieping:
Overloop, slaapkamer 1 (ca. 14 m²), slaapkamer 2 (ca. 11 m²), slaapkamer 3 (ca. 6 m²), moderne badkamer voorzien van toilet, dubbele wastafel met meubel, inloopdouche, designradiator en natuurlijke/mechanische ventilatie.
De eerste verdieping is voorzien van een fraaie PVC-vloer met vloerverwarming.
Tweede verdieping:
Zeer ruime vierde slaapkamer (ca. 40 m²), aparte was-/droogruimte.
De tweede verdieping is voorzien van fraaie PVC-vloer.
Tuin:
De voortuin ligt op het zuidoosten en is volledig betegeld.
De ruime achtertuin (12 x 5 meter) is gelegen op het noordwesten en is grotendeels betegeld. Hier kunt u heerlijk genieten van de middag/avondzon.
Achterop het perceel treft u aan de vrijstaande houten berging (ca. 6 m²), tevens poort naar achterom en privé parkeerplaats.
Bijzonderheden:
* Energielabel A+++;
* De woning is volledig geïsoleerd, volledig kunststof kozijnen inclusief HR+++ glas;
* 11 zonnepanelen (eigendom);
* Elke kamer heeft zijn eigen thermosstaat;
* De woning is aangesloten op de stadsverwarming, volledig gasloos;
* Op de tweede verdieping is er momenteel één slaapkamer, hier kan eventueel een tweede slaapkamer en badkamer aan gerealiseerd worden;
* Op de tweede verdieping is een leiding aanwezig voor eventuele extra verwarming;
* Aan de achterzijde heeft u een parkeerplaats op eigen terrein, alsmede openbare parkeerplaatsen voor gasten;
* Diverse voorzieningen zoals de supermarkt, huisartsenpraktijk en kinderopvang liggen op loopafstand;
* Bouwjaar 2022;
* Woonoppervlakte circa 135 m²;
* Perceeloppervlakte 129 m².
Contact en info
Heb je vragen over deze woning of wil je een bezichtiging inplannen? Neem dan gerust contact met ons op, we helpen je graag verder!
Plan een bezichtigingKenmerken
Interesse of meer weten?
Leuk dat je geïnteresseerd bent in deze woning! Als erkende makelaar staan wij voor je klaar om al je vragen te beantwoorden en om een bezichtiging in te plannen.