Ganzendiep 19

8223 DL Lelystad
€ 265.000,- k.k.
4kamers
113 m2wonen
144 m2perceel

Algemene informatie

Aanvaarding
In overleg
Type woning
Tussenwoning
Energieklasse
C

Omschrijving

Ruime 5-kamer woning met stenen berging, nagenoeg volledig voorzien van kunststof ramen met HR ++ beglazing, gelegen op een perceel van 144 m² eigen grond. De woning is voorzien van een nette keuken (2023), een keurige badkamer (2017) en beschikt over een royale achtertuin op het westen. Op de tweede verdieping bevindt zich een ruime vierde slaapkamer over de hele breedte, samen met een aparte was- en stookruimte. Kortom, een comfortabele woning met veel leefruimte!

Op een mooie locatie, in één van de oudere woonwijken aan de rand van Lelystad, nabij bos en wandelgebied zowel als de supermarkt, basisscholen en overige voorzieningen.

"Nu bieden vanaf € 265.000,- k.k.. De gestelde vraagprijs betreft een "bieden vanaf prijs". Biedingen vanaf € 265.000,- k.k. zullen door verkoper in behandeling genomen worden".

Indeling
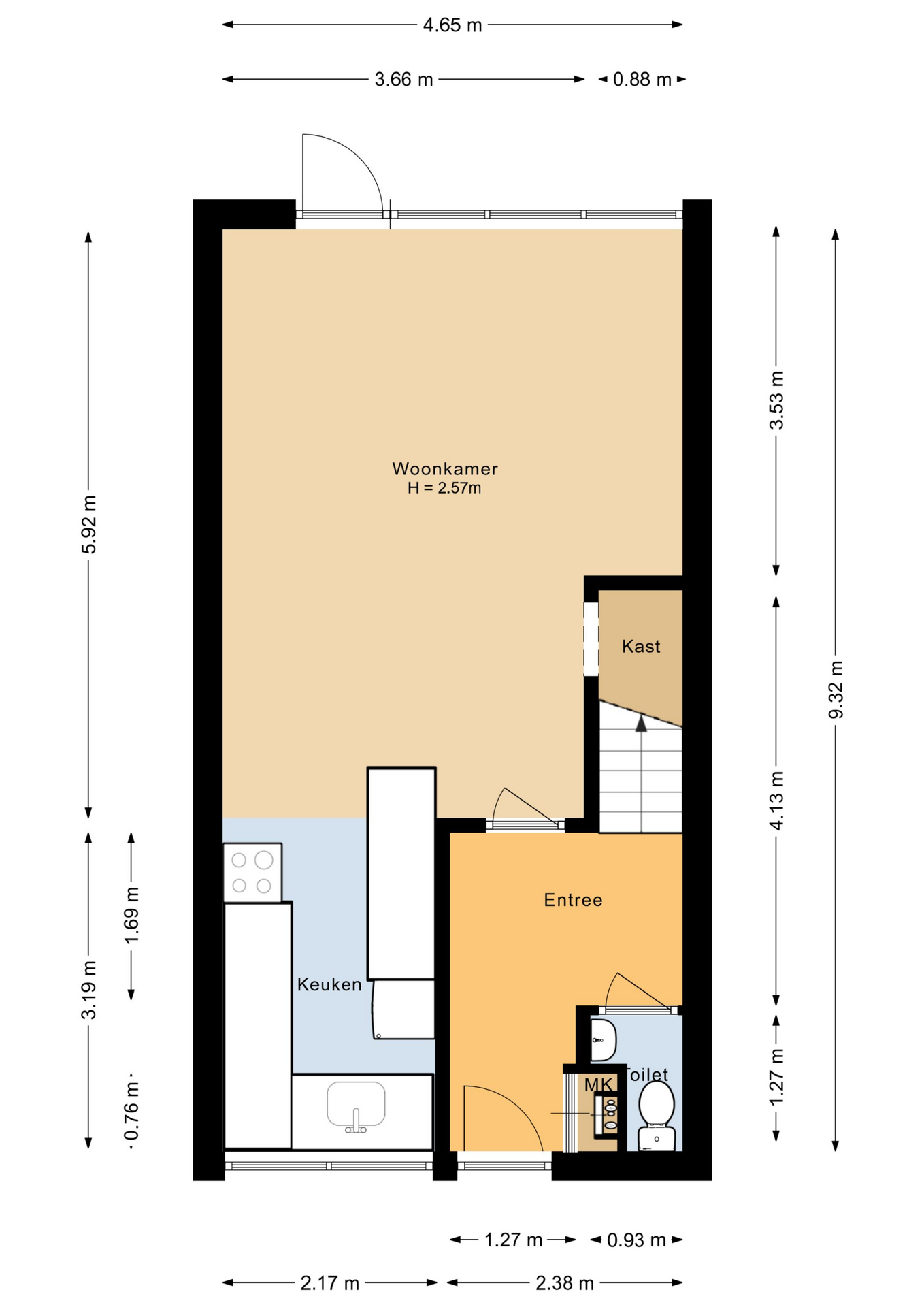
Begane grond: Entree; hal met meterkast, toilet en trapopgang; doorgang naar de woonkamer en keuken v.v. gasfornuis en afzuigkap, koelkast, vriezer, vaatwasser en boiler voor het warme water. De woonkamer is tuingericht met grote raamkozijnen (veel daglicht!) en een loopdeur naar de west-gelegen achtertuin.

Eerste verdieping: Overloop; drie slaapkamers (resp. ca. 16,5m², 8,5m² en 5,8m²); badkamer v.v. volledige betegeling, inloopdouche, toilet en wastafelmeubel.

Tweede verdieping: Ruime verdieping met overloop, aparte ruimte voor de CV-ketel (2012) en de wasmachine aansluiting; ruime vierde slaapkamer van ca. 15m²; toegang tot het dakterras op het westen van ca. 12m²

Tuin: Heerlijk ruime tuin op het zonnige westen van ca. 12,5mtr. x 5,0mtr. met veel privacy v.v. een gazon, terras, plantvakken en een overkapping waar je lekker in de schaduw kan zitten.

Bijzonderheden:
* Nagenoeg volledig voorzien van kunststof ramen met HR++ beglazing;
* Dakbedekking is in 2013 vervangen;
* Nette keuken (2023) en badkamer (2017);
* Cv-ketel uit 2012 (eigendom);
* Tuin op het zonnige westen;
* Energielabel C;
* Vloerisolatie;
* Stenen berging aan de voorzijde;
* Supermarkt en basisscholen op korte afstand bereikbaar;
* Bouwjaar: 1972;
* Perceeloppervlakte: 144 m²;
* Woonoppervlakte: 113 m²;
* Inhoud: 366 m³.

Oplevering eind juni 2025.

Lees de volledige omschrijving

Contact en info

Heb je vragen over deze woning of wil je een bezichtiging inplannen? Neem dan gerust contact met ons op, we helpen je graag verder!

Plan een bezichtiging

Kenmerken

Overdracht
Status
Verkocht
Koopprijs
€ 265.000,-
Aanvaarding
In overleg
Woonoppervlakte
113 m2
Inhoud
366 m3
Bouwvorm
Soort object
Woonhuis
Type woning
Tussenwoning
Soort
Eengezinswoning
Bouwjaar
1972
Bouwvorm
Bestaande bouw
Ligging
Aan rustige weg, In woonwijk, In bosrijke omgeving
Overdracht
Woonoppervlakte
113 m2
Perceel oppervlakte
144 m2
Inhoud
366 m3
Aantal kamers
5
Aantal slaapkamers
4
Energie
Energieklasse
C
Isolatievormen
Vloerisolatie, HR glas
Verwarming
CV ketel
Bouwjaar
2012
Buitenruimte
Tuin
Achtertuin, Voortuin
Hoofdtuin
Achtertuin
Hoofdtuin oppervlakte
61 m2
Positie
West
Achterom
Ja
Kwaliteit
Verzorgd
Bergruimte
Soort
Vrijstaand steen
Isolatievormen
Geen isolatie
Parkeergelegenheid
Garage
Geen garage
Parkeer faciliteiten
Openbaar parkeren
Dak
Soort dak
Plat dak
Kwaliteit dak
Bitumineuze Dakbedekking
Voorzieningen
Voorzieningen
TV kabel, Glasvezel kabel, Natuurlijke ventilatie
Overig
Permanente bewoning
Ja
Onderhoud binnen
Redelijk
Onderhoud buiten
Redelijk
Huidig gebruik
Woonruimte
Huidige bestemming
Woonruimte
Bekijk alle specificaties

Interesse of meer weten?

Leuk dat je geïnteresseerd bent in deze woning! Als erkende makelaar staan wij voor je klaar om al je vragen te beantwoorden en om een bezichtiging in te plannen.

bureauhanze

    Met het versturen van dit formulier ga je akkoord met onze gebruiksvoorwaarden en privacybeleid.