Ereprijs 6
Algemene informatie
Omschrijving
Welkom bij deze prachtige en indrukwekkende vrijstaande woning, gelegen in de gewilde en jonge woonwijk Warande. Dit moderne en duurzame huis straalt luxe en comfort uit, waarbij er door de huidige eigenaren duidelijk kosten noch moeite zijn gespaard om het tot een werkelijk droomhuis te maken.
Bij binnenkomst wordt direct duidelijk dat deze woning tot in de puntjes verzorgd is. De ruime indeling en het hoge afwerkingsniveau vallen meteen op. De woning is uitstekend geïsoleerd, met het prestigieuze energielabel A++++, en is volledig toekomstbestendig. De woning is voorzien van een warmtepomp, WTW-installatie, triple glas en beschikt in zijn geheel over vloerverwarming, wat zorgt voor een aangenaam binnenklimaat, zowel in de winter als in de zomer.
De luxe keuken is een droom voor iedere kookliefhebber, met hoogwaardige apparatuur (Miele) en een centraal kookeiland dat zowel praktisch als stijlvol is. Het kookeiland biedt voldoende werkruimte en vormt het hart van de keuken, waar u samen kunt koken, eten en ontspannen. De royale aangebouwde serre is een heerlijke toevoeging aan het woongedeelte en biedt een perfecte plek om het hele jaar door van het buitenleven te genieten. De serre zorgt voor extra lichtinval en een prachtige verbinding tussen binnen en buiten. De tuin rondom de woning is onderhoudsarm aangelegd, zodat u optimaal kunt genieten zonder veel werk te hoeven verrichten. De woning beschikt over vier ruime slaapkamers, elk met een prettige lichtinval en voldoende ruimte voor kasten of andere meubels. De moderne badkamer is afgewerkt met luxe materialen en biedt alle comfort die u mag verwachten, zoals een inloopdouche en hoogwaardige sanitair. Daarnaast is er een aparte ruimte voor de wasmachine, droger en de warmtepomp, waardoor deze essentiële voorzieningen netjes uit het zicht blijven. Een van de vele unieke aspecten van deze villa is de vrijstaande garage, die niet alleen ruimte biedt voor het parkeren van voertuigen, maar ook is uitgerust met een ruime doucheruimte en toilet. Dit maakt de ruimte multifunctioneel en geschikt voor extra verblijfsruimte of bijvoorbeeld het gebruik als kantoor aan huis.
De woning is bovendien uitgerust met maar liefst 30 zonnepanelen, wat bijdraagt aan de energiebesparing en duurzaamheid van de woning. Dit maakt de woning niet alleen comfortabel, maar ook uiterst energiezuinig. De ligging in de populaire wijk Warande biedt de perfecte balans tussen rust, natuur en het gemak van voorzieningen in de nabijheid. De groene omgeving en het moderne karakter van de wijk maken het een geliefde locatie voor gezinnen en stellen die op zoek zijn naar een hoogwaardige leefomgeving.
Kortom: Ereprijs 6 is een woning die op alle vlakken uitblinkt. Met zijn luxe afwerking, moderne voorzieningen en duurzame karakter is dit een woning waar u direct verliefd op wordt!
"Nu bieden vanaf € 725.000,- k.k.. De gestelde vraagprijs betreft een "bieden vanaf prijs". Biedingen vanaf € 725.000,- k.k. zullen door verkoper in behandeling genomen worden".
Indeling;
Begane grond:
Entree/hal met de meterkast, moderne toiletruimte, hardhouten trapopgang naar de verdieping en toegang naar de keuken/woonkamer. Een schitterende en sfeervolle woonkamer (ca. 35 m2) van maar liefst 7,20 meter breed en voorzien een grote schuifpui met grote raampartij die toegang geeft tot de aangebouwde en geïsoleerde serre (ca. 18 m2). Hier kunt u heerlijk vertoeven op elk gewenst moment van de dag! Aan de voorzijde bevindt zich de luxe keuken met kookeiland, welke voorzien is van de volgende apparatuur; koelkast, vriezer, vaatwasser, stoomoven, oven, wijnkoeler, koffiezetapparaat, frituur (met afzuigkap) en een 4-pits inductiekookplaat met een geïntegreerde afzuigkap. Ruime opstelmogelijkheden voor een grote eettafel waar u heerlijk met uw familie kunt dineren. Aangrenzend treft u de praktische bijkeuken met een 2e keukenblok, kastenwand en een deur naar de oprit en voortuin. De begane grond is voorzien van gladde wandafwerking, strakke plafonds met ingebouwde spots en een fraaie tegelvloer met vloerverwarming.
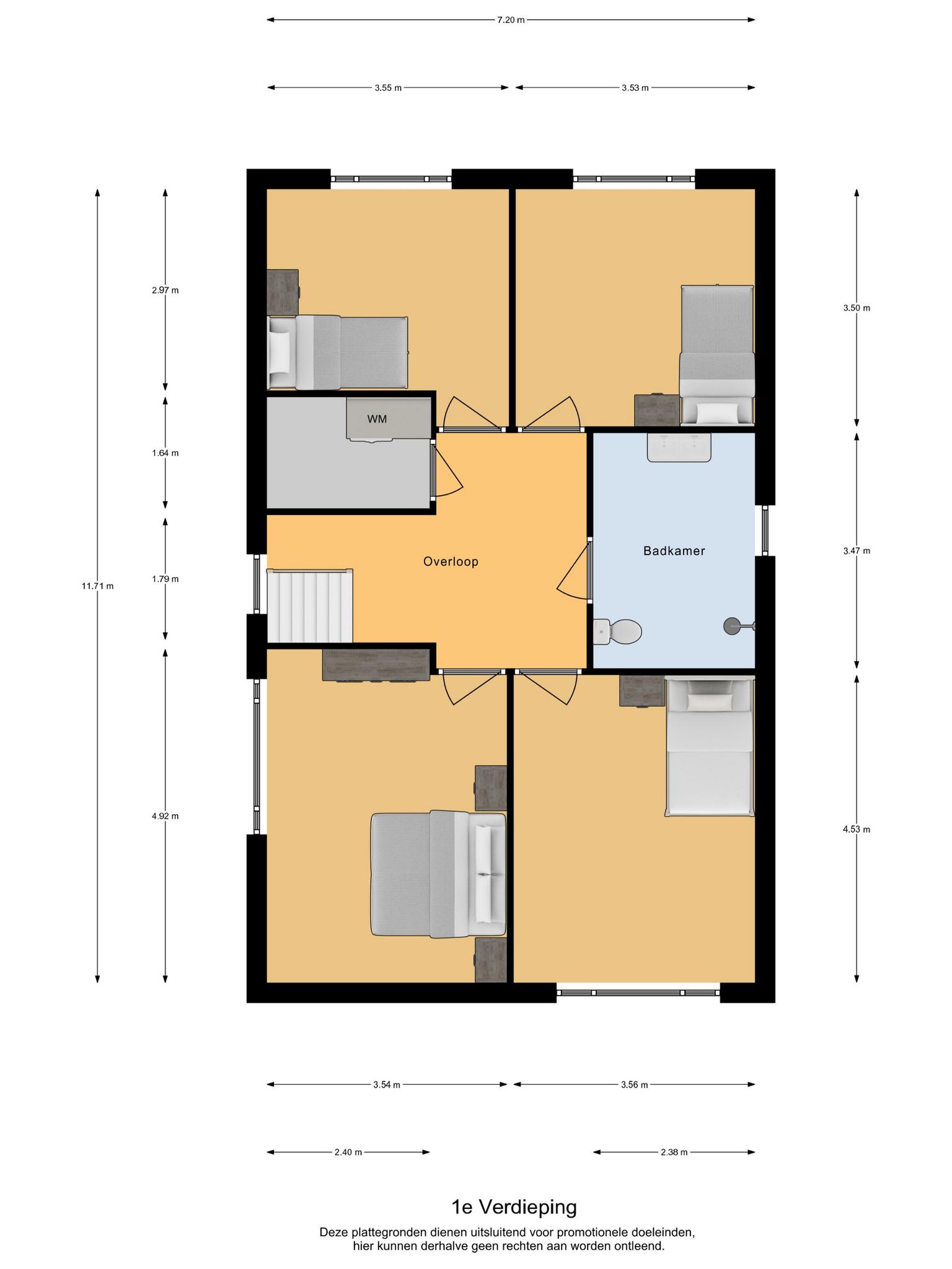
1e Verdieping:
Overloop met een fraaie open vide en toegang tot 4 ruime slaapkamers (ca. 17 / 16 / 12 / 11 m2). De moderne badkamer is voorzien van een inloopdouche, wastafelmeubel met dubbele kraan, een 2e toilet, vloerverwarming en een raam voor de natuurlijke ventilatie. Technische ruimte met de warmtepomp, WTW-installatie, de wasmachine en droger aansluiting en veel praktische bergruimte. De verdieping is voorzien van gladde wandafwerking, strakke plafonds en een fraaie PVC-vloer met vloerverwarming.
Garage:
Een riante (geïsoleerde) garage van maar liefst 30 m2 met openslaande deuren aan de voorzijde en een toegangsdeur aan de tuinzijde. De garage is van binnen afgewerkt met een tegelvloer met vloerverwarming en tevens voorzien van ruime douche en toilet.
Tuin:
De fraai aangelegde tuin is voorzien van een groot terras met bestrating, borders met beplanting, gevelkraan en wordt middels een poort aan de zijkant van de woning afgesloten. De tuin is onderhoudsarm aangelegd en geeft veel privacy!
* Op een schitterende locatie in de zeer gewilde wijk "De Warande" gelegen vrijstaande woning
* De woning is onder architectuur gebouwd met een zeer hoog afwerkingsniveau!
* De woning is voorzien van 4 ruime slaapkamers en een vrijstaande garage voorzien van een ruime douche en toilet
* Zeer luxe woonkeuken met alle denkbare voorzieningen en een moderne badkamer
* Er is een centrale stofzuiginstallatie aanwezig in de woning
* De woning is in zijn geheel voorzien van vloerverwarming en triple glas
* Voorzien van 30 zonnepanelen, type: Sun Power 375WP Full Black (P3)
* Parkeergelegenheid op eigen terrein en voldoende parkeergelegenheid in de directe omgeving
* Er is een laadpaal onder de carport aanwezig voor de elektrische auto (ter overname)
* Gelegen nabij een grote supermarkt, gezondheidscentrum, basisschool, uitvalswegen en de Oostvaardersplassen
* Er is veel natuur in de omgeving en het strandje 't Oppertje ligt op fietsafstand
* Voorzien van een warmtepomp en een WTW-installatie - toekomstbestendig en gasloos!
* Woonoppervlak: 184 m2
* Kaveloppervlak: 345 m2 eigen grond
* Bouwjaar: 2021
* Energielabel: A++++
Aanvaarding in overleg.
Contact en info
Heb je vragen over deze woning of wil je een bezichtiging inplannen? Neem dan gerust contact met ons op, we helpen je graag verder!
Plan een bezichtigingKenmerken
Interesse of meer weten?
Leuk dat je geïnteresseerd bent in deze woning! Als erkende makelaar staan wij voor je klaar om al je vragen te beantwoorden en om een bezichtiging in te plannen.