Botter 19 3

8232 JE Lelystad
€ 350.000,- k.k.
3kamers
103 m2wonen
167 m2perceel

Algemene informatie

Aanvaarding
In overleg
Type woning
Tussenwoning
Energieklasse
A

Omschrijving

Op een heerlijke plek in de gewilde en kindvriendelijke woonwijk “Botter” gelegen eengezinswoning met 3 ruime slaapkamers, een fraaie inbouwkeuken, een moderne badkamer en een keurig aangelegde tuin met aluminium overkapping. De woning is gelegen in een rustige straat, beschikt over een vrijstaande stenen berging en is volledig voorzien van kunststof kozijnen met HR+ beglazing, 11 zonnepanelen, 2 airco's en heeft een energielabel A! Dankzij de vrije ligging geniet u van extra privacy en er is ruime parkeergelegenheid direct naast de woning. Deze woning is gebouwd in 1978, is goed onderhouden en gemoderniseerd vanaf 2019 tot heden. De woning is gesitueerd op een perceel van 167 m² eigen grond en biedt met een woonoppervlakte van 103 m² een heerlijk ruim (t)huis voor uw gezin of familie!

Wonen in de Botter betekent wonen met vrijwel alle denkbare voorzieningen op loop- of fietsafstand. Binnen enkele minuten bereikt u meerdere buurtwinkelcentra (De Botter en De Tjalk), een gezondheidscentrum én het complete stadscentrum van Lelystad met alle bijbehorende stedelijke voorzieningen zoals het NS-station.

Kortom: een instapklare en energiezuinige gezinswoning op een aantrekkelijke locatie aan de rand van de gewilde woonwijk De Botter.

"Nu bieden vanaf € 350.000,-. De gestelde vraagprijs betreft een "bieden vanaf prijs". Biedingen vanaf € 350.000,- zullen door verkoper in behandeling genomen worden".

Indeling:
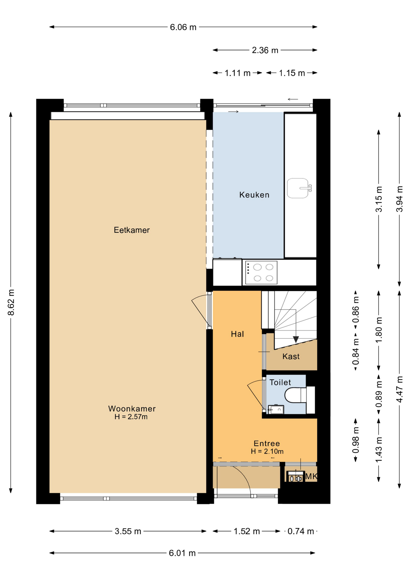
Begane grond:
Ruime entree/hal met de meterkast, toiletruimte met fonteintje, trapopgang naar de verdieping, praktische trapkast en toegang tot de woonkamer. De heerlijke ruime en lichte woonkamer (ca. 31 m²) beschikt over grote raampartijen, wat zorgt voor een prettige lichtinval, en is voorzien van airconditioning voor zowel het verwarmen als koelen van de ruimte. De woonkamer is afgewerkt met een fraaie tegelvloer.

Aan de achterzijde bevindt zich de luxe en compleet uitgevoerde inbouwkeuken (2019) in hoekopstelling, voorzien van het volgende inbouwapparatuur: vaatwasser, combi-oven (2023), inductiekookplaat (2025), afzuigkap, koelkast, vriezer en biedt veel werk- en bergruimte. Direct grenzend aan de keuken is er ruime opstelmogelijkheid voor een grote eettafel. Door deze opstelling vormt de eettafel het hart van de woonkamer, een fijne plek om te dineren en na te tafelen met vrienden en familie. Via de keuken bereikt u middels een schuifpui de achtertuin.

Eerste verdieping:
Overloop met de opstelplaats van de cv-ketel (2025) en toegang tot een praktische inloopkast. Vanuit de overloop bereikt u de drie ruime slaapkamers (ca. 14 / 12 / 9 m²), waarbij de grote slaapkamer is voorzien van comfortabele airconditioning. De moderne badkamer (2019) is compleet uitgevoerd met een inloopdouche, tweede toilet, wastafelmeubel met toiletkast, wasmachine-/drogeraansluiting, designradiator en een raam met ventilatieroosters voor natuurlijke ventilatie. De verdieping is voorzien van een keurige laminaatvloer.

Achtertuin:
De achtertuin is fraai aangelegd en vrij gelegen, met een goede verdeling tussen moderne bestrating en beplanting, een grote aluminium overkapping en een vrijstaande stenen berging. De tuin grenst direct aan een speelveldje, wat zorgt voor een ruimtelijk en open gevoel, veel privacy en een rustige ligging. De achterzijde is te bereiken via een praktische achterom.

* Prachtig afgewerkte eengezinswoning in de gewilde en kindvriendelijke woonwijk de "Botter";
* De woning is in 2019 voorzien van een nieuwe inbouwkeuken en badkamer;
* Volledig uitgevoerd met kunststof kozijnen met HR+-beglazing;
* Voorzien van 11 zonnepanelen (2018) en airconditioning;
* Moderne groepenkast;
* Cv-ketel vernieuwd in oktober 2025 (Intergas HRE, eigendom);
* Fraai aangelegde achtertuin met aluminium overkapping, vrijstaande stenen berging en een achterom;
* Vrije en rustige ligging aan de achterzijde met veel privacy, direct grenzend aan een speelveldje;
* Woonoppervlak: 103 m2;
* Perceeloppervlak: 167 m2 eigen grond;
* Bouwjaar: 1978;
* Energielabel: A!

Oplevering in overleg.

Lees de volledige omschrijving

Contact en info

Heb je vragen over deze woning of wil je een bezichtiging inplannen? Neem dan gerust contact met ons op, we helpen je graag verder!

Plan een bezichtiging

Kenmerken

Overdracht
Status
Verkocht o.v.
Koopprijs
€ 350.000,-
Aanvaarding
In overleg
Woonoppervlakte
103 m2
Inhoud
348 m3
Bouwvorm
Soort object
Woonhuis
Type woning
Tussenwoning
Soort
Eengezinswoning
Bouwjaar
1978
Bouwvorm
Bestaande bouw
Ligging
Aan rustige weg, In woonwijk, Vrij uitzicht
Overdracht
Woonoppervlakte
103 m2
Perceel oppervlakte
167 m2
Inhoud
348 m3
Aantal kamers
4
Aantal slaapkamers
3
Energie
Energieklasse
A
Isolatievormen
Dakisolatie, Muurisolatie, HR glas
Verwarming
CV ketel
Bouwjaar
2025
Buitenruimte
Tuin
Achtertuin, Voortuin
Hoofdtuin
Achtertuin
Hoofdtuin oppervlakte
85 m2
Positie
Noord
Achterom
Ja
Kwaliteit
Fraai aangelegd
Bergruimte
Soort
Vrijstaand steen
Voorzieningen
Voorzien van elektra
Isolatievormen
Dubbelglas
Parkeergelegenheid
Garage
Geen garage
Voorzieningen
Voorzien van elektra
Parkeer faciliteiten
Openbaar parkeren
Dak
Soort dak
Plat dak
Kwaliteit dak
Bitumineuze Dakbedekking
Voorzieningen
Voorzieningen
Airconditioning, Schuifpui, Glasvezel kabel, Zonnepanelen, Natuurlijke ventilatie
Overig
Permanente bewoning
Ja
Onderhoud binnen
Goed tot uitstekend
Onderhoud buiten
Goed tot uitstekend
Huidig gebruik
Woonruimte
Huidige bestemming
Woonruimte
Bekijk alle specificaties

Interesse of meer weten?

Leuk dat je geïnteresseerd bent in deze woning! Als erkende makelaar staan wij voor je klaar om al je vragen te beantwoorden en om een bezichtiging in te plannen.

bureauhanze

    Met het versturen van dit formulier ga je akkoord met onze gebruiksvoorwaarden en privacybeleid.