Bongerd 164
Algemene informatie
Omschrijving
Aan de buitenrand van een rustige, groene en kindvriendelijke woonomgeving ligt deze sfeervolle geschakelde 2-onder-1-kapwoning, met een voormalige garage die is verbouwd tot kantoorruimte, twee bergingen, een over de volle breedte uitgebouwde, lichte woonkamer van circa 37 m² met een open haard, een zonnig dakterras aan de westzijde, gedeeltelijk kunststof kozijnen met HR++ beglazing, een heerlijke tuin én parkeergelegenheid voor 2 auto's op eigen terrein. Deze woning staat op twee royale percelen van in totaal 380 m² eigen grond en biedt met een woonoppervlak van 177 m² een heerlijk (t)huis met volop ruimte en mogelijkheden!
De woning is gelegen in een kindvriendelijk hofje en geniet aan zowel de voor- als achterzijde veel privacy, zonder directe inkijk van omliggende woningen. De prachtige, zonnige achtertuin ligt op het westen, is voorzien van een grote overkapping, een tuinhuis (voorheen in gebruik als atelier) en grenst bovendien aan een achterpad. Hier kunt u heerlijk in alle privacy tot rust komen!
De locatie is ideaal: u woont op loop-/ fietsafstand van onder andere AH Voorhof, een tweetal basisscholen en een kinderopvang. Tevens ligt de wijk nabij het bosgebied "Gelderse Hout" en slechts op enkele minuten van de in- en uitvalswegen van Lelystad richting Amsterdam / Groningen en de N302 richting Harderwijk. Ook het openbaar vervoer is wandelend goed bereikbaar.
Gaat u voor ruimte, comfort en privacy? Dan is deze woning zeker een bezoek waard!
"Nu bieden vanaf € 425.000,- k.k.. De gestelde vraagprijs betreft een "bieden vanaf prijs".
Biedingen vanaf € 425.000,- k.k. zullen door verkoper in behandeling genomen worden.
Indeling:
Begane grond:
Entree/hal met meterkast, toilet (2014), vaste kast, trapkast, garderobe en trapopgang naar de eerste verdieping. Vanuit de hal is binnendoor toegang tot de voormalige garage, die is voorzien van een kunststof pui en is omgebouwd tot een geïsoleerde en verwarmde kantoorruimte. Vanuit het kantoor is tevens de berging bereikbaar.
Aan de voorzijde van de woning bevindt zich de keurige hoekkeuken, waar u dankzij de gunstige ligging geniet van een vrij uitzicht. De keuken is ingericht met een koel-vriescombinatie (2024), Siemens vaatwasser (2018), een inductiekookplaat met 5 kookzones (2022), afzuigkap en combimagnetron. De uitgebouwde, tuingerichte woonkamer beschikt over een sfeervolle open haard, airconditioning en een brede schuifpui naar de zonnige en groene tuin. Dankzij de uitbouw en de grote raampartijen geniet de woonkamer van veel lichtinval. De gehele begane grond is afgewerkt met een leistenen vloer, voorzien van vloerverwarming.
Eerste verdieping:
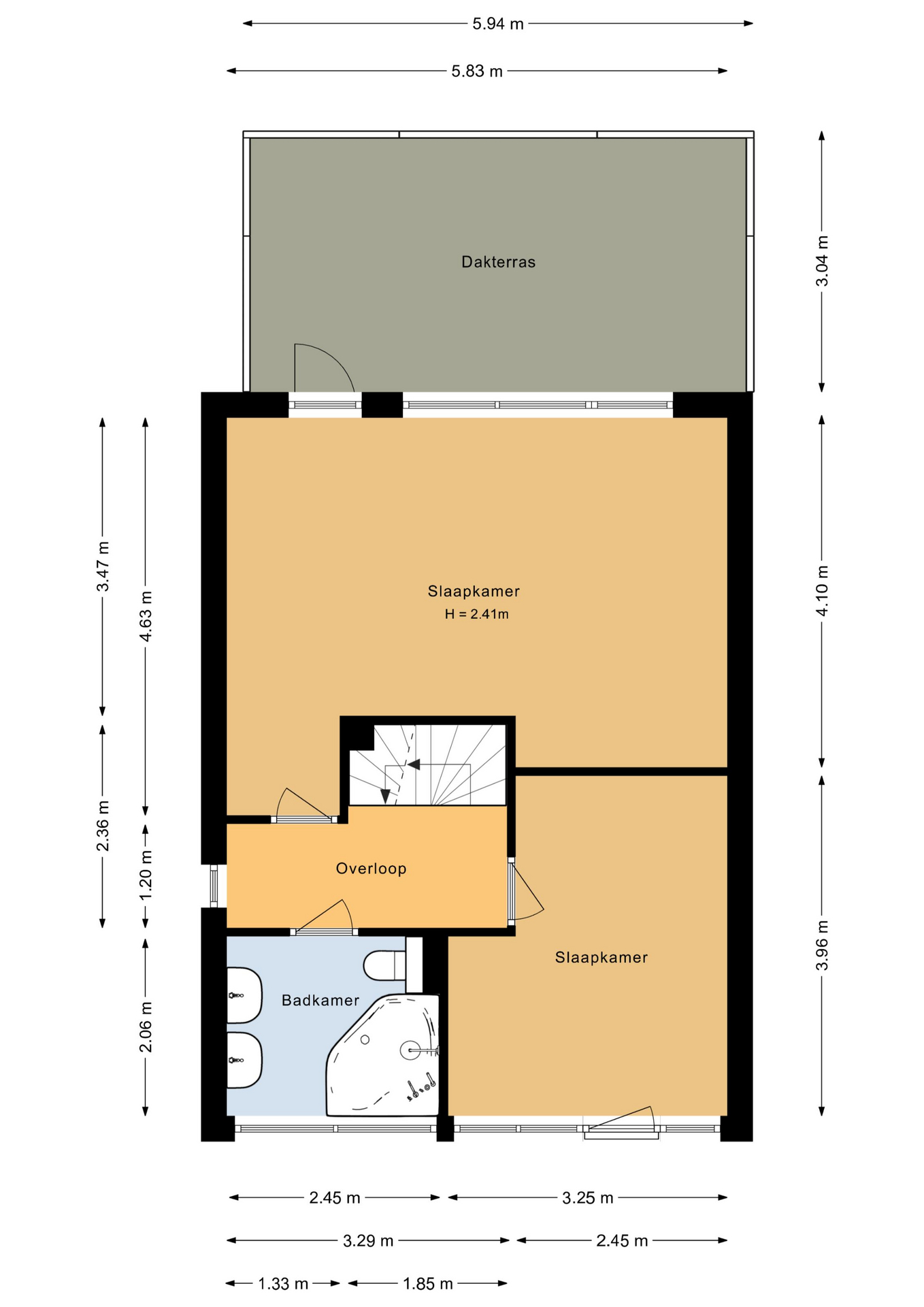
Lichte overloop met toegang tot twee ruime slaapkamers (ca. 24 / 11 m²), waaronder één royale slaapkamer over de volledige breedte van de woning en met een deur naar het zonnige dakterras gelegen op het westen. De slaapkamer aan de voorzijde beschikt over een charmant Frans balkon. De keurige en volledig betegelde badkamer is voorzien van inbouwspots en uitgevoerd met een hoekbad, dubbele wastafel, een tweede toilet, designradiator, mechanische ventilatie en een raam voor daglicht en natuurlijke ventilatie.
2e verdieping:
Ruime voorzolder dankzij een groot dakkapel aan de achterzijde voorzien van een elektrisch bedienbaar screen, welke zorgt voor extra lichtinval en een verrassend ruime indeling. Hier bevinden zich de aansluitingen voor wasmachine en droger, een wateraansluiting met wasbak, de opstelplaats van de cv-ketel en de mechanische ventilatie. Daarnaast is er veel bergruimte en een vliering aanwezig voor extra opslag. Vanaf de voorzolder is er toegang tot twee volwaardige slaapkamers (ca. 12 / 11 m²), beide met een prettige lichtinval en praktische indeling.
Tuin:
De woning beschikt over een fraaie voortuin en een prachtig aangelegde achtertuin die direct zorgen voor een warm welkom en een heerlijk gevoel van rust en privacy.
Aan de voorzijde bevindt zich een verzorgde voortuin en de ruime oprit met parkeergelegenheid voor 2 auto's op eigen terrein. De gezellige zitplek bij de entree, omringd door volwassen groen, biedt een charmant plekje om in de ochtendzon te genieten van een kop koffie of een praatje met de buren.
De achtertuin is het heerlijk vertoeven: een groene tuin met volwassen beplanting, sierbestrating, een elektrisch zonnescherm en meerdere terrassen waar u op elk moment van de dag een zonnige of juist schaduwrijke plek kunt vinden. De tuin is gelegen op het westen, waardoor u tot laat in de avond van de zon kunt genieten. Verder is er een ruime overkapping, een tuinhuis (voorheen in gebruik als atelier), biedt de tuin volop privacy en grenst aan een achterpad, wat het geheel extra praktisch maakt.
Bijzonderheden
* Aan de buitenrand van een rustige, groene en kindvriendelijke woonwijk gelegen geschakelde 2-onder-1-kapwoning;
* Uitgebouwde woonkamer (ca. 37 m²) met open haard, airconditioning, vloerverwarming en schuifpui naar de tuin;
* Voormalige garage omgebouwd tot geïsoleerde kantoorruimte met berging;
* Vier ruime slaapkamers, waarvan één met toegang tot zonnig dakterras (ca. 18 m²) op het westen;
* Voorzien van een keurige keuken en een nette badkamer;
* Gedeeltelijk kunststof kozijnen met HR++ beglazing en dakkapel aan de achterzijde;
* Buitenschilderwerk uitgevoerd door de jaren heen netjes bijgehouden;
* Heerlijke achtertuin op het westen met overkapping, tuinhuis (voorheen in gebruik als atelier), achterpad en veel privacy;
* Royale voortuin met oprit en parkeergelegenheid voor 2 auto’s op eigen terrein;
* Gelegen nabij alle dagelijkse voorzieningen, zoals een AH supermarkt, 2 basisscholen, kinderopvang en openbaar vervoer;
* Woonoppervlak: 177 m²;
* Kaveloppervlak: 380 m²;
* Bouwjaar: 1975;
* Energielabel: C.
Aanvaarding in overleg.
Contact en info
Heb je vragen over deze woning of wil je een bezichtiging inplannen? Neem dan gerust contact met ons op, we helpen je graag verder!
Plan een bezichtigingKenmerken
Interesse of meer weten?
Leuk dat je geïnteresseerd bent in deze woning! Als erkende makelaar staan wij voor je klaar om al je vragen te beantwoorden en om een bezichtiging in te plannen.