Archipel 44 15

8224 HV Lelystad
€ 385.000,- k.k.
4kamers
144 m2wonen
159 m2perceel

Algemene informatie

Aanvaarding
In overleg
Type woning
Tussenwoning
Energieklasse
C

Omschrijving

Archipel 44 15 – Ruime en verzorgde woning in groene, kindvriendelijke woonomgeving nabij het centrum van Lelystad

Welkom bij deze aantrekkelijke en ruime woning aan de Archipel 44 15 in Lelystad! Gelegen in een rustige en kindvriendelijke wijk met volop groen, woont u hier heerlijk beschut én met alle voorzieningen binnen handbereik. Op korte afstand vindt u onder andere scholen, winkelcentra, sportfaciliteiten en het stadshart van Lelystad. Daarnaast ligt de woning vrijwel direct tegen de bosrand aan, wat zorgt voor een rustige en natuurlijke woonomgeving.

De woning beschikt over een comfortabele woonoppervlakte van circa 144 m² en is gelegen op een perceel van 159 m². Zowel binnen als buiten is er volop ruimte, wat het huis uitermate geschikt maakt voor gezinnen of mensen die op zoek zijn naar extra leefruimte.

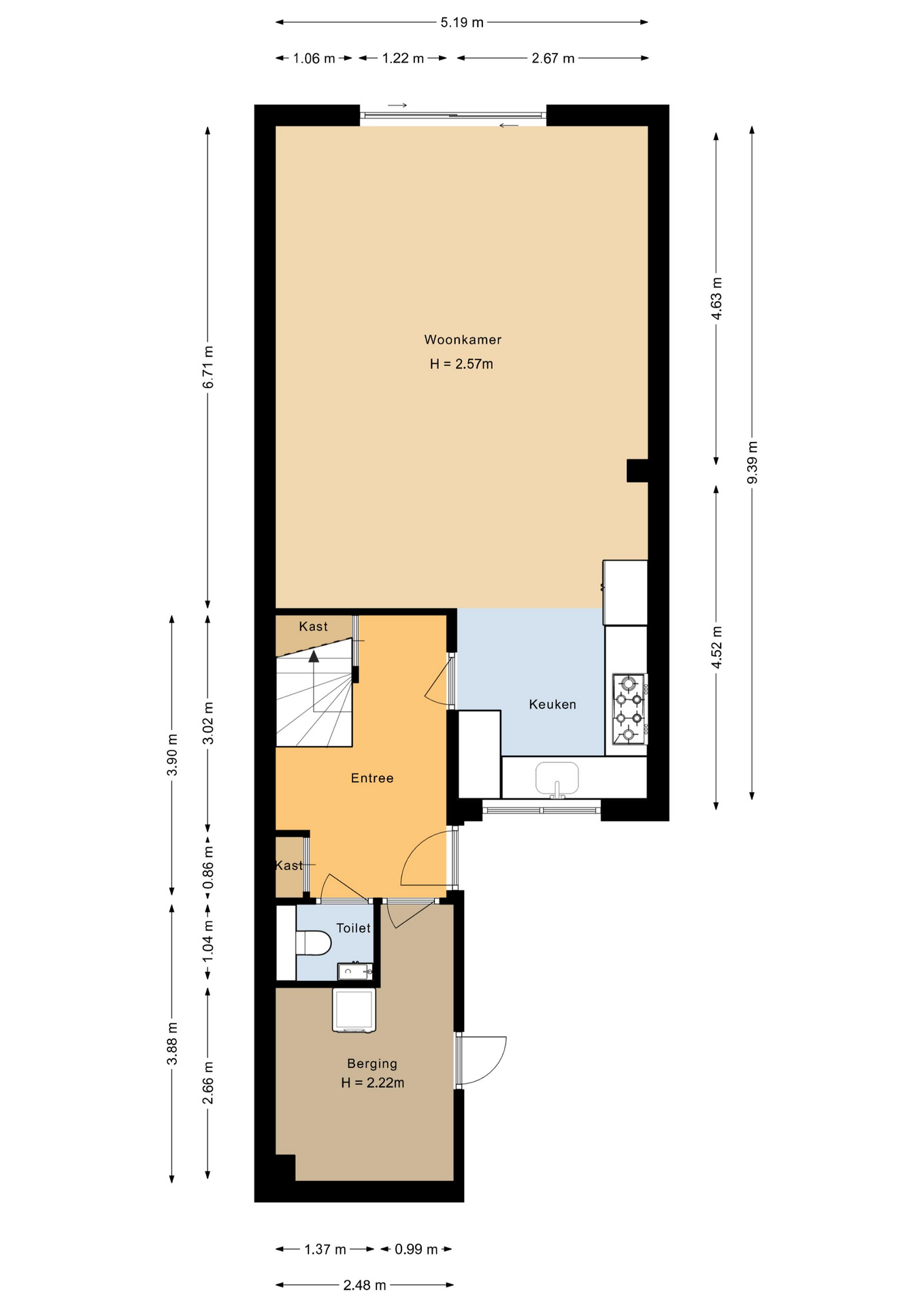
Bij binnenkomst valt direct de royale en lichte woonkamer op van circa 35 m², voorzien van een schuifpui naar de diepe achtertuin. Deze fijne buitenruimte van circa 15 meter diep en 5 meter breed is gelegen op het oosten, waardoor u in de ochtend en vroege middag heerlijk van de zon kunt genieten. Achter in de tuin staat een vrijstaande houten berging, ideaal voor het opbergen van fietsen, tuinmeubilair of gereedschap. De voortuin is op het westen gelegen, waardoor ook de avondzon niet aan u voorbijgaat.

De open keuken is in een praktische L-opstelling geplaatst en voorzien van diverse inbouwapparatuur. Vanuit de keuken is er prettig contact met de eet- en woonkamer, waardoor koken en samenzijn moeiteloos samengaan.

Op de eerste verdieping bevinden zich twee ruime slaapkamers en de moderne, compleet uitgevoerde badkamer. Deze is uitgerust met een inloopdouche, ligbad, tweede toilet en een dubbele wastafel met meubel. Op de tweede verdieping zijn nog eens twee ruime slaapkamers te vinden, wat het totaal op vier slaapkamers brengt. Ideaal voor een gezin, werk- of hobbyruimte, of logeerkamers.

Kortom, Archipel 44 15 is een heerlijk ruime en goed verzorgde woning op een rustige, groene locatie met alle gemakken van de stad binnen handbereik. Een ideale plek om thuis te komen.

Bent u nieuwsgierig geworden? Maak dan snel een afspraak voor een bezichtiging en ervaar zelf het comfort en de ruimte die deze woning te bieden heeft.

"Nu bieden vanaf € 385.000,- k.k. De gestelde vraagprijs betreft een "bieden vanaf prijs". Biedingen boven de € 385.000,- k.k. zullen door verkoper in behandeling genomen worden".

Indeling;

Begane grond:

Entree, ruime hal, modern toilet met fonteintje, trapkast, ruime L-vormige keuken voorzien van spotjes en diverse inbouwapparatuur, royale woonkamer (ca. 35 m²) met schuifpui naar de tuin, ruime aangebouwde berging (ca. 7 m²) voorzien van opstelling wassen-/drogen.
De begane grond is voorzien van een fraaie houten vloer, de berging is voorzien van een laminaatvloer. De wanden en plafonds zijn glad gestuct.

Eerste verdieping:

Ruime overloop met vaste kast, slaapkamer 1 (ca. 16 m²) met schuifpui, slaapkamer 2 (ca. 12 m²) met schuifpui, moderne badkamer voorzien van dubbele wastafel met meubel, toilet, ligbad, inloopdouche en designradiator.
De eerste verdieping is voorzien van een laminaatvloer.

Tweede verdieping:

Ruime overloop met vaste kast en aparte berging met opstelling CV-ketel, slaapkamer 3 (ca. 16 m²) met vaste kasten, slaapkamer 4 (ca. 12 m²) met vaste kast.
De tweede verdieping is deels voorzien van een laminaatvloer en deels voorzien van tapijt.

Tuin:

De voortuin ligt op het westen en is volledig betegeld.
De zeer diepe achtertuin (15x5) meter is gelegen op het oosten en is deels betegeld en deels voorzien van gras.
Achterop het perceel treft u aan de poort naar de steeg en de houten berging (ca. 7 m²).

Bijzonderheden:

* Energielabel C;
* De woning is voorzien van grotendeels dubbel glas en gevelisolatie;
* Het platte dak aan de voorzijde (wasruimte) is vervangen in 2020;
* De hardhouten kozijnen zijn in 2025 geschilderd, de Red Cedar gevelbekleding in 2018;
* De CV-ketel (eigendom, Intergas extreme 36) is geplaatst in 2023 en is hybride klaar;
* De woning is voorzien van 8 zonnepanelen (huur), geplaatst in 2023;
* Bouwjaar 1978;
* Woonoppervlakte circa 144 m²;
* Perceeloppervlakte 159 m².

Lees de volledige omschrijving

Contact en info

Heb je vragen over deze woning of wil je een bezichtiging inplannen? Neem dan gerust contact met ons op, we helpen je graag verder!

Plan een bezichtiging

Kenmerken

Overdracht
Status
Verkocht
Koopprijs
€ 385.000,-
Aanvaarding
In overleg
Woonoppervlakte
144 m2
Inhoud
478 m3
Bouwvorm
Soort object
Woonhuis
Type woning
Tussenwoning
Soort
Eengezinswoning
Bouwjaar
1978
Bouwvorm
Bestaande bouw
Ligging
In woonwijk, In bosrijke omgeving
Overdracht
Woonoppervlakte
144 m2
Perceel oppervlakte
159 m2
Inhoud
478 m3
Aantal kamers
5
Aantal slaapkamers
4
Energie
Energieklasse
C
Isolatievormen
Muurisolatie, Gedeeltelijk dubbelglas
Verwarming
CV ketel
Bouwjaar
2023
Buitenruimte
Tuin
Achtertuin, Voortuin
Hoofdtuin
Achtertuin
Hoofdtuin oppervlakte
75 m2
Positie
Oost
Achterom
Ja
Kwaliteit
Verzorgd
Bergruimte
Soort
Aangebouwd steen
Parkeergelegenheid
Garage
Geen garage
Parkeer faciliteiten
Openbaar parkeren
Dak
Soort dak
Samengesteld dak
Voorzieningen
Voorzieningen
Mechanische ventilatie, TV kabel, Schuifpui, Frans balkon, Glasvezel kabel, Zonnepanelen
Overig
Permanente bewoning
Ja
Onderhoud binnen
Goed
Onderhoud buiten
Goed
Huidig gebruik
Woonruimte
Huidige bestemming
Woonruimte
Bekijk alle specificaties

Interesse of meer weten?

Leuk dat je geïnteresseerd bent in deze woning! Als erkende makelaar staan wij voor je klaar om al je vragen te beantwoorden en om een bezichtiging in te plannen.

bureauhanze

    Met het versturen van dit formulier ga je akkoord met onze gebruiksvoorwaarden en privacybeleid.