Archipel 37 21

8224 HM Lelystad
€ 385.000,- k.k.
3kamers
141 m2wonen
155 m2perceel

Algemene informatie

Aanvaarding
In overleg
Type woning
Tussenwoning
Energieklasse
B

Omschrijving

Op een schitterende locatie in de populaire en kindvriendelijke wijk de ‘Archipel’ staat deze klokgevelwoning met 3 ruime slaapkamers (met mogelijkheid voor een 4e), een luxe inbouwkeuken, moderne badkamer, riante woonkamer en strak aangelegde tuin. De woning ligt aan een doodlopende straat en grenst met de achtertuin aan een groenstrook welke tot het Woldpark leidt. Met een woonoppervlakte van circa 141 m² op een perceel van 155 m² biedt dit huis volop ruimte, ideaal voor gezinnen of wie extra leefruimte zoekt. De royale, lichte woonkamer van circa 35 m² beschikt over een schuifpui naar de circa 13 meter diepe achtertuin met veel privacy. Aan de achterzijde bevindt zich een royale overkapping waar het heerlijk vertoeven is in elk seizoen. Of u nu in de zomer in de schaduw wilt zitten, op een regenachtige dag toch buiten wilt genieten, of ’s avonds gezellig wilt borrelen met vrienden, de overkapping biedt comfort en een verlengstuk van de woonkamer.

Een goede combinatie van rust en ruimte, maar toch een centrale ligging. De wijk is ruim opgezet met diverse speel-, groen- en sportvoorzieningen in de omgeving. Daarnaast is de “Archipel” gelegen nabij scholen, openbaar vervoer, het stadscentrum en uitvalswegen. Daarnaast ligt de woning vrijwel direct tegen de bosrand aan, wat zorgt voor een rustige en natuurlijke woonomgeving.

Kortom, Archipel 37 21 is een heerlijk ruime en goed verzorgde woning op een rustige, groene locatie met alle gemakken van de stad binnen handbereik. Een ideale plek om thuis te komen.

"Nu bieden vanaf € 385.000,- k.k. De gestelde vraagprijs betreft een "bieden vanaf prijs". Biedingen boven de € 385.000,- k.k. zullen door verkoper in behandeling genomen worden".

Indeling:
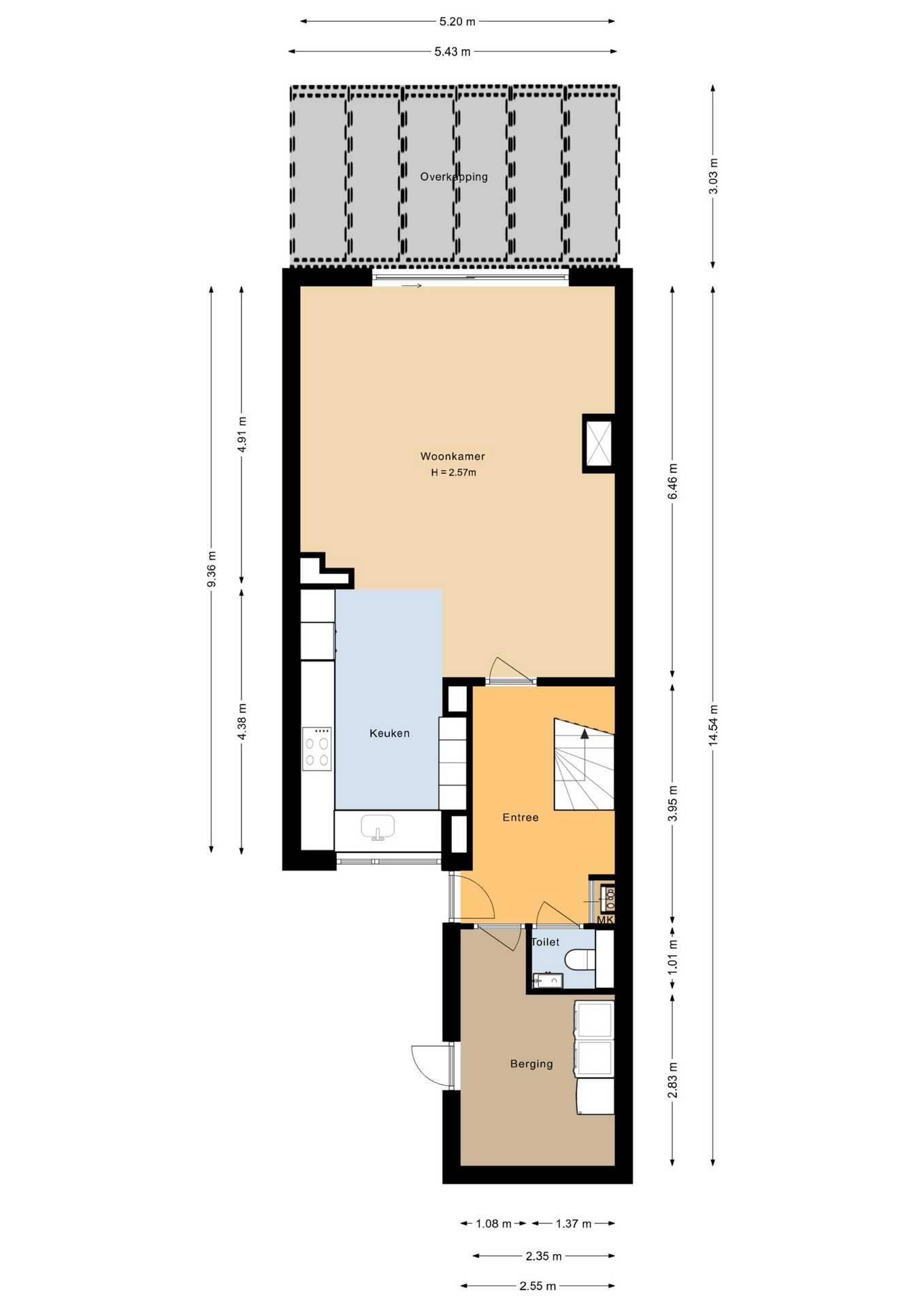
Begane grond: Entree met ruime hal, meterkast (2024 vernieuwd), modern toilet met vloerverwarming en fonteintje. Vanuit de hal toegang tot de praktische berging (ca. 7 m²) met wasmachine- en drogeraansluiting.
De moderne keuken in ruime hoekopstelling met extra ingebouwde kasten is ideaal voor de kookliefhebber en is voorzien van de volgende inbouwapparatuur; een inductiekookplaat (2021) met afzuigkap, koelkast, vriezer, vaatwasser (2021), oven en magnetron. Dankzij de open indeling is er prettig contact met de eet- en woonkamer, waardoor koken en samenzijn moeiteloos samengaan.
Aansluitend de royale woonkamer (ca. 35 m²) met sfeervolle houtkachel en schuifpui naar de tuin. De begane grond is afgewerkt met een fraaie houten vloer en wanden en plafonds zijn glad gestuct.

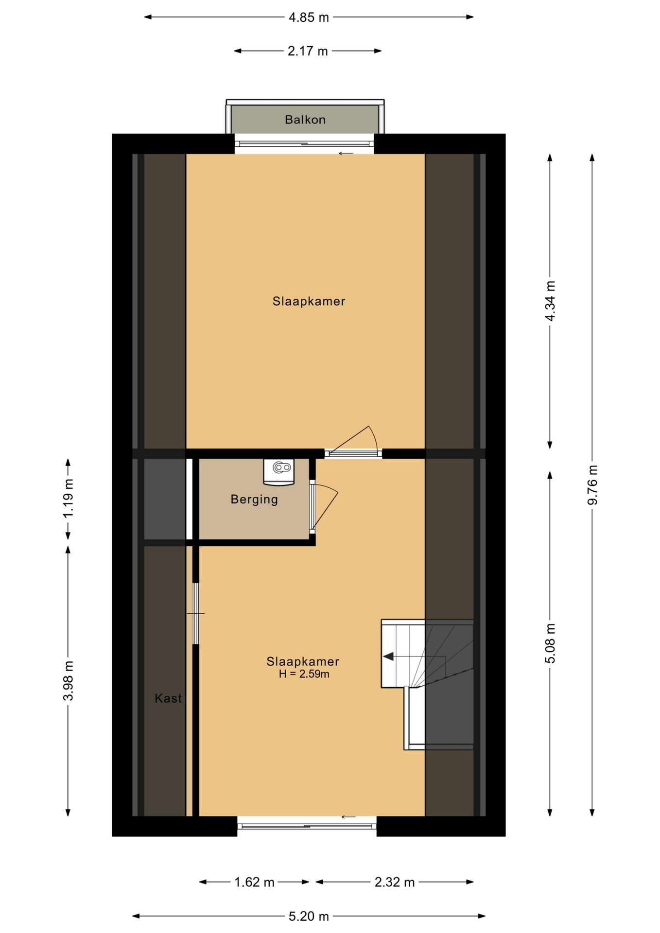
Eerste verdieping: De ruime overloop met vaste kast geeft toegang tot de twee ruime slaapkamers (16 en 12 m²), beide met schuifpui, en de moderne volledig betegelde badkamer (2016) met ligbad, douchecabine, tweede toilet, dubbele wastafel met meubel, designradiator en mechanische ventilatie. De verdieping is afgewerkt met een nette laminaatvloer.

Tweede verdieping: Ruime overloop met veel bergruimte en de mogelijkheid om een vierde slaapkamer te creëren. Daarnaast bevindt zich hier een aparte berging met CV-opstelling (2025, huur) en een royale derde slaapkamer (ca. 16 m²). De slaapkamer is voorzien van een laminaatvloer, de overloop van vloerbedekking.

Tuin: De voortuin is volledig bestraat. De diepe achtertuin (ca. 13 x 5,5 m) ligt op het oosten en is zeer vrij gelegen, waardoor u volop privacy heeft. De tuin is fraai ingedeeld met een goede balans tussen terras en groen en vernieuwde schuttingen. Ondanks de ligging op het oosten kunt u er dankzij de diepte tot laat op de dag van de zon genieten!

Bijzonderheden:
* Op een schitterende locatie in de populaire en kindvriendelijke woonwijk de “Archipel”, gelegen klokgevelwoning;
* Voorzien van 3 ruime slaapkamers (mogelijkheden voor 4);
* Moderne inbouwkeuken en badkamer;
* Fraaie houten vloer en sfeervolle houtkachel in de woonkamer;
* Praktische stenen berging aan de voorzijde van de woning;
* Vernieuwde groepenkast (2024);
* Cv-ketel vernieuwd in 2025 (huur);
* Strak aangelegde tuin met een riante overkapping en veel privacy;
* Parkeergelegenheid vlak voor de deur en voldoende parkeergelegenheid in de directe omgeving;
* Gelegen nabij het stadscentrum, scholen, speelvoorzieningen, openbaar vervoer en uitvalswegen;
* Woonoppervlak: 141 m2;
* Kaveloppervlak: 155 m2 eigen grond;
* Bouwjaar: 1978;
* Energielabel: B.

Aanvaarding in overleg.

Lees de volledige omschrijving

Contact en info

Heb je vragen over deze woning of wil je een bezichtiging inplannen? Neem dan gerust contact met ons op, we helpen je graag verder!

Plan een bezichtiging

Kenmerken

Overdracht
Status
Verkocht
Koopprijs
€ 385.000,-
Aanvaarding
In overleg
Woonoppervlakte
141 m2
Inhoud
497 m3
Bouwvorm
Soort object
Woonhuis
Type woning
Tussenwoning
Soort
Eengezinswoning
Bouwjaar
1978
Bouwvorm
Bestaande bouw
Ligging
Aan park, Aan rustige weg, In woonwijk, Beschutte ligging, In bosrijke omgeving
Overdracht
Woonoppervlakte
141 m2
Perceel oppervlakte
155 m2
Inhoud
497 m3
Aantal kamers
4
Aantal slaapkamers
3
Energie
Energieklasse
B
Isolatievormen
Dubbelglas
Verwarming
CV ketel, Vloerverwarming gedeeltelijk, Houtkachel
Bouwjaar
2025
Buitenruimte
Tuin
Achtertuin, Voortuin
Hoofdtuin
Achtertuin
Hoofdtuin oppervlakte
72 m2
Positie
Oost
Achterom
Nee
Kwaliteit
Verzorgd
Bergruimte
Soort
Aangebouwd steen
Voorzieningen
Voorzien van elektra, Voorzien van water
Parkeergelegenheid
Garage
Geen garage
Voorzieningen
Voorzien van elektra, Voorzien van water
Parkeer faciliteiten
Openbaar parkeren
Dak
Soort dak
Samengesteld dak
Voorzieningen
Voorzieningen
Mechanische ventilatie, Rookkanaal, Schuifpui, Glasvezel kabel
Overig
Permanente bewoning
Ja
Onderhoud binnen
Goed
Onderhoud buiten
Goed
Huidig gebruik
Woonruimte
Huidige bestemming
Woonruimte
Bekijk alle specificaties

Interesse of meer weten?

Leuk dat je geïnteresseerd bent in deze woning! Als erkende makelaar staan wij voor je klaar om al je vragen te beantwoorden en om een bezichtiging in te plannen.

bureauhanze

    Met het versturen van dit formulier ga je akkoord met onze gebruiksvoorwaarden en privacybeleid.