Apolloweg 275
Algemene informatie
Omschrijving
Wonen en werken op een centrale locatie in Lelystad! Bent u op zoek naar een vrijstaande woning (type: semi-bungalow) met een bedrijfshal met een totale oppervlakte van ca. 274 m2 (begane grond: 150 m2 + verdieping: 124 m2)? Dan is deze combinatie aan de Apolloweg 275 te Lelystad op een perceel van 1250 m2 eigen grond absoluut een bezichtiging waard!
De woning is gelegen aan de rand van bedrijventerrein "Flevopoort". Hier woon je nabij alle gewenste voorzieningen. Op ca. 5 minuten afstand vind je supermarkten, restaurants, scholen, kinderopvang, het natuurpark en recreatiegebied "Het Gelderse Hout", met mountainbikeroute en uitgestrekt wandel-/hardloopgebied. Het fijne van wonen aan de Apolloweg, is dat deze straat voornamelijk wordt bewoond door gezinnen. Hierdoor krijgt u het gevoel van het wonen in een woonwijk en heeft u tevens de luxe voor het uitoefenen van uw bedrijf op eigen terrein!
De bereikbaarheid met de auto is uitstekend. Het centrum van Lelystad en de A6 zijn met 5 autominuten te bereiken en het openbaar vervoer is vlak om de hoek te vinden met een goede verbinding naar Station Lelystad Centrum.
Indeling (woonhuis);
Begane grond:
Entree/hal met de meterkast, garderobe, toiletruimte (2017), trapopgang naar de verdieping en toegang tot diverse vertrekken. Een riante straatgerichte woonkamer van maar liefst 8.83 m. breed met grote raampartijen (veel lichtinval) en een sfeervolle elektrische haard (2008 / Faber). Aan de achterzijde bevindt zich de luxe inbouwkeuken (2015) in dubbele opstelling, welke voorzien is van de volgende apparatuur; koelkast, vriezer, vaatwasser, oven, combimagnetron, koffiezetapparaat, 4-pits inductiekookplaat en een afzuigkap. De inbouwapparatuur is van gerenommeerde merken zoals Siemens. Ruime opstelmogelijkheden voor een grote eettafel waar u heerlijk met uw familie kunt dineren. Middels een schuifpui heeft u toegang tot de fraai aangelegde achtertuin. Vanuit de hal bereikt u de praktische kantoorruimte/slaapkamer (ca. 9 m2) en de bijkeuken met de opstelplaats van de cv-ketel (2017) en de wasmachine/droger opstelling. Aangrenzend de ruime slaapkamer (ca. 20 m2) met een ingebouwde kastenwand en dankzij de schuifpui een heerlijk uitzicht over de tuin. Vanuit de slaapkamer is de moderne badkamer (2017) te bereiken, welke is uitgevoerd met een inloopdouche, wastafelmeubel, 2e toilet, vloerverwarming, een designradiator en een raam voor de natuurlijke ventilatie. De begane grond is grotendeels voorzien van een fraaie PVC-vloer (2019) met vloerverwarming.
1e Verdieping:
Overloop met toegang tot 2 ruime slaapkamers, allen voorzien van een dakraam en praktische bergruimte achter de knieschotten, waarbij de ouderslaapkamer over de volle lengte van de woning. De ouderslaapkamer is bijzonder ruim te noemen en kan eenvoudig worden opgedeeld in 2 slaapkamers. De moderne 2e badkamer (2023) is voorzien van een ligbad, wastafelmeubel, 3e toilet, een designradiator en een raam voor de natuurlijke ventilatie. De verdieping is voorzien van een fraaie laminaatvloer (2009).
Vliering:
Middels vlizotrap te bereiken bergvliering.
Voortuin:
De voortuin is voorzien van bestrating, borders met hagen en beplanting, diverse zitjes, sierhekwerk (elektrisch) en biedt parkeergelegenheid voor meerdere voertuigen op eigen terrein.
Tuin:
De fraai aangelegde achtertuin is gelegen op het zuidoosten en voorzien van riant terras met bestrating, een schitterende aluminium overkapping (2015) met inbouwspots en een glaswand, gazon, speelplekje voor de kinderen en een fraaie houten overkapping (2022). De tuin is heerlijk groen aangelegd en geeft veel privacy!
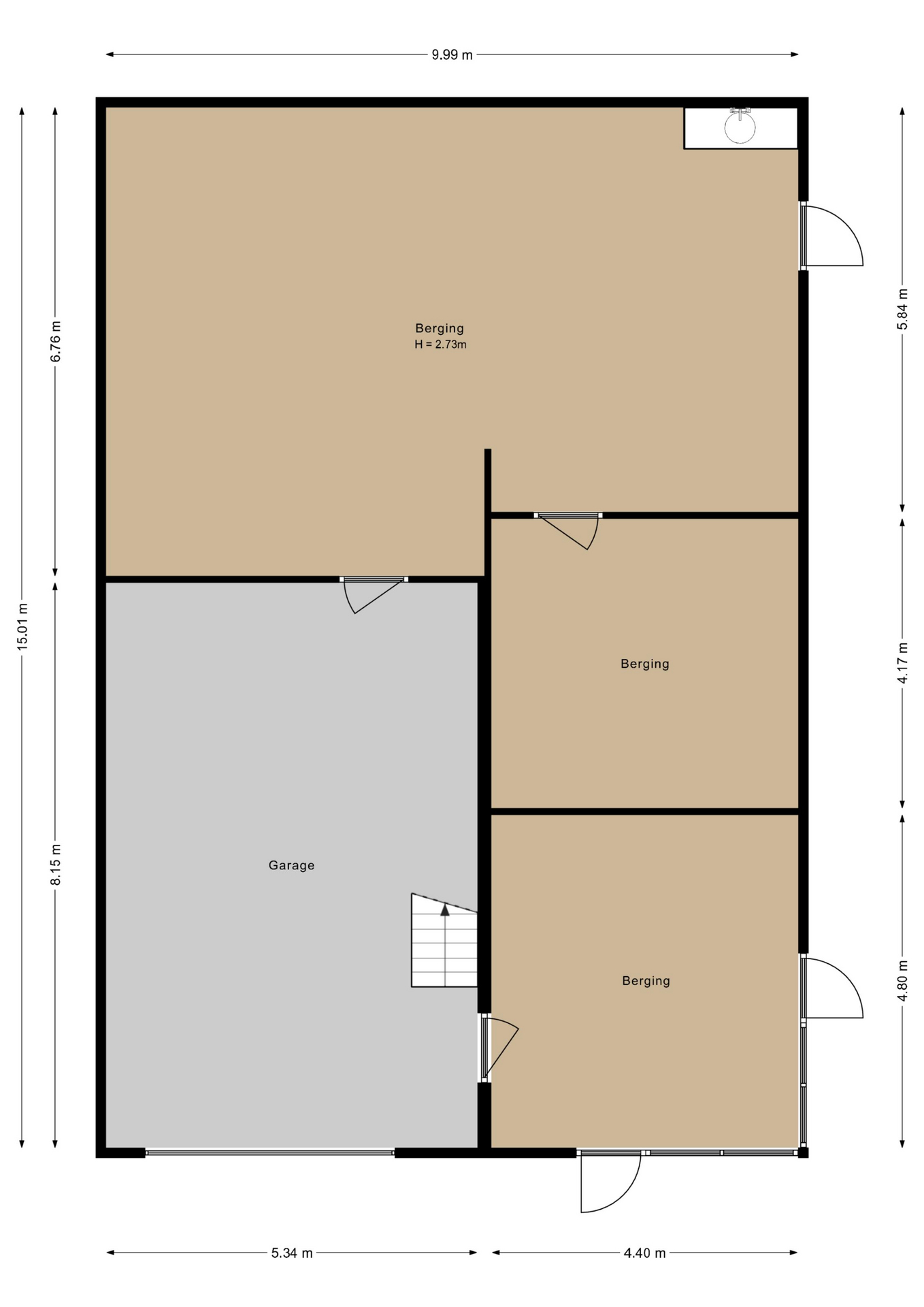
Indeling bedrijfshal;
Begane grond: (ca. 150 m2)
Garage met overheaddeur (4,0 x 3,5 m.), een gevlinderde betonvloer en toegang tot diverse vertrekken, zoals de bergingen/kantoor/kantine en de praktijkruimte met een airco (2019 | warmte/koelen) en een praktische keukenblok.
1e Verdieping: (ca. 124 m2)
Via een vaste trap te bereiken verdieping, welke momenteel is ingedeeld met diverse opslagruimtes.
* Schitterende woon-werkcombinatie op een centrale locatie in Lelystad!
* De woning (type: semi-bungalow) is voorzien van 2 ruime slaapkamers en een luxe badkamer (2017) op de begane grond
* De woning is verder voorzien van 2 ruime slaapkamers (mogelijkheden voor 3) en een luxe 2e badkamer (2023) op de verdieping
* De woning is op de begane grond grotendeels voorzien van vloerverwarming (m.u.v. de slaapkamer aan de achterzijde)
* De woning is voorzien van dak, muur en vloerisolatie en HR++ beglazing
* Fraai aangelegde tuin met een ligging op het zuidoosten en voorzien van 2 schitterende overkappingen en veel privacy!
* Schilderwerk buitenzijde woning + loods is uitgevoerd in 2021
* De bedrijfsruimte is voorzien van een lichtstraat, airco (2019 | warmte/koelen) en een praktisch keukenblok
* De bedrijfsruimte is voorzien van een overheaddeur (4,0 x 3,5 m.) en heeft een vrije hoogte van 5,0 m.
* De bedrijfsruimte kan gebruikt worden voor eigen gebruik maar is ook uitstekend geschikt voor verhuurdoeleinden
* Ruime parkeergelegenheid op eigen terrein en aan de voorzijde van de woning
* De woning is gelegen aan de rand van bedrijventerrein "Flevopoort", nabij alle gewenste voorzieningen
* Oppervlakte loods: ca. 274 m2 (begane grond: 150 m2 + verdieping: 124 m2)
* Woonoppervlak: 157 m2
* Kaveloppervlak: 1250 m2 eigen grond
* Bouwjaar: 2001
* Energielabel: B
Vraagprijs: € 850.000,- k.k.
Aanvaarding in overleg.
Contact en info
Heb je vragen over deze woning of wil je een bezichtiging inplannen? Neem dan gerust contact met ons op, we helpen je graag verder!
Plan een bezichtigingKenmerken
Interesse of meer weten?
Leuk dat je geïnteresseerd bent in deze woning! Als erkende makelaar staan wij voor je klaar om al je vragen te beantwoorden en om een bezichtiging in te plannen.