Anna Pavlovastraat 30

1326 TK Almere
€ 425.000,- k.k.
4kamers
112 m2wonen
133 m2perceel

Algemene informatie

Aanvaarding
In overleg
Type woning
Tussenwoning
Energieklasse
A

Omschrijving

Welkom aan de Anna Pavlovastraat 30 in Almere – een fijne, comfortabele tussenwoning uit 1998, gelegen in de geliefde en kindvriendelijke Danswijk. Deze wijk staat bekend om haar rustige woonstraten, groene omgeving en de centrale ligging ten opzichte van dagelijkse voorzieningen en uitstekende verbindingen richting zowel Almere-Stad als Almere-Buiten.

Bij binnenkomst valt direct de royale en lichte woonkamer op. Dankzij de grote raampartijen geniet u hier de hele dag van een prettige lichtinval. De moderne halfopen keuken vormt een sfeervol en functioneel geheel met de living en is uitgevoerd met diverse inbouwapparatuur en een fraai granieten werkblad. Een ideale plek voor de kookliefhebber.

Op de eerste verdieping bevinden zich drie goed bemeten slaapkamers, geschikt als comfortabele slaap-, werk- of hobbyruimte. De tweede verdieping biedt een verrassend ruime vierde slaapkamer, mede dankzij de geplaatste dakkapel. De badkamer is compleet uitgevoerd met een wastafelmeubel, douche, toilet, ligbad en natuurlijke ventilatie.

De achtertuin is een echte plus: met een afmeting van circa 11 x 6 meter, gelegen op het zuidoosten én zonder achterburen geniet u hier van optimale rust en privacy. Een heerlijke plek om te ontspannen, te tuinieren of lange zomeravonden door te brengen.

De woning is volledig geïsoleerd, beschikt over energielabel A en is aangesloten op het stadsverwarmingsnet, wat betekent dat u volledig gasloos woont. Daarnaast zorgen de 10 aanwezige zonnepanelen (eigendom) voor een lage energierekening en een duurzame woonervaring.

Danswijk is centraal gelegen ten opzichte van scholen, supermarkten, sportfaciliteiten, openbaar vervoer en zowel het centrum van Almere-Stad als Almere-Buiten. De A6 en A27 bereikt u binnen enkele minuten, waardoor steden als Amsterdam, Utrecht, Lelystad en ’t Gooi snel en gemakkelijk bereikbaar zijn.

Kortom: een ruime, duurzame en uitstekend gelegen woning waar u direct kunt beginnen met genieten. Bent u benieuwd naar de mogelijkheden? Dan nodigen wij u graag uit voor een bezichtiging.

"Nu bieden vanaf € 425.000,- k.k.. De gestelde vraagprijs betreft een "bieden vanaf prijs". Biedingen vanaf € 425.000,- k.k. zullen door verkoper in behandeling genomen worden".

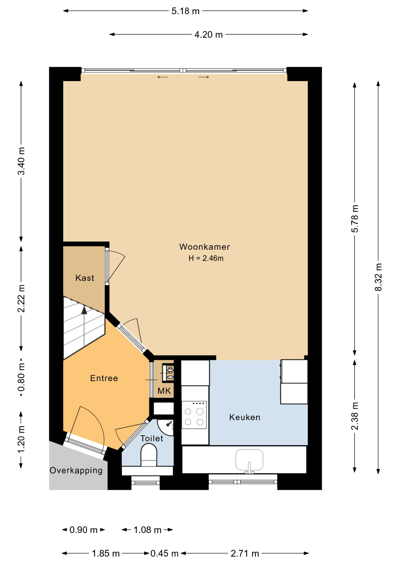
Indeling;

Begane grond:

Overdekte entree, hal, toilet met fonteintje, ruime en licht woonkamer (ca. 28 m²) met trapkast, schuifpui naar de tuin, half open moderne keuken voorzien van granietblad.

De begane grond is voorzien van een plavuizen vloer.

Eerste verdieping:

Overloop, slaapkamer 1 (ca. 14 m²), slaapkamer 2 (ca. 11 m²), slaapkamer 3 (ca. 7 m²), badkamer voorzien van wastafel met meubel, douche, toilet, ligbad en natuurlijke ventilatie.

De eerste verdieping is voorzien van een laminaatvloer.

Tweede verdieping:

Slaapkamer 4 (ca. 21 m²) voorzien van dakkapel, veel opbergruimte, aparte ruimte met opstelling wassen-/drogen en dakraam.

De tweede verdieping is voorzien van een laminaatvloer.

Tuin:

De voortuin is gelegen op het noordwesten en is volledig betegeld. Parkeren doet u op één van de openbare parkeerplaatsen.
De achtertuin (11x6 meter) is gelegen op het zuidoosten en is volledig betegeld. U geniet hier van de volle privacy daar u geen achterburen heeft. Achterop het perceel staat nog een vrijstaande houten berging (ca. 8 m²).

Bijzonderheden:

* Energielabel A;
* Volledig geïsoleerd;
* De woning is aangesloten op de stadsverwarming, volledig gasloos;
* De binnenzijde van begane grond, eerste verdieping en tweede verdieping zijn in 2025 geschilderd;
* 10 zonnepanelen, in eigendom, geplaatst in 2015;
* Uitbouw achterzijde is mogelijk;
* Bouwjaar 1998;
* Woonoppervlakte circa 112 m²;
* Perceeloppervlakte 133.

Lees de volledige omschrijving

Contact en info

Heb je vragen over deze woning of wil je een bezichtiging inplannen? Neem dan gerust contact met ons op, we helpen je graag verder!

Plan een bezichtiging

Kenmerken

Overdracht
Koopprijs
€ 425.000,-
Aanvaarding
In overleg
Woonoppervlakte
112 m2
Inhoud
377 m3
Bouwvorm
Soort object
Woonhuis
Type woning
Tussenwoning
Soort
Eengezinswoning
Bouwjaar
1998
Bouwvorm
Bestaande bouw
Ligging
In woonwijk
Overdracht
Woonoppervlakte
112 m2
Perceel oppervlakte
133 m2
Inhoud
377 m3
Aantal kamers
5
Aantal slaapkamers
4
Energie
Energieklasse
A
Isolatievormen
Volledig geïsoleerd
Verwarming
Stadsverwarming
Buitenruimte
Tuin
Achtertuin, Voortuin
Hoofdtuin
Achtertuin
Hoofdtuin oppervlakte
66 m2
Positie
Zuidoost
Achterom
Ja
Kwaliteit
Normaal
Bergruimte
Soort
Vrijstaand hout
Parkeergelegenheid
Garage
Geen garage
Parkeer faciliteiten
Openbaar parkeren
Dak
Soort dak
Zadeldak
Kwaliteit dak
Pannen
Voorzieningen
Voorzieningen
Mechanische ventilatie, TV kabel, Dakraam, Glasvezel kabel, Zonnepanelen, Natuurlijke ventilatie
Overig
Permanente bewoning
Ja
Onderhoud binnen
Goed
Onderhoud buiten
Goed
Huidig gebruik
Woonruimte
Huidige bestemming
Woonruimte
Bekijk alle specificaties

Interesse of meer weten?

Leuk dat je geïnteresseerd bent in deze woning! Als erkende makelaar staan wij voor je klaar om al je vragen te beantwoorden en om een bezichtiging in te plannen.

bureauhanze

    Met het versturen van dit formulier ga je akkoord met onze gebruiksvoorwaarden en privacybeleid.