Amsteldiep 29

8223 XM Lelystad
€ 350.000,- k.k.
5kamers
113 m2wonen
194 m2perceel

Algemene informatie

Aanvaarding
In overleg
Type woning
Hoekwoning
Energieklasse
C

Omschrijving

Aan het Amsteldiep 29 in Lelystad, gelegen in de Zuiderzeewijk, staat deze ruime hoekwoning met een zonnige achtertuin en balkon op het zuiden. Een ideale woning voor wie comfortabel en ruim wil wonen, met alle dagelijkse voorzieningen binnen handbereik.

Bij binnenkomst wordt u verwelkomd in de lichte en ruime woonkamer. De nette open keuken sluit naadloos aan op de woonkamer en is voorzien van vloerverwarming, wat bijdraagt aan het wooncomfort.

De eerste verdieping beschikt over drie slaapkamers en een verzorgde badkamer. De badkamer is praktisch ingericht met een wastafelmeubel, toilet en een inloopdouche. Op de tweede verdieping bevinden zich nog twee slaapkamers, ideaal als extra slaap-, werk- of hobbyruimte. Vanaf de overloop heeft u toegang tot het balkon op het zuiden, een fijne plek om in alle rust van de zon te genieten.

Via de woonkamer bereikt u de achtertuin van circa 9 bij 8 meter, eveneens gelegen op het zuiden. Hier kunt u optimaal profiteren van de zonuren en heerlijk ontspannen in uw eigen buitenruimte.

De woning ligt in een prettige woonomgeving met diverse voorzieningen zoals een supermarkt, drogist en apotheek in de directe nabijheid. Een complete gezinswoning op een fijne locatie, waar ruimte, licht en comfort samenkomen.

"Nu bieden vanaf € 350.000,- k.k.. De gestelde vraagprijs betreft een "bieden vanaf prijs". Biedingen vanaf € 350.000,- k.k. zullen door verkoper in behandeling genomen worden."

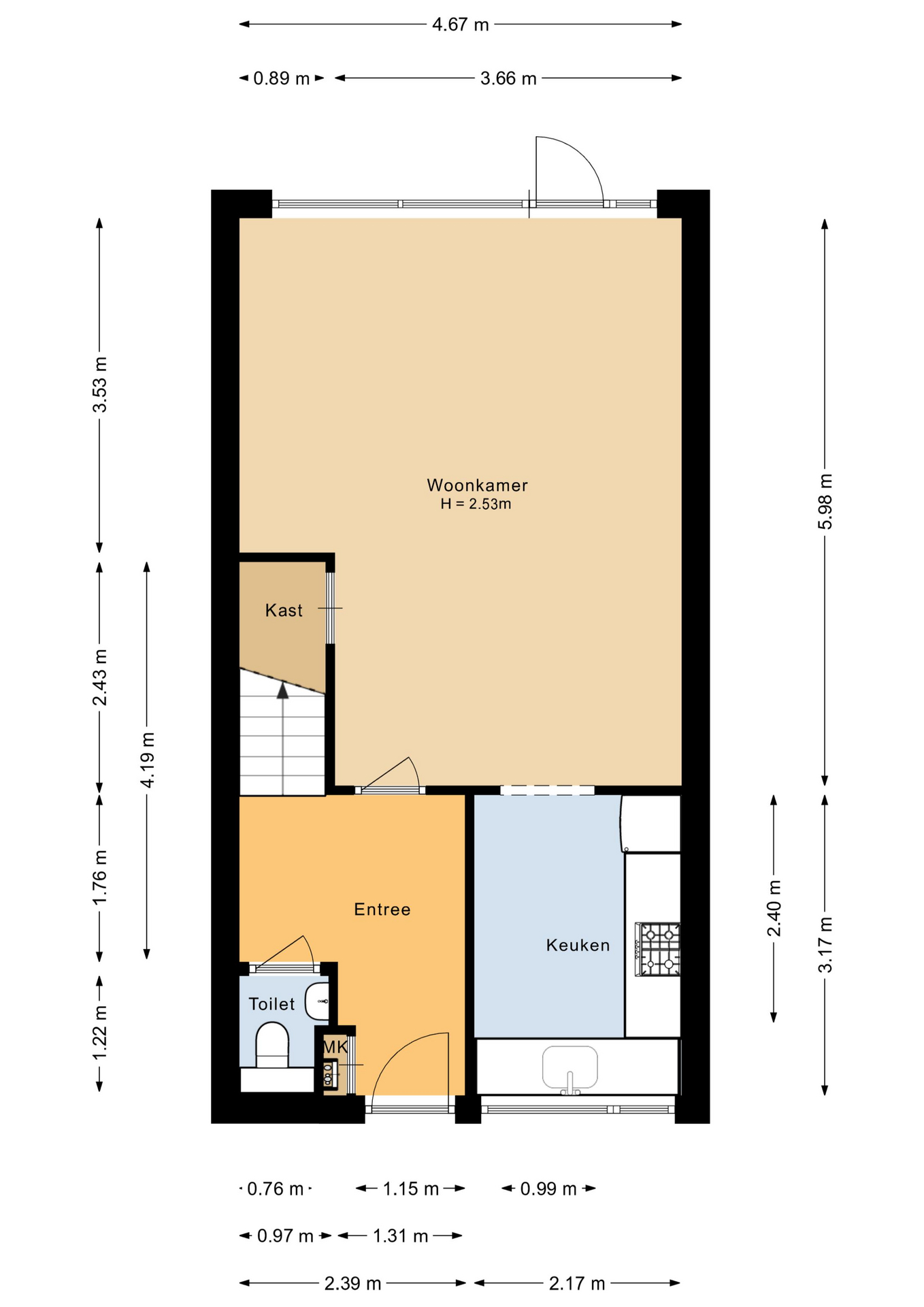
Indeling;

Begane grond:

Entree, hal, toilet met fonteintje, ruime en lichte woonkamer (ca. 28 m²) met deur naar de tuin, trapkast, nette open keuken voorzien van diverse inbouwapparatuur.
De begane grond is voorzien van een plavuizen vloer met vloerverwarming.

Eerste verdieping:

Overloop, slaapkamer 1 (ca. 16 m²), slaapkamer 2 (ca. 9 m²), slaapkamer 3 (ca. 6 m²), badkamer voorzien van wastafel met meubel, toilet en inloopdouche.
De eerste verdieping is voorzien van een laminaatvloer.

Tweede verdieping:

Ruime overloop met opstelling wassen-/drogen en CV-ketel, toegang naar ruim balkon (ca. 12 m², zuiden gesitueerd), slaapkamer 4 (ca. 9 m²), slaapkamer 5 (ca. 6 m²).
De tweede verdieping is voorzien van een laminaatvloer.

Tuin:

De woning beschikt over een voor-, zij- en achtertuin door de hoekligging. De voortuin ligt op het noorden, de achtertuin (9x8 meter) ligt op het zonnige zuiden. De tuin is deels betegeld en deels voorzien van kunstgras. Voor op het perceel treft u aan de vrijstaande stenen berging (ca. 7 m²).

Bijzonderheden:

* Energielabel C;
* Het dak van de woning is vernieuwd in 2015, het dak van het balkon in 2021 en het dak van de schuur in 2019;
* Deels houten en deels kunststof kozijnen;
* Vloerverwarming op de begane grond;
* Balkon en tuin (!) op het zuiden gesitueerd;
* Parkeren doet u op een van de openbare parkeerplaatsen;
* Bouwjaar 1969;
* Woonoppervlakte circa 113 m²;
* Perceeloppervlakte 194 m².

Lees de volledige omschrijving

Contact en info

Heb je vragen over deze woning of wil je een bezichtiging inplannen? Neem dan gerust contact met ons op, we helpen je graag verder!

Plan een bezichtiging

Kenmerken

Overdracht
Status
Verkocht
Koopprijs
€ 350.000,-
Aanvaarding
In overleg
Woonoppervlakte
113 m2
Inhoud
376 m3
Bouwvorm
Soort object
Woonhuis
Type woning
Hoekwoning
Soort
Eengezinswoning
Bouwjaar
1969
Bouwvorm
Bestaande bouw
Ligging
In woonwijk
Overdracht
Woonoppervlakte
113 m2
Perceel oppervlakte
194 m2
Inhoud
376 m3
Aantal kamers
6
Aantal slaapkamers
5
Energie
Energieklasse
C
Isolatievormen
Vloerisolatie
Verwarming
CV ketel, Vloerverwarming gedeeltelijk
Bouwjaar
2011
Buitenruimte
Tuin
Achtertuin, Voortuin, Zijtuin
Hoofdtuin
Achtertuin
Hoofdtuin oppervlakte
72 m2
Positie
Zuid
Achterom
Ja
Kwaliteit
Verzorgd
Parkeergelegenheid
Garage
Geen garage
Parkeer faciliteiten
Openbaar parkeren
Dak
Soort dak
Plat dak
Kwaliteit dak
Bitumineuze Dakbedekking
Voorzieningen
Voorzieningen
Mechanische ventilatie, TV kabel, Glasvezel kabel
Overig
Permanente bewoning
Ja
Onderhoud binnen
Goed
Onderhoud buiten
Redelijk tot goed
Huidig gebruik
Woonruimte
Huidige bestemming
Woonruimte
Bekijk alle specificaties

Interesse of meer weten?

Leuk dat je geïnteresseerd bent in deze woning! Als erkende makelaar staan wij voor je klaar om al je vragen te beantwoorden en om een bezichtiging in te plannen.

bureauhanze

    Met het versturen van dit formulier ga je akkoord met onze gebruiksvoorwaarden en privacybeleid.