Agorahof 103

8224 JH Lelystad
€ 275.000,- k.k.
1kamers
72 m2wonen

Algemene informatie

Aanvaarding
In overleg
Energieklasse
C

Omschrijving

Midden in het centrum van Lelystad, op een van de meest centrale en levendige locaties van de stad, bevindt zich dit verzorgde twee-kamer appartement aan de Agorahof 103. Gelegen op de tweede verdieping van een kleinschalig appartementencomplex, woont u hier letterlijk met alle gemakken binnen handbereik. Van supermarkten, drogisterijen en winkels tot gezellige restaurants, cafés, een theater én het NS- en busstation – alles ligt op loopafstand, waardoor stedelijk comfort en mobiliteit perfect samenkomen.

Bij binnenkomst in het appartement valt direct de prettige lichtinval en de ruimtelijke indeling op. De royale woonkamer biedt een heerlijk uitzicht over het marktplein. Dankzij de grote raampartijen profiteert u hier van veel natuurlijk licht, wat zorgt voor een open en aangename sfeer. De half open keuken grenst direct aan de woonkamer en biedt alle ruimte om naar eigen wens en smaak in te richten. Of u nu graag kookt of liever een snelle maaltijd bereidt: de indeling is praktisch en functioneel.

Het appartement beschikt over een separate toiletruimte, voorzien van een fonteintje en een praktische opstelling voor de wasmachine. De badkamer is verzorgd en compleet uitgerust met een ligbad, douche en een wastafel met meubel – een fijne plek om uw dag ontspannen te beginnen of juist in alle rust af te sluiten.

De ruime slaapkamer bevindt zich aan de achterzijde van de woning en biedt directe toegang tot een zonnig balkon op het zuiden. Hier geniet u van rust en privacy, met de zon als aangename metgezel gedurende een groot deel van de dag. Het balkon is een heerlijke plek voor een kop koffie in de ochtend of een ontspannen moment in de namiddag.

Tot slot beschikt het appartement over een eigen berging op de eerste verdieping van het gebouw. Ideaal voor het veilig stallen van uw fiets of het opbergen van seizoensspullen. Voor het parkeren is er een praktische oplossing: bewoners kunnen gebruik maken van de achtergelegen parkeergarage op basis van een parkeervergunning, zodat u altijd verzekerd bent van een plek dicht bij huis.

Agorahof 103 is de perfecte keuze voor wie comfortabel, centraal en zorgeloos wil wonen in Lelystad. Een appartement met karakter, ruimte en een uitstekende ligging – klaar voor een nieuwe bewoner die hier met veel plezier zijn of haar thuis van wil maken.

"Nu bieden vanaf € 275.000,- k.k.. De gestelde vraagprijs betreft een "bieden vanaf prijs". Biedingen vanaf € 275.000,- k.k. zullen door verkoper in behandeling genomen worden".

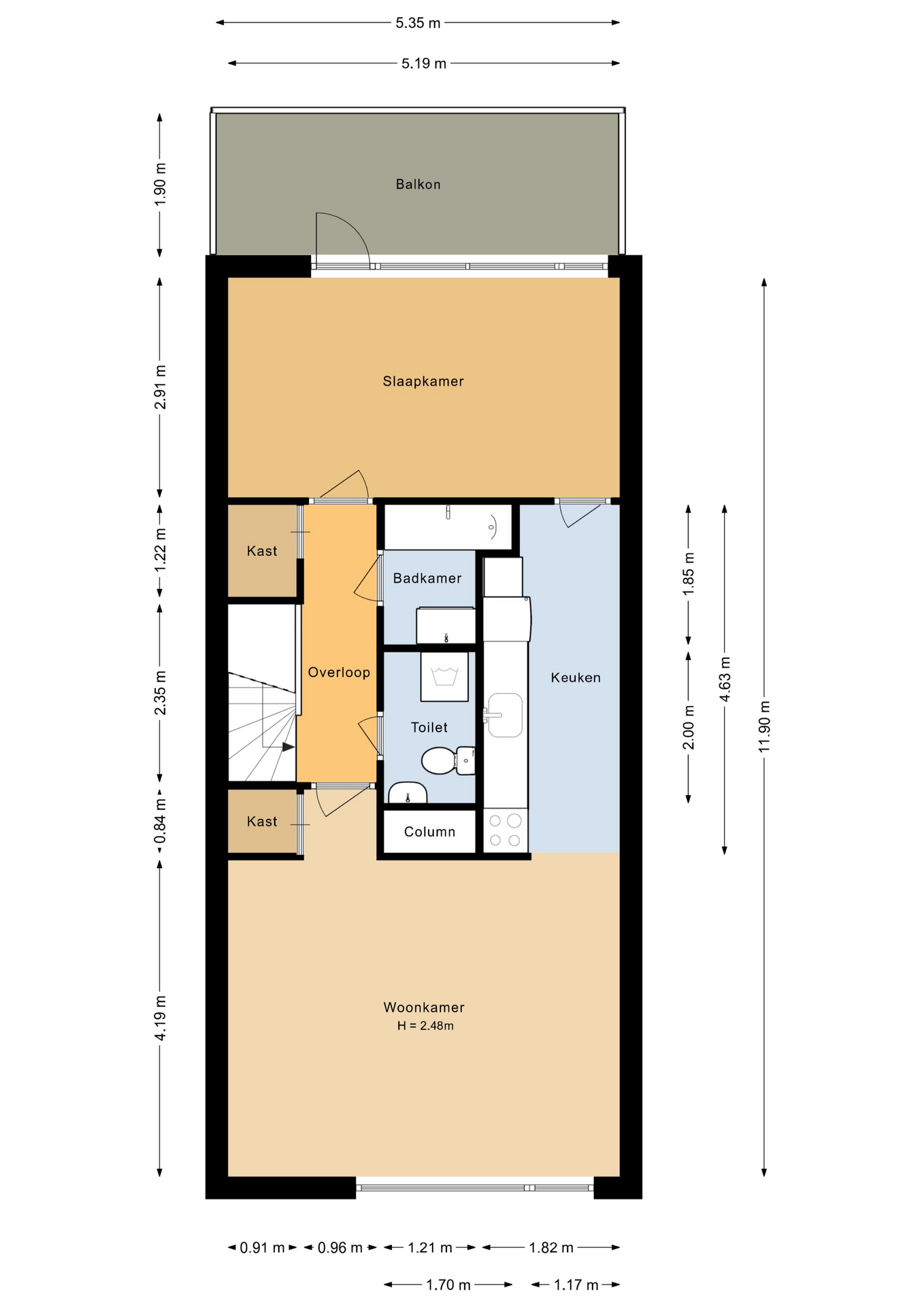
Indeling;

Begane grond:

Algemene entree met bel en brievenbus, trappenhuis alsmede lift naar de galerij.

Eerste verdieping:

Entree, hal, garderobenis, meterkast, trapkast, trapopgang naar het appartement.
Vanaf de begane grond heeft u toegang tot de berging (ca. 4 m²).

De begane grond is voorzien van een laminaatvloer.

Tweede verdieping:

Overloop met vaste kast, separaat toilet met fonteintje en opstelling wasmachine, badkamer voorzien van ligbad, douche, wastafel met meubel en vaste kast, lichte en ruime woonkamer (ca. 22 m²) met vaste kast en uitzicht over het marktplein, half open keuken, ruime slaapkamer (ca. 16 m²) met toegang naar het balkon (ca. 11 m², zuid gesitueerd).

De eerste verdieping is voorzien van een laminaatvloer.

Bijzonderheden:

* Energielabel C;
* Servicekosten en voorschot stookkosten per maand circa € 336,73 (€ 256,73 servicekosten, € 80,- voorschot stookkosten);
* Er is parkeergelegenheid in de achtergelegen parkeergarage, kosten vergunning per jaar € 55,-.
* Het balkon is voorzien van een elektrisch zonnescherm;
* Alle voorzieningen zoals supermarkt, NS-station, busstation, drogist en het theater binnen handbereik;
* Bouwjaar 1981;
* Woonoppervlakte circa 72 m²;
* Balkon circa 11 m², zuid gesitueerd.

Lees de volledige omschrijving

Contact en info

Heb je vragen over deze woning of wil je een bezichtiging inplannen? Neem dan gerust contact met ons op, we helpen je graag verder!

Plan een bezichtiging

Kenmerken

Overdracht
Status
Verkocht
Koopprijs
€ 275.000,-
Aanvaarding
In overleg
Woonoppervlakte
72 m2
Inhoud
242 m3
Bouwvorm
Soort object
Appartement
Bouwjaar
1981
Bouwvorm
Bestaande bouw
Ligging
In centrum
Overdracht
Woonoppervlakte
72 m2
Inhoud
242 m3
Aantal kamers
2
Aantal slaapkamers
1
Energie
Energieklasse
C
Isolatievormen
Muurisolatie, HR glas
Verwarming
Blokverwarming
Buitenruimte
Tuin
Geen tuin
Achterom
Nee
Bergruimte
Soort
Box
Parkeergelegenheid
Garage
Geen garage
Parkeer faciliteiten
Parkeergarage, Parkeervergunningen
Voorzieningen
Voorzieningen
Mechanische ventilatie, TV kabel, Buitenzonwering
Overig
Permanente bewoning
Ja
Onderhoud binnen
Goed
Onderhoud buiten
Goed
Huidig gebruik
Woonruimte
Huidige bestemming
Woonruimte
Bekijk alle specificaties

Interesse of meer weten?

Leuk dat je geïnteresseerd bent in deze woning! Als erkende makelaar staan wij voor je klaar om al je vragen te beantwoorden en om een bezichtiging in te plannen.

bureauhanze

    Met het versturen van dit formulier ga je akkoord met onze gebruiksvoorwaarden en privacybeleid.