Karveel 59 4

8242 WG Lelystad
€ 1.975,- p/m
5kamers
125 m2wonen

Algemene informatie

Aanvaarding
In overleg
Type woning
Tussenwoning
Energieklasse
B

Omschrijving

KARVEEL 59 4 DICHTBIJ HET CENTRUM, ZUIGERPLASBOS, NS STATION EN UITVALSWEGEN

OVER DE WONING:
Op steenworpafstand van grootschalig bosgebied het 'Zuigerplasbos' en diverse (basis)scholen gelegen
ruime eengezinswoning met zonnig gelegen tuin op het westen. De woning beschikt onder meer over een
ruime tuingerichte woonkamer, inbouwkeuken voorzien van diverse apparatuur, 5 SLAAPKAMERS, badkamer en een aparte berging.

Bent u op zoek naar een woning op een toplocatie en woont u graag in een groene- en kindvriendelijke woonwijk?
Dit is uw kans!

INDELING:
Begane grond:
Bij binnenkomst bevindt men zich in de hal vanwaar het separate toilet, de meterkast, de berging alsmede
de woonkamer met open keuken bereikbaar zijn. De keuken in hoekopstelling is voorzien van afzuigkap,
inbouwkoelkast, kookplaat, oven en een vaatwasser. De woonkamer is tuingericht met
veel en grote ramen en via een loopdeur is de tuin op het westen bereikbaar. De begane grond is voorzien
van een laminaatvloer.

Eerste verdieping:
Overloop, drie slaapkamers en een badkamer met douchecabine, wastafelmeubel en tweede toilet.
Volledige verdieping is voorzien van een laminaten vloer.

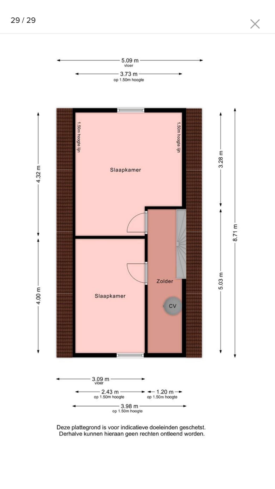
Tweede verdieping:
voorzolder een wasmachine aansluiting, CV Combi ketel (2023)
en Mechanische ventilatiesysteem (2023) en 2 slaapkamers met laminaatvloer.

BIJZONDERHEDEN:

- Bouwjaar: 1977
- Kaveloppervlakte: 140 m²
- Woonoppervlakte ca. 125 m²
- 5 slaapkamers
- Dubbel glas
- Tuin gelegen op het westen
- Gunstig gelegen t.o.v. voorzieningen
- Parkeerplaats voor deur op eigen terrein
- Energielabel B
- De woning wordt ongemeubileerd opgeleverd
- Beschikbaar medio augustus

Huurprijs: € 1975,- per maand
Waarborgsom: € 3.950,-;
Onbepaalde tijd met een minimum van 1 jaar.
Minimale inkomenseis: € 5.925,- Bruto

Lees de volledige omschrijving

Contact en info

Heb je vragen over deze woning of wil je een bezichtiging inplannen? Neem dan gerust contact met ons op, we helpen je graag verder!

Plan een bezichtiging

Kenmerken

Overdracht
Status
Verhuurd
Huurprijs
€ 1.975,-
Aanvaarding
In overleg
Woonoppervlakte
125 m2
Inhoud
375 m3
Bouwvorm
Soort object
Woonhuis
Type woning
Tussenwoning
Soort
Eengezinswoning
Bouwjaar
1977
Bouwvorm
Bestaande bouw
Ligging
In woonwijk
Overdracht
Woonoppervlakte
125 m2
Inhoud
375 m3
Aantal kamers
7
Aantal slaapkamers
5
Energie
Energieklasse
B
Verwarming
CV ketel
Bouwjaar
2023
Buitenruimte
Tuin
Achtertuin, Voortuin
Hoofdtuin
Achtertuin
Hoofdtuin oppervlakte
140 m2
Positie
West
Achterom
Nee
Kwaliteit
Normaal
Bergruimte
Soort
Aangebouwd steen
Parkeergelegenheid
Garage
Geen garage
Parkeer faciliteiten
Openbaar parkeren, Op eigen terrein
Dak
Soort dak
Zadeldak
Kwaliteit dak
Pannen
Overig
Permanente bewoning
Ja
Onderhoud binnen
Goed
Onderhoud buiten
Goed
Huidig gebruik
Woonruimte
Huidige bestemming
Woonruimte
Bekijk alle specificaties

Interesse of meer weten?

Leuk dat je geïnteresseerd bent in deze woning! Als erkende makelaar staan wij voor je klaar om al je vragen te beantwoorden en om een bezichtiging in te plannen.

bureauhanze

    Met het versturen van dit formulier ga je akkoord met onze gebruiksvoorwaarden en privacybeleid.